查看完整案例


收藏

下载
房子装好了,茶已泡好了
花都开好了,欢迎来我家
业主是90后的单身女青年一枚,希望未来的房子温馨好看实用,带点个性。
第一次沟通设计风格理念等一拍即合。
软硬装全部一起完成,最后呈现的效果虽然简单,但足够温馨。
INFORMATION
「项目信息」
楼盘地址:北京御园
户型面积:100平三室两厅
装修风格:北欧风格
主笔设计:美迪装饰龚广辉
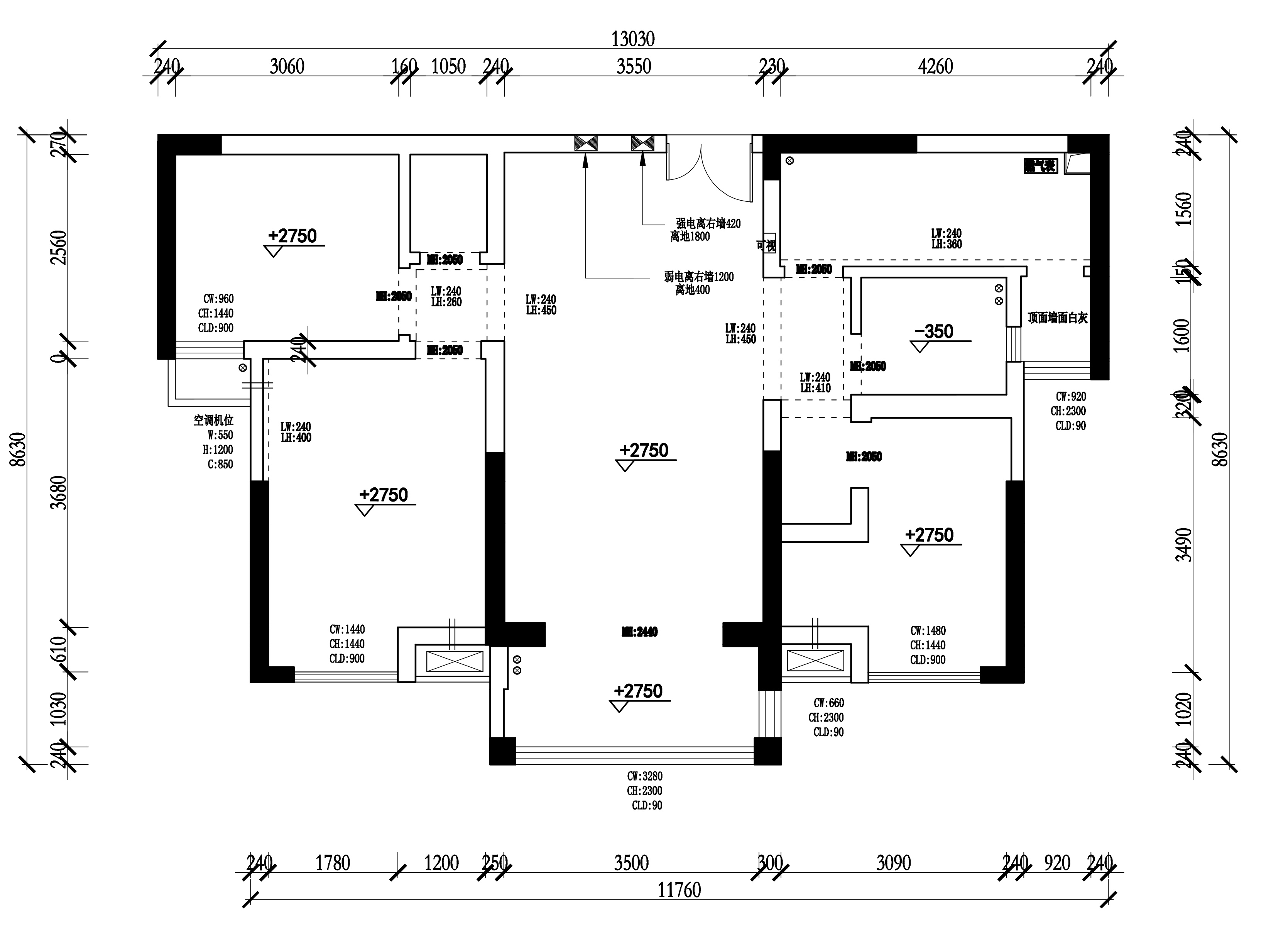
原始结构图
平面布置图
户型改造:业主的原户型南北通透,户型周正,卫生间分离出了一个干区,做了干湿分离,卫生间更加方便实用。
IMAGES
「实景图」
简约的北欧,绿色是客厅的主色调,搭配原木色的家具、金色元素、绿植摆件让视觉更加丰富有层次,整体和谐统一。
进入客厅,一墙的抹茶绿映入眼帘,在灰色沙发的衬托下,更是将这一抹绿色美到极致,暖色调的家具加入其中,使客厅色调更加舒适养眼。
电视背景墙留白的设计,用绿植点缀空间,简简单单却洋溢着轻松舒适的氛围。
木质餐桌自然又舒适,墙边放置斗柜起收纳作用,空间简单明了,干净而透彻。
大面积的采光使卧室的光线充足,营造温柔而明媚的空间氛围,无主灯设计使空间看起来更加宽敞明亮。
灰色墙面、窗帘搭配木地板,清新自然。绿色元素无处不在,床品、绿植、装饰画,营造了宁静淡雅的睡眠环境。
简洁的家具,淡雅朴素的灰色,温馨舒适,简简单单却洋溢着轻松舒适,整体清晰而明朗。
宽敞的窗户提供充足的自然光线,书房设计非常简洁,书房和卧室一样选择温润的木地板,几本好书,闲暇时光煮一壶茶,一整天好不惬意。
一字型厨房,大理石面板搭配灰色橱柜,打造了一个年轻简约的烹饪空间。
客服
消息
收藏
下载
最近



















