查看完整案例


收藏

下载
房子装好了,
茶已泡好了
花都开好了,欢迎来我家
业主比较喜欢现代风格,希望整体大气,能够有设计感,色调上面喜欢灰色融入一些木色,注重细节化,希望满足需求功能的同时体现个人修养内涵和生活品味。
INFORMATION
「项目信息」
项目地址:
御西湖
项目面积:㎡
200㎡
项目风格:
现代风格
全案设计:
美迪装饰龚广辉
项目用材:
雅士白大理石,万象定制墙板,黑色不锈钢线条,灰色云朵拉灰大理石瓷砖。
FLOOR PLAN
「平面布置方案」
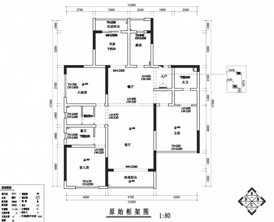
原始结构图
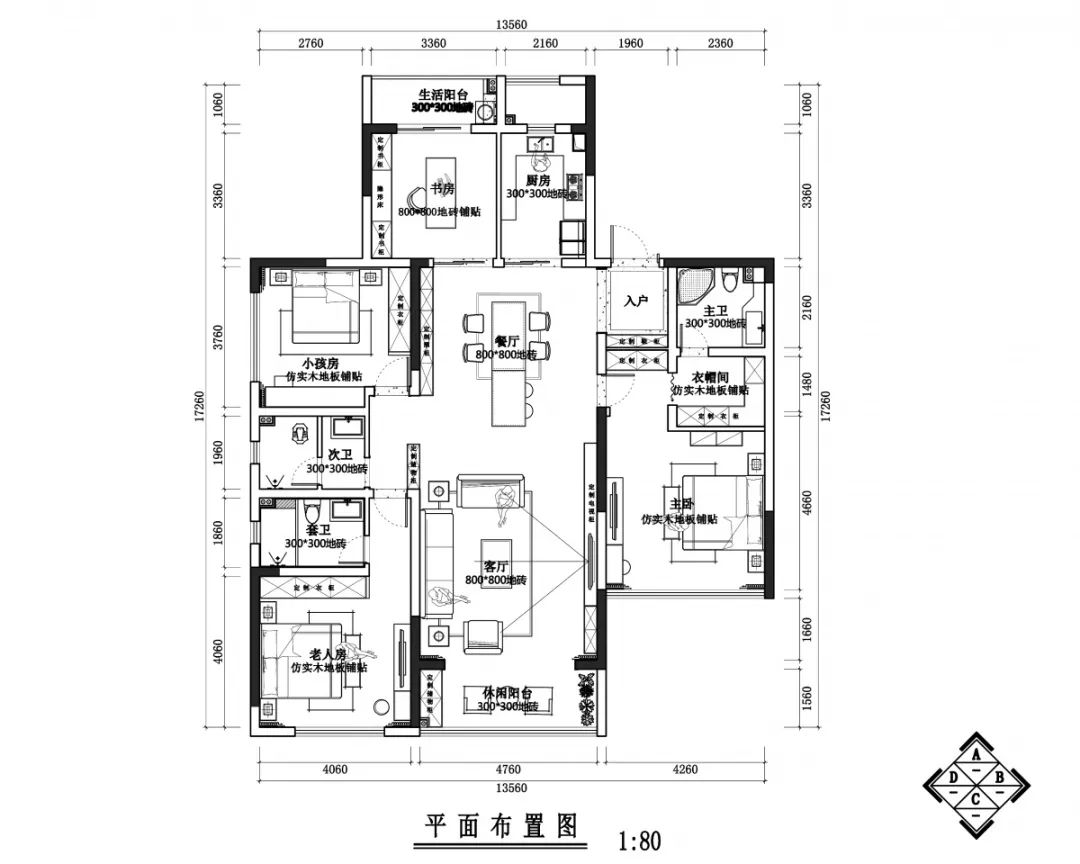
平面布置图
户型改造:
原有厨房不好放置大的冰箱,把厨房墙体往书房平移,扩大厨房进深。
主卧设置为隐形门,解决原来主卧门在电视墙的不适感,让客餐厅的空间更加统一。
主卧独立出来衣帽间的区域,让女主人有一个独立的衣帽间。
ANALYSIS
「空间分析」
▲玄关区域
玄关区域设计简单,一副遨游天际装饰画,明日的太阳散发着璀璨的光芒,搭配装饰摆件,玄关处就能体现业主生活品味。
▲客厅区域
全木制沙发背景墙,经典自然的特质,让客厅更有质感,装饰画的点缀让客厅极具现代感,金属的细节带来一丝轻奢感,满满的高级感由然而生。
▲客厅区域
灰色布艺沙发与大理石组合茶几形成深浅搭配,简单不单调,墨色地毯增加层次感,复古墨绿色单人沙发椅点缀其中,充满了现代生活的精致。
▲餐厅区域
客餐厅一体化,全木制背景延续到餐边柜,定制餐边柜,简约大气,中间留空并加以暗灯设计,消除了木材带来的沉闷感。
▲餐厅区域
餐厅设计线条简约,张扬着现代气息,让生活不失品质,餐桌椅的选择与整个空间的设计完美融合,温暖又有质感的色系,打造了一个精致舒适的用餐空间。
▲卧室区域
简约通透的主卧,延续客厅的配色,整面墙的落地窗,轻薄的纱帘,引入自然光线,散发出舒适无压的休憩氛围
▲父母
房区域
父母房以棕色为主调,沉稳大气,一柜到顶的衣柜,满足整个卧室的储物需求。
▲浴室
区域
浴室设计从务实出发,简约的黑白灰设计,与整体风格相呼应。
■ ■■■■
客服
消息
收藏
下载
最近


















