查看完整案例


收藏

下载
项目地址:昆明·红星紫郡
面积:142平米
设计风格:现代美式
设计师:张玮
客户代表:全秋艳
项目经理:朱吉国
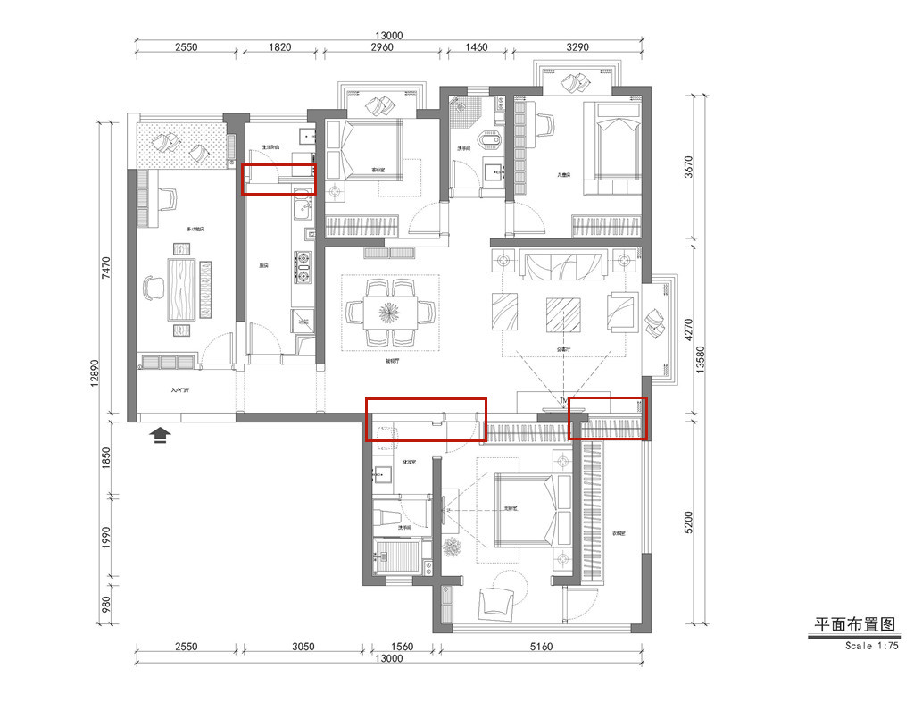
户型改造:
◎缩小生活阳台,扩宽厨房,充足的空间完善了厨房功能;
◎改变主卧室门的位置,主卫独立,功能完善;
◎将一部分阳台规划到主卧室,增加了主卧衣帽间功能,同时也得到完整的电视背景墙。
以往看过的美式风格有时过于厚重、有时过于自然,缺少了一些变换,今天为大家推荐一套休闲风的美式。
米灰色的布艺沙发搭配灰蓝、柠檬黄色抱枕,橡木地板搭配卡其色羊毛地毯,灰蓝色线条沙发背景墙、白色清水文化石墙,一切看起来是那么的简单,但却让人觉得温馨安逸。
餐厅:
优雅的温莎椅作为餐椅,灰蓝色、白色的搭配清新灵动。
厨房:
灰白色厨房搭配让小空间也宽敞明亮。
主卧室以白色调为主,墙纸和床品都搭配了雅致的碎花,大大的落地窗为房间带来足够的光线。
原本的一部分阳台被利用起来做了衣帽间,完善了使用功能。
灰蓝色调的主卫,进行了干湿分区,复古砖跳色拼贴,雅致中不失活泼。
清新活泼的儿童房,为两个小朋友提供了相互陪伴和玩耍的空间。
客卧室满足了简单的接待客人的需求,书房是多功能的,办公、收纳,也可作为临时卧室。
客服
消息
收藏
下载
最近






















