查看完整案例


收藏

下载
◆项目地址:锦昌苑
◆项目面积:160㎡
◆设计公司:晓安设计
◆摄影单位:AK建筑摄影
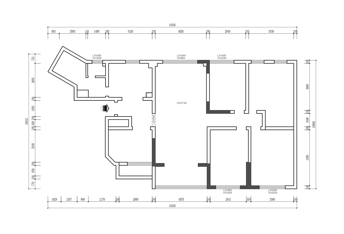
原始户型图
空间结构改动更多的是为了让业主入住后更舒适,更加符合业主的生活习惯。例如这个案子的原始结构,厨房位置面积布置的不怎么合理,而业主却想要的开放式厨房及一个可以做料理的中岛;外卫实际利用率不高,原有储物间的位置距离也是比较尴尬,要先穿过卫生间才能拿到东西;进门过道的作为玄关的一面墙遮挡了入户的光线和空间的视线;过道有点浪费空间,主卧室缺少收纳空间,卫生间面积比较大需要重新规划再利用等。
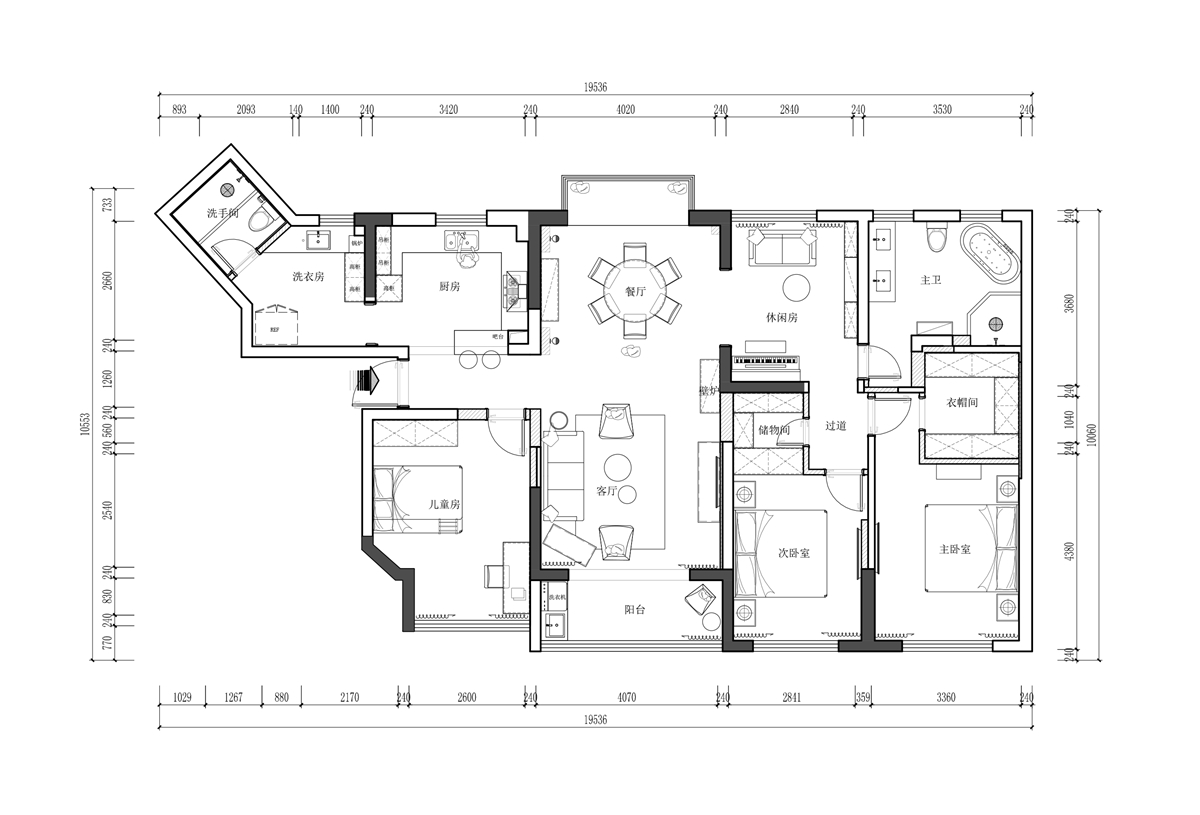
平面布局
通过一些小小的改动,让空间更加适合业主居住,提高空间的利用率。
将原本的玄关端景往后推,满足玄关区的光线充足,充分利用了原本的过道空间,将次卧的衣柜和储物间相互集合。外卫和储物间拆除不必要的墙体,合理规划好淋浴区、台盆的位置,增加厨房的利用空间,避免之前的拿东西要经过卫生间空间。
借用了多余的主卫空间,为主卧室增加了一个独立式的衣帽间,满足日常衣帽的储物。结构上把原来卫生间的面积借用,再借用一点主卧室的空间,这样形成一个独立式衣帽间的功能。
玄关GENUINE
因为把玄关端景的墙体拆除,从风水学角度来说需要有一个端景作为一个入户的玄关,我们把原有的过道端口封掉,保证了电视背景墙整体性。玄关端景处安置的装饰性壁炉,配上定制的装饰画,一进门就会有一种视觉的冲击力。
客厅LIVING ROOM
为了满足业主想要坐在大大的飘窗上喝茶看书的美好预想,将原有的空调外机位重新利用做一个大大的飘窗。
过道AISLE
进门口玄关墙拆除,这样空间时间上会比较舒服,而儿童房原本的墙面不齐平,通过玄关位的改动让空间方正有规律。既满足业主想要的开放式厨房,又能增加出一个中岛料理台兼吧台的功能,大大利用原有厨房面积。
餐厅DINING ROOM
休闲房LEISURE ROOM
卧室BEDROOM
次卧SECOND BEDROOM
儿童房CHILDREN'S ROOM
厨房KITCHEN
卫生间BATHROOM
客户说:
认识晓安多久,想改造家里的念头就有了多久。终于在去年暑假前,我们敲定了这个事情,决定把家敲成毛胚重新打造。在接下来的近一年的时间中,这个家便从毛胚到成品,一点一滴重新构造起来了。在晓安的设计下,有限的空间里,我有了一个大大的飘窗,一个属于自己的衣帽间,一个不大不小的适合早餐的吧台,一个全家实用的整体书柜……,家里随处可以坐下来喝一杯茶,看一本书,听一段音乐,拥有一份美好。虽然整体装修时间不短,但是装修过程中沟通顺畅,买东西总是能和晓安非常默契,很快可以挑选到心仪的。很多朋友问我,你们家是什么风格?我总是习惯性先问晓安,他也笑了:舒适风。对,我想我们的确是把它打造成了一个我们喜爱的家,一个舒适的家,一个温暖的家,一个我们都满意的家。
客服
消息
收藏
下载
最近



























