查看完整案例


收藏

下载
听过许多爱情故事
四季、三餐、两人、一个家
脑海中便勾勒出幸福的模样
从爱情到婚姻,自此走进彼此的生命
遇见对的人,也遇见了共同的生活
婚姻需要仪式感,家也一样
今天分享一套简约舒适婚房
看看设计师如何打造出
一个温馨浪漫的“两人世界”
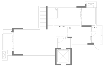
原始图&平面图
一层原始结构图
二层原始结构图
户型原始结构中客、餐厅空间较小,业主要求保留三间卧室一个书房,还希望能够有独立的书房和独立的衣帽间,但是又不想主卧显得太小。另外楼下厨房的格局已经无法改变,进门的入户需要做优化处理。
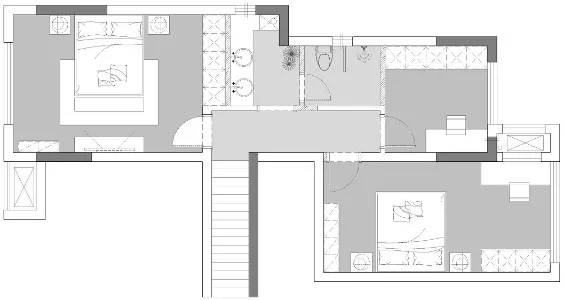
一层平面布置图
房子的主人是一对年轻小夫妻,父母偶尔过来小住。业主是平面设计出身的,特别喜欢 Houzz 家装设计社区里面的居家感觉,而且对材料环保和品质非常重视。
设计师根据和业主的沟通,以及对业主整体的感觉,最终定位为简约时尚风格。希望给业主打造一个自然简约,舒适不造作,知性而优雅的居住氛围。
由于是两人的婚房,所以他们参与性很强,有自己的想法知道自己想要什么,并希望亲自打造所有的细节。
这个房子的设计里面,还有很多地方是业主和设计师一起讨论的,两人共同参与婚房的设计,可让人羡慕了呢~
玄关
玄关柜++ 人像装饰画是美观性最强的设计,让整个空间的格调瞬间上升了一个档次。简单的摆上一株花卉,一进门就感受到生机盎然,好心情便从进门就开始啦~客厅。
茶几则选择了可以随时更换方便移动的,这样的设计是不是更加贴心呢~
没有反复的空间布局每一处都干净利落让人感觉温暖而舒适脱下高跟鞋和外套在专属的两人空间里将所有烦恼都统统抛之脑后享受回家的轻松与闲适想想就觉得超爽的~餐厅
白色圆形大理石餐桌搭配淡蓝色餐椅让餐厅散发着清新的味道别致的水晶吊灯在淡雅的感觉中增添了一丝时尚的格调
一幅画作、一瓶花束营造一种浪漫优雅的就餐氛围。
每天早晨在这样浪漫的餐厅享用美味的早餐。
每一天都会元气满满吧~
主卧
身为两个朝九晚五的上班族卧室是最能好好休息放松的空间。静谧蓝无疑是一道亮丽的风景线,让人在视觉上觉得静谧安宁。清爽的床品,简简单单的房间配置,丝毫不渲染做作。一个收纳性棒棒的卧室很重要,两侧的收纳柜让空间收纳性非常好。搭配原木地板,让空间看起来很有层次。在这样一间清新明朗的卧室,每天只想睡到自然醒呀~次卧
将老人房套装门向房间移位,扩大次卫盥洗区域的同时,过道也显得更宽敞。整个房间精致而又典雅,让人感到舒心。没有过多耀眼的颜色,一切看着都那么自然。这样的居室对于喜静的爸妈来说是最合适不过的啦。很安逸、很放松。晚上的休闲时间里,两老一起看部电影或者听听音乐,简直是一个大写的满足。超级美滋滋哩~
儿童房
好有爱的儿童房设计
蓝白灰条纹的床品
金属质感的床
原木地板砖铺贴
还有床头的创意装饰画
感受到满满的童趣
就连小编看着都喜欢得不得了呀~
书房
白色,简约素雅用白色装点书房给人一种宁静安详的感觉书桌迎合窗户摆设保证了充足的光源而灰色的椅子搭配独特装饰画也显得格外别致有趣~厨卫
设计师在厨房和生活阳台之间选择了木制结构的子母门作为分隔,看起来美观而有质感,同时也区别于常用的塑钢门。轻快明朗的厨房空间,浅灰色橱柜简约而自然,呈现出一种整洁干净的舒适感,让人忍不住爱上厨房。总有那么一个人,让你甘愿洗手作羹汤,爱在厨房,让你摇身一变成“厨娘”~
乳白色卫生间,洁美纯净与众色调配,赋予全新的感官享受。二楼保留一个卫生间,独立宽敞的盥洗区,干湿分区,并能储存女业主很多护肤品。卫生间不仅仅只是用来洗漱,也是用来享受生活中的点点滴滴。夏天,只想早点回家冲个凉,这便是恋家的又一个原因。主卫生间马桶位置与起初设计有些不同,在施工时进行了细微的调整。业主看了很多卫生间关于防水漆跟砖底之间的搭配和结合,但大多数传统的装修公司都说不好实现。其实现在这样装起来,不仅很清爽,也没有不方便,而且防水漆的防水功能也是很加分的~
客服
消息
收藏
下载
最近



































