查看完整案例


收藏

下载
楼盘:棕榈泉
面积:160㎡
户型:四室两厅
风格:现代混搭美式
整体费用:68W
硬装设计:DE设计事务所-蒋琴
这个宽敞的家里住着恩爱小两口,男主人高大帅气,喜欢音乐和篮球,女主人可爱娇小,喜欢数字和包包。设计师从两者喜好之间的不同入手,本案整体颜色偏向于灰+黑VS金+白,黑灰于阳刚,金白于细腻精致,雄性荷尔蒙的动态运动与宁静有质感的静态艺术结合,两者互补就和他们这个现代美式家一样,是一首纯钢琴伴奏的——i belive i can fly
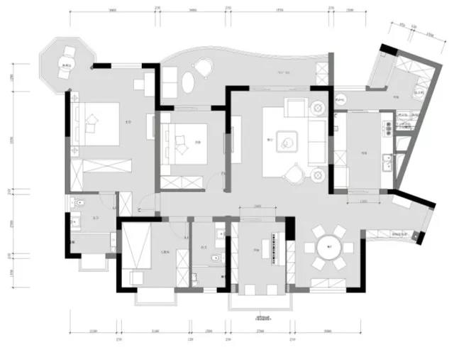
原始户型图
平面布置图
告别所谓的现代美式,告别千篇一律的柳丁+皮质OR布艺+雕花实木沙发,告别实木箱体茶几,告别维多利亚圆形餐桌,都让他们LET IT GO!取而代之的是我们宽大舒适的沙发,简洁的大理石茶几,干净利落的黑色餐桌,一切都是新的开始,我们要的不是原版的i belive i can fly,而是钢琴版的i belive i can fly。
打掉餐厅和书房的共用墙体,利用墙体厚度增加酒水柜功能
设计师拆除原有入户门厅门洞,引光入厨,增加厨房空间。同时利用空间变化造成的不规则性,加强生活阳台洗涤区功能。
缩小主卫,留出更多空间做衣帽间,并把本来正对入户门的卫生间门变成展示柜。
“书桌向阳,书柜够大,可以和孩子一起学习一起进步,见证彼此的成长。兴致上头,老婆再弹上三两曲。”男业主想过的幸福生活,在这个家里,完美展现。
客服
消息
收藏
下载
最近























