查看完整案例


收藏

下载
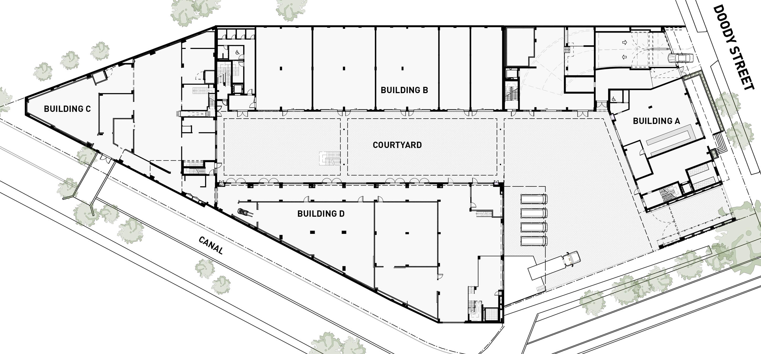
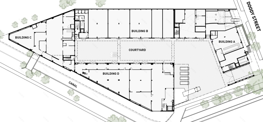
这片面积为5710平方米的大型工业郊区的开发被快速增长所包围,是悉尼市区重建的中心。现有的场地有两个大仓库,在街道上有一个沥青硬顶。
该项目的主要重点是为马克斯·布伦纳澳大利亚新总部建造合适的房舍,提供生产、仓储、辅助管理和工作人员便利设施以及一家咖啡馆。
该项目计划在四栋建筑物内进行。
A楼是沿着街道正面布置的。L形4层建筑与B楼以相同的建筑深度相连,形成一个连续的立面.新结构采用与后方仓库相同的楼层和材料,以建立一个连贯的建筑综合体。A楼容纳主要接待区和行政职能,以及从Doody街可到达的咖啡馆。在楼上,它提供工作人员娱乐设施。
在建筑B中,目标是尽可能多地保留现有仓库结构。这栋房子现在可以容纳不同的租户在整个可调节的仓库空间里。该装置尺寸灵活,适用于从高科技到轻工业、仓库、陈列室和办公室的各种用途。
现有的后仓C楼,保留了所有外墙,以保持建筑物的特色。一个新的板被建造,以创造一个干净的空地,生产厨房在底层。一楼设有工作人员设施和行政办公室。东面的一个新的砖墙立面关闭了院子,连接了B和D两栋建筑。从四面八方来看,一个开放式的平面大厅坐落在生产厨房上方,周围是一个屋顶露台。这座高耸的新建筑采用Corten钢结构,将其与现有的砖结构隔开,同时强调工地的工业风格。
D楼是一个两层的仓库,包括冷藏室和冷藏室,东端有一个装载平台。在保留现有屋顶结构的同时,建筑的其余部分是从新砖墙、混凝土和钢结构楼层建造成2层,再加上一个阁楼。
旧仓库屋顶的一部分被拆除,以创建内部庭院,视觉上隐藏在公共领域。屋顶梁被保留,暗示了遗址的历史和结构元素。
选择外部材料和饰面,以补充周边地区,提高工业外观。为了在视觉上将所有建筑物连接在一起-一种深红颜色的坚固的面砖,几乎所有新立面都采用罗马砖块的形式作为主要材料。只有两个顶层建筑部件与锈蚀的Corten钢正面表面形成对比。
该项目将旧式仓储仓库和硬看台改造成一个现代化的内部庭院周围的工作环境,
的设计为维护和加强现有建筑和局部地区的特色提供了明确的承诺。新增加的设施提供了良好的便利条件,在现代工作氛围中,改善了整个太阳能通道。
客户:Max Brenner澳大利亚
结构工程师:北滩咨询工程师
Firm U+I Building Studio
Type Commercial › Office Industrial › Factory Warehouse
STATUS Built
YEAR 2017
SIZE 25,000 sqft - 100,000 sqft
keywordsarchitecture, architecture news, interiors, interior design, portfolio, spec, brands, marketplace, products Company Headquarter in Sydney
建筑、建筑、新闻、室内、室内设计、组合、规格、品牌、市场、产品公司总部在悉尼
客服
消息
收藏
下载
最近































