查看完整案例


收藏

下载
风尚波普 打造香艳美屋
房主:山鹰 Eagle
职业:发型美容机构监事
户型面积:复式,两房两厅,70平米左右
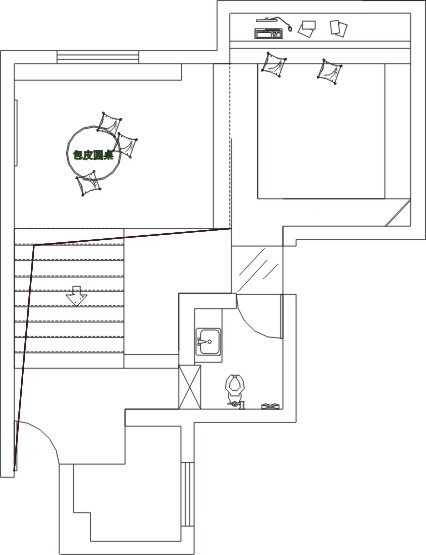
这是一座楼房的顶层,建筑面积只有70平米左右,但是却被隔成了一个实际使用面积达到100多平米的复式楼。瞧瞧房主的职业,你就知道他是武汉著名美容机构的大腕了。做时尚行业多年的山鹰,对家里的装修品位也是要求颇高。
中庭 宽幅楼梯能够躺人
一进山鹰家的门,直逼眼球的就是一个宽幅的楼梯,台阶有两米多宽,每级都能躺下一个人。对于喜欢经常在家举办“轰趴”的他来说,这个楼梯还能成为几个朋友坐着聊天、品洋酒的独特“吧台”。楼梯旁的兵马俑雕像,是在景德镇旅游时带回来的,阳刚稳重。
坡屋吊顶很容易给人压迫感,而做成大小不同的方块造型,却能增加层次感。旁边墙面也贴满了咖啡瑟波浪条纹壁纸,给人空间无限延伸的视觉效果。
主卧 简单宁静心之归属
卧室的主要功能就是休息,这就需要一个简单宁静的环境,让忙碌压抑了一天的心有个舒适归属地。卧室理除了床和衣柜,没有太多杂乱的家具,整个色调以冷色为主,清净安详。衣柜门是黑白色不规则图形拼成的,不规则几何图形是波普风格中必不可少的元素。
客厅 视听、休闲两厅合一
山鹰没有像常人那样将卧室安排在楼上,而是将客厅安排在上面。一方面可以将视听、休闲两厅和一,休息、娱乐、学习都集中在一起,而且能使原来压抑的空间更开阔。另一方面,夏天卧室的温度相对较低,避免顶层的燥热感。客厅的每个角落都游移着“波普主义”的情绪。视听区的壁挂式等离子电视和一套玲珑小巧的限量版家庭影院,组成一个小型娱乐区。时尚摩登的单人红黑两色真皮沙发、艳丽的红心地垫、顶部的水晶吊灯和射灯、水泥地台的地灯,所有这些都为晚上的“轰趴”制造了完美的氛围。
客服
消息
收藏
下载
最近































