查看完整案例


收藏

下载
© Jim Stephenson
吉姆·斯蒂芬森
架构师提供的文本描述。该框架是一个定制的发展,为小型和创造性的企业在Shoreditch。这座五层楼的建筑占地8万平方米。英国“金融时报”。为伦敦新兴的公司提供灵活的工作空间,提供适合不同用户的办公和工作室单元,以及共享会议室、休息区、茶点、自行车储藏、淋浴设施和咖啡馆。
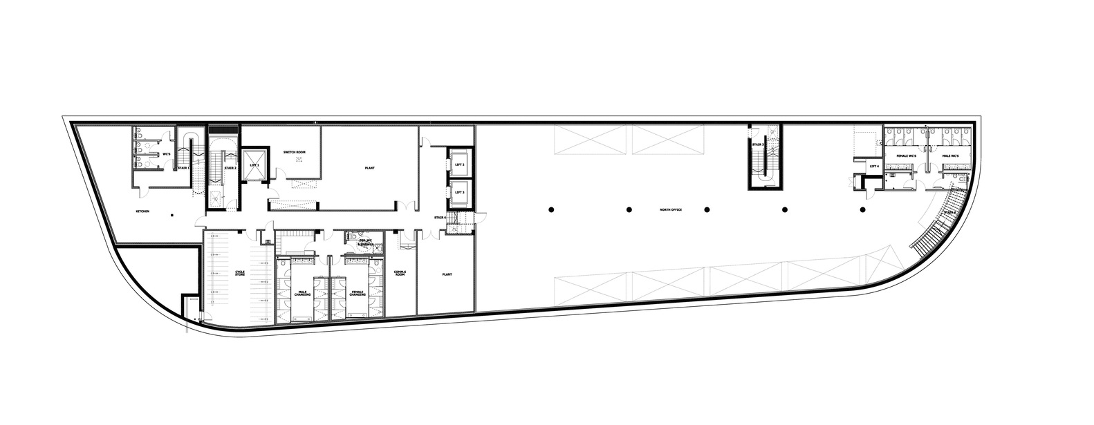
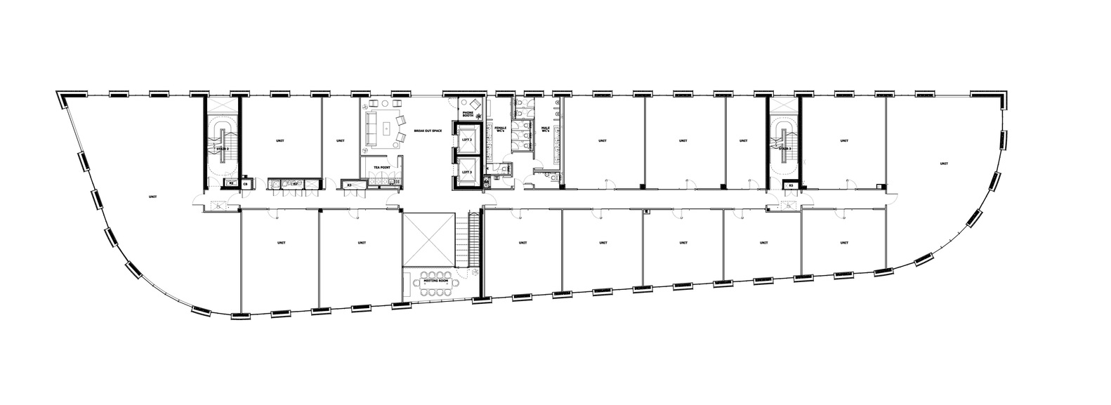
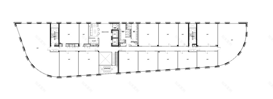
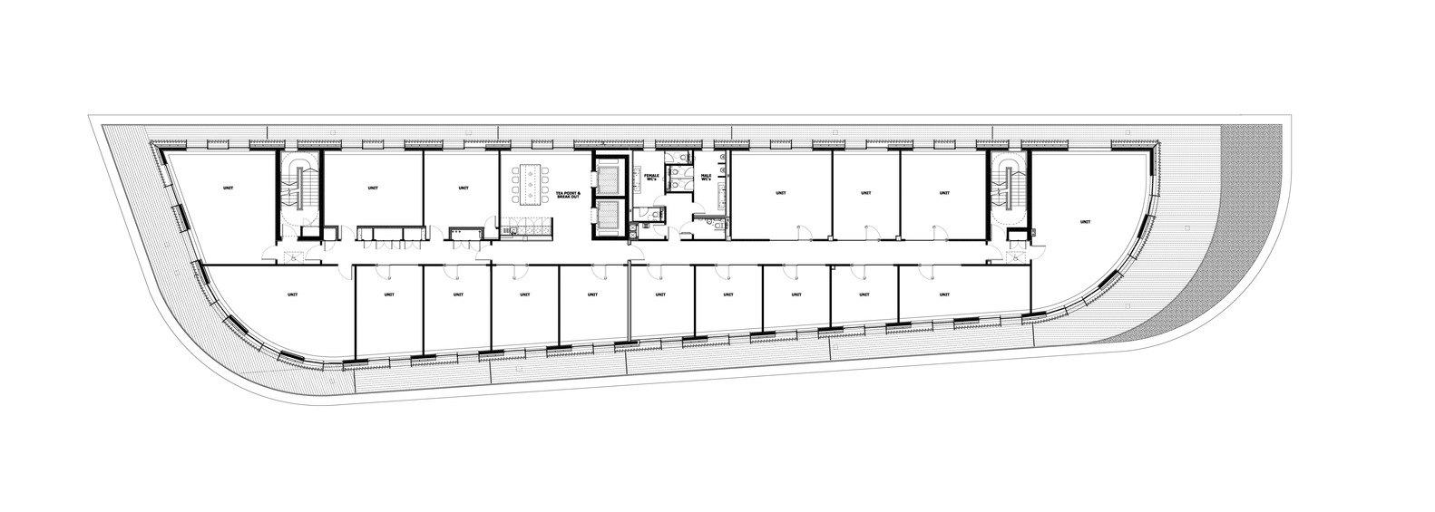
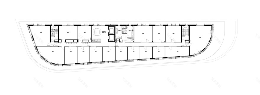
Text description provided by the architects. The Frames is a bespoke development tailored to small and creative businesses in Shoreditch. The five-story building creates 80,000 sq. ft. of flexible workspace for London’s new and growing companies, providing office and studio units to suit a variety of users, along with shared meeting rooms, break-out areas, tea points, cycle storage, shower facilities, and a café.
Text description provided by the architects. The Frames is a bespoke development tailored to small and creative businesses in Shoreditch. The five-story building creates 80,000 sq. ft. of flexible workspace for London’s new and growing companies, providing office and studio units to suit a variety of users, along with shared meeting rooms, break-out areas, tea points, cycle storage, shower facilities, and a café.
© Jim Stephenson
吉姆·斯蒂芬森
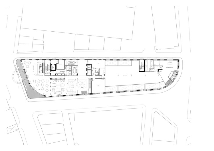
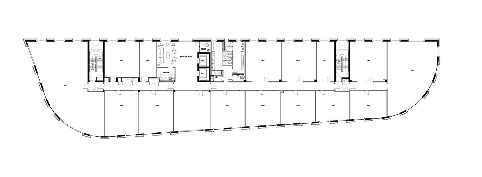
Ground Floor Plan
© Jim Stephenson
吉姆·斯蒂芬森
建筑围护结构采用砖、金属、玻璃等特征仓库白话的影响,采用砖、金属、玻璃的调色板。在Phippo街的弯曲线之后,有一系列由Cornow-Coal窗口打断的砖柱,该设计强调结构的垂直比例。
Influenced by the characteristic warehouse vernacular of the surrounding South Shoreditch Conservation Area, the building envelope employs a palette of brick, metal, and glass. Following the curved line of Phipp Street with a series of brick columns punctuated by corten-clad window reveals, the design emphasizes the vertical proportions of the structure.
Influenced by the characteristic warehouse vernacular of the surrounding South Shoreditch Conservation Area, the building envelope employs a palette of brick, metal, and glass. Following the curved line of Phipp Street with a series of brick columns punctuated by corten-clad window reveals, the design emphasizes the vertical proportions of the structure.
© Jim Stephenson
吉姆·斯蒂芬森
该建筑的顶部两层都是背靠的,具有扭曲的深灰色穿孔铝制翅片,这参考了该地区的历史纺织生产历史,并提供了太阳遮阳。
The top two floors of the building are set back and feature twisted dark grey perforated aluminum fins, which reference the historical textile manufacturing history of the neighborhood and provide solar shading.
The top two floors of the building are set back and feature twisted dark grey perforated aluminum fins, which reference the historical textile manufacturing history of the neighborhood and provide solar shading.
© James Balston
(詹姆斯·巴尔斯顿)
Elevations
© James Balston
(詹姆斯·巴尔斯顿)
一种原材料和饰面的语言继续在建筑物内进行,有抛光的混凝土地板、暴露在外面的露物、裹着球衣的提升芯和一个引人注目的折叠钢楼梯。由著名艺术家贾戈先生在接待区的艺术装置创造了一幅独特的双高壁画。
A language of raw materials and finishes continues inside the building, with polished concrete floors, exposed soffits, corten-clad lift cores, and a striking folded steel staircase. An art installation in the reception area by renowned artist Mr. Jago creates a unique double-height mural.
A language of raw materials and finishes continues inside the building, with polished concrete floors, exposed soffits, corten-clad lift cores, and a striking folded steel staircase. An art installation in the reception area by renowned artist Mr. Jago creates a unique double-height mural.
© Jim Stephenson
吉姆·斯蒂芬森
客服
消息
收藏
下载
最近













































