查看完整案例


收藏

下载
蒂蒂耶-纽斯塔特是黑森林上游一个宁静的小镇,已成为亚洲游客最喜欢的旅游胜地。它田园诗般的湖边位置在浪漫的黑森林,许多人欣赏它是如何提供一个极地相反的城市,工业化的生活方式。当然,购物现在和参观科隆大教堂或慕尼黑的霍夫布鲁豪斯啤酒大厅一样重要。
迪姆巴是一家族经营的公司,20世纪50年代,这家公司开始在蒂蒂西提供船只租赁服务。该公司很早就意识到了购物的趋势,并开始专门销售传统的布谷鸟钟和高端手表。今天,杜巴村是亚洲游客中一个著名的名字,也是一个很受欢迎的旅游目的地。
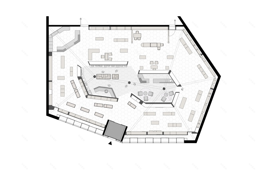
德乌马已经将手表销售室迁到湖滨的一座新建筑里。我们的任务是创造一个集中的购物体验,迎合许多亚洲游客的紧张日程,同时将各个品牌区域整合成一个统一的空间概念。
不同的品牌围绕着一个核心区域呈现。为了使品牌能够在自己的企业架构环境中以吸引人的方式展示自己的产品,品牌空间的设计仅受几个指导原则的限制。壁龛定义了框架,并提供了统一的节奏。地板采用大版式瓷砖,为品牌展示创造了一个有约束的背景,而六角形则巧妙地解决了空间的多边形布局。微妙的瓷砖颜色意味着空间的外环向后退,让品牌自己走到舞台的中心。照明设计的一个关键挑战是确保当产品从展示柜中取出时,它们仍然在相同的光线下出现。
空间的中心有一个特殊的特征。在这里,咖啡厅/酒吧和钟表制造商的服务,机械杰作和高质量的时钟被展示和销售。这里的捕眼器是一个由4362根云杉杆组成的天花板,它以波浪的形式延伸到整个中心区域。这个元素作为空间的情感中心,并参考周围的黑森林。自然色调占主导地位。显示表的上部用深色金属色调执行,而计数器的上部用深色人造皮革覆盖。物质世界和色彩世界是指自然和周围黑森林的自然真实性。以微妙的优雅和温和的戏剧性,中心空间被转变成一个视觉吸引力,而不窃取周围的品牌地区的节目。
Firm Ippolito Fleitz Group - Identity Architects
Type Commercial › Retail
STATUS Built
YEAR 2015
Photos Zooey Braun
keywords:architecture, architecture news, interiors, interior design, portfolio, spec, brands, marketplace, products Drubba Moments
关键词:建筑,建筑新闻,室内设计,产品组合,规格,品牌,市场,产品
客服
消息
收藏
下载
最近










