查看完整案例


收藏

下载
© Adarsha R
(C)Adarsha R
架构师提供的文本描述。同时,为自己的建筑实践建立一个办公室和工作室是一个充满挑战和令人兴奋的前景。当功能设计开始建造他们自己的工作室时,他们想要展现出他们迄今为止在所有项目中所具有的强烈的概念性想法和结构探索。容纳功能设计的布局是一个面向南的场地,40英尺x40英尺,位于班加罗尔Sanjaynagar一个繁华的住宅区,其特点是密集的低层住宅,相邻建筑之间的距离很小。
Text description provided by the architects. Building an office and studio for one’s own architecture practice is a challenging and an exciting prospect at the same time. When Funktion Design set out to build their own studio, they wanted to bring to the fore, a strong conceptual ideation and structural exploration that they have hallmarked in all their projects to date. The layout accommodating Funktion Design is a South facing site, 40 feet x 40 feet in dimension and located in a bustling residential area of Sanjaynagar, Bangalore characterized by dense low rise housing with very little distance between adjoining buildings.
© Adarsha R
(C)Adarsha R
该遗址被两棵高大的古尔摩哈树环绕在路边,距离地面约9-10米,给一个原本是混凝土的社区提供了木本植物的魅力。在这些高密度地点的上游有最好的光线和通风。因此,设计策略是对这个网站背景的回应,也是对建筑办公室类型学程序的重新解释。办公室分布在大楼的顶层两层。
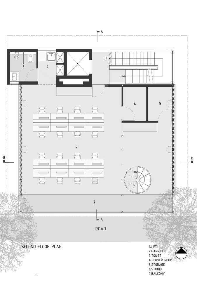
The site is skirted by two voluminous Gulmohar trees along the road canopying at around 9-10m from the ground and offering their woody charm to an otherwise concrete neighborhood. The best light and ventilation is available in the upper reaches of these high-density sites. The design strategy, therefore, evolved as a response to this site context as well as a reinterpretation of the program of an architecture office typology. The office spreads across the top two floors of the building.
最顶层由会议室、会议厅和接待处组成,基本上构成演播室的公众形象;下面的地板则体现了工作室工作站与外面的Gulmohar天篷相平行,令人着迷。这两层楼表现为一个巨大的铝制包厢,放置在一个8米高的混凝土门廊上,打开通向长长的阳台(面向道路),用可回收的柚木百叶窗切断南太阳的刺骨。在下面的水平上,悬挂着一个玻璃墙,重新调整的胶合板地板阁楼悬挂在混凝土门户,这是目前作为一个艺术画廊。这一社会空间仍在为今后的扩张做准备。
The topmost floor comprises of meeting rooms, conference hall, and reception that essentially forms the public face of the studio; and the floor below embodies the studio workstations aligned fascinatingly in level with the Gulmohar canopy outside. These two floors are expressed as a large aluminum-clad box placed on a concrete portal at an 8m level and open out into long balconies (facing the road) with recycled teak wood louvers to cut off the harshness of the South Sun. At the level below, hangs a glass-walled re-adaptable plywood floor mezzanine suspended from the concrete portal, which currently is being used as an art gallery. This social space still remains in the pipeline for future expansion.
© Adarsha R
(C)Adarsha R
功能设计是一种有趣的结构语言的表达。主要支护结构为3个9m×8m混凝土门户,其中3个钢门户构成了支撑演播室层钢甲板屋顶和会议区的框架。悬挂在混凝土门户上的阁楼廊看起来就像一个半透明的灯笼,上面覆盖着垂直的木制百叶窗,起到了气候屏障的作用。这三个大型的混凝土入口让人联想到60年代野蛮大师的结构表现。顶部的展宽和所有三个维度的逐渐缩小,给观众留下了动物四肢的印象。沿横截面尺寸的细微变化,使巧妙的微妙之处变成了一种本来就很大的尺度。
Funktion Design is an expression of an interesting structural language. The main supporting structure is cast by three 9m x 8m concrete portals on which three steel portals form the framework supporting the steel deck roofs of the studio level and the meeting zone. The mezzanine gallery suspended from the concrete portal is expressed to look like a translucent lantern covered with vertical wooden louvers that act as a climate screen. The three large concrete portals reminisce the structural expression of brutalist masters of the 60s. Widening at the top and tapering in all three dimensions gives the audience the impression of an animal’s limbs. The subtle changes in dimensions along the cross section render an ingenious delicacy to an otherwise large scale.
材料调色板主要由混凝土、钢和木材组成。使用回收柚木从旧的被拆毁的房屋和有机泥土完成的混凝土入口留下的原始形式,表现出熟练的工艺和直观的执行过程与非常基本的模板和资源。白色的钢制甲板屋顶和结构构件在室内空间中散发出一种恒定的韵律。所有的室内橱柜和墙内覆层都是抛光胶合板,地板在工作室使用绿色的科塔石,在会议区域使用再生木材来补充其他天然材料。
The material palette consists primarily of concrete, steel, and wood. The use of recycled teak wood sourced from old demolished houses and the organic earthy finish of the concrete portals left in their raw form expresses skilled workmanship and an intuitive execution process with very basic formwork and resources. The white painted steel deck roof and structural member emanate a constant rhythm through the interior spaces. All the interior cabinetry and wall inner cladding are polished plywood.The flooring has been done using green kota stone in the studio and recycled wood in the meeting areas complimenting other natural materials.
© Adarsha R
(C)Adarsha R
Architects Funktion Design
Location Bengaluru, Karnataka, India
Lead Architect Madhusudhan Sridhar
Design Team Monika Revankar, Pradhan Biddappa, Haridas
Area 3000.0 ft2
Project Year 2017
Photographs Adarsha R
Category Offices
Manufacturers Loading...
客服
消息
收藏
下载
最近





























