查看完整案例


收藏

下载
© John Gollings
约翰·戈林斯
架构师提供的文本描述。墨尔本语法学校的新的 Geoff Handbury 科技中心,是一个简单而独特的雕塑结构。它产生了令人信服的图像,暗示了正在进行的科学和技术调查。学校的简介是建立一个独特的科学和技术中心;一个设施,将支持今天和将来的教职员和学生。
Text description provided by the architects. The new Geoff Handbury Science and Technology Hub at Melbourne Grammar School, is a simple, singular sculptural structure. It produces compelling imagery that alludes to the scientific and technological investigations taking place within. The School’s brief was to create a unique kind of science and technology centre; a facility that will support staff and students today and into the future.
© John Gollings
约翰·戈林斯
这座建筑同情校园的传统和特色,在形式和色彩上都为“蓝石校园”的性格做出了贡献。它还保持了现有街景的定义,以一种平静和相当的方式,一个轻轻弯曲的角落和尽头。
The building is sympathetic to the campus heritage and identity, contributing to the ‘Bluestone Campus’ character in both form and colour. It also maintains definition of the existing neighbourhood streetscape, in a calm and quite way with a gently curving corner and ends. Courtesy of Denton Corker Marshall
丹顿·考克·马歇尔 (Denton Corker Marshall)
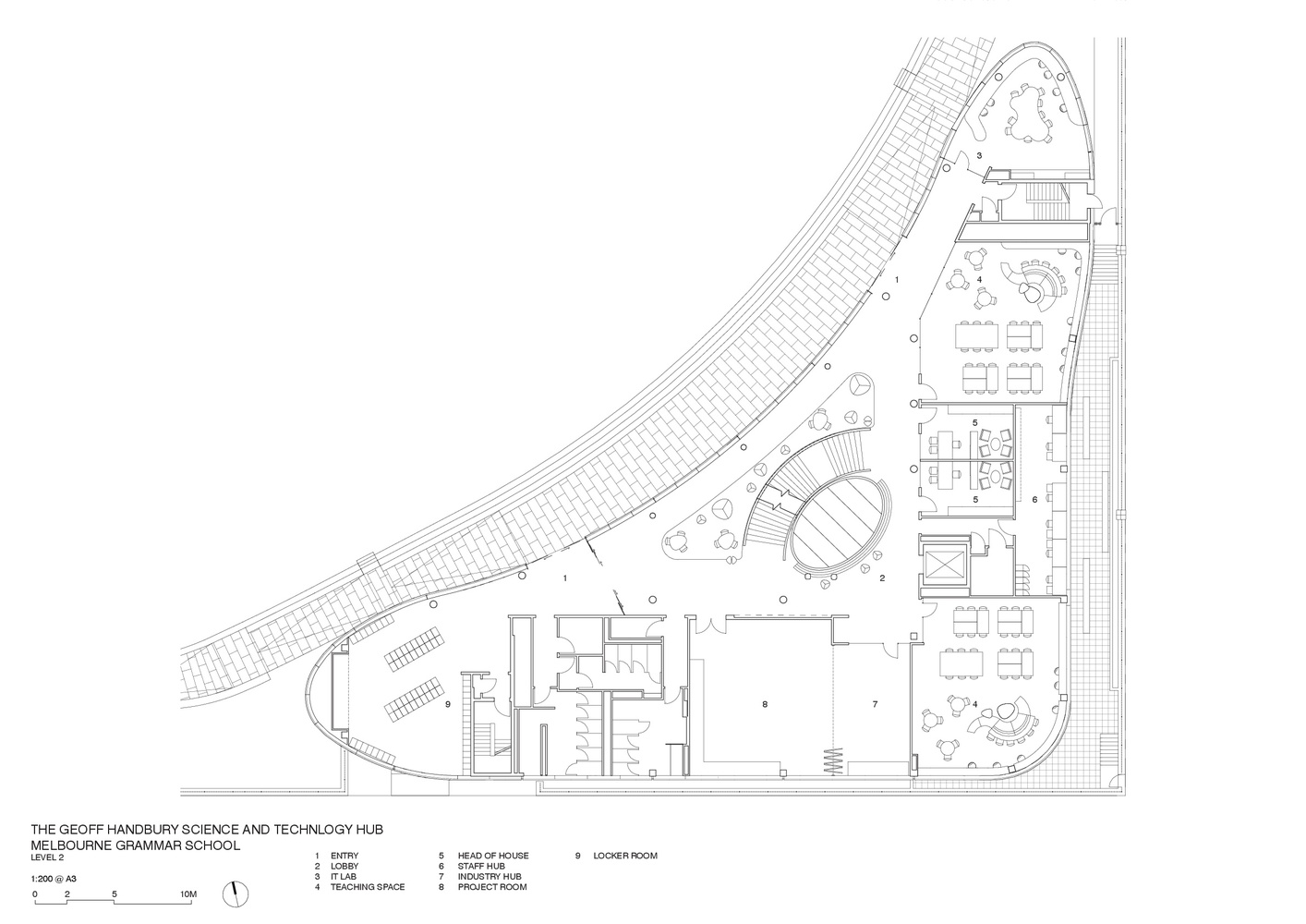
与中央校园分开的建筑形式,位于东南角的建筑,也与更广阔的校园景观融为一体。弯曲的建筑形式是对主要椭圆形的明确和直接的反应,它的物理存在作为一个独立的建筑被提升。弯曲的看台和俯瞰门廊,边椭圆形的屋顶和天空水平,一个激活,开放和覆盖的学习区连接到一个绿色屋顶花园已经创建。
Separated from the central campus built form, the building, located on the south east corner, also engages with the wider campus landscape. The curved building form is a clear and direct response to the main oval, its physical presence heightened as a stand-alone building. The curved bleachers and overlooking porch, edge the oval while at roof and sky level, an activated, open and covered learning area linking to a green roof garden has been created. © John Gollings
约翰·戈林斯
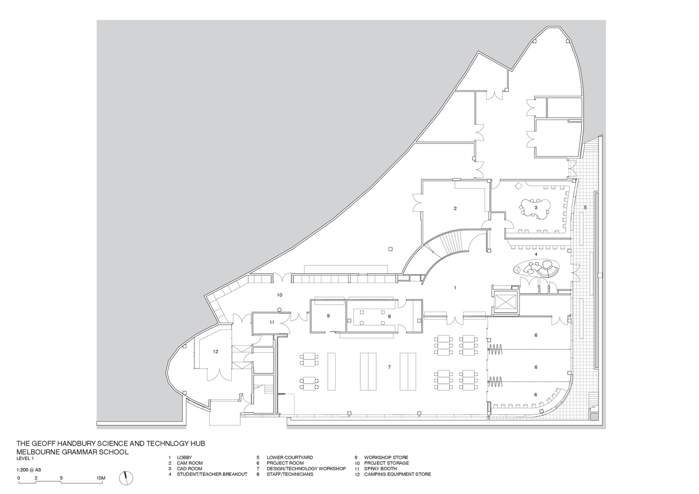
进入大楼是通过一条凸起的,缓缓上升的通道,通向一个有盖的入口。内部安排适应新的和正在出现的教学方法,因为它的组织高度灵活、高度透明和高效率。它的特点是:更广泛的教学环境;能够开展协作教学的空间;以及在教室/实验室空间内外的正规学习和非正式学习之间的模糊区别。
Entry to the building is via a raised, gently ramped pathway, leading to a covered entry. The internal arrangement accommodates new and emerging pedagogies by being highly flexible, highly transparent, and highly efficient in its organisation. It is characterised by broader settings for teaching and learning; spaces that enable collaborative teaching; and blurred distinctions between formal and informal learning within and outside the classroom / laboratory spaces.
其布局以中央教职工中心为基础,促进教职员工和技师的共同合作。这包括一个工作人员工作间,一个集中的实验室准备室,供相当多的工作人员/工作人员和工作人员/学生讨论的空间,以及工作人员的便利设施。
The layout it based upon a Central Hub for staff, promoting teaching staff and technician collegiality. This contains a staff workroom, a centralised lab preparation room, spaces for quite staff / staff and staff / pupil discussions, and staff amenities.
© John Gollings
约翰·戈林斯
两个灵活的、正规的实验室和教室的教学机构,一个在北部,一个在西部。这些区域通过位于大楼中心的学习共享中庭连接起来。这种轻盈、开放和透明的空间将正规的教学部分联系在一起,并包含了各种非正式的学生协作环境,加强了相互联系和促进了互动。它还包括一个充满活力和慷慨 2.5 米宽的楼梯。楼梯的雕塑形状呈弧形,沿着中央轴线上透明会议室的自然循环路径,通过中庭向外的椭圆形和学校校园眺望。
Two flexible, formal pedagogical arms for laboratories and classrooms lead from the Hub, one to the north and one to the west. These zones are connected via a Learning Commons Atrium, at the heart of the building. This light filled, open and transparent space ties the formal pedagogical components together and contains a variety of informal collaborative settings for students, enhancing interconnectivity and promoting interaction. It also contains a dynamic and generous 2.5 metre wide stair. The stair’s sculptural curved shape follows the natural circulation path around a transparent meeting room on the central axis, with views through the Atrium to the oval and school campus beyond.
© John Gollings
约翰·戈林斯
散布在外中庭环周围的是各种非正式的突破区,包括开放的协作休息室和私人学习区,这些区域是与教育工作者合作设计的,目的是促进学生的集中、学习和参与。
Dispersed around the outer Atrium ring are a variety of informal breakout zones including open collaborative lounges and private study zones, designed in collaboration with educators to facilitate concentration, learning and engagement of students.
© John Gollings
约翰·戈林斯
到中庭的底层和入门层还将底层的设计和技术与上层的实验室、教室和超级实验室联系在一起,并提供了大量的项目和工业空间,科学和技术可以在其中相互融合。新的建筑创造了一个教育环境,以支持学生的询问,创造性,学习和社会互动。
The ground floor and entry level to the Atrium also links Design and Technology on the lower ground level with laboratories, classrooms and super-labs on the upper levels, and provides large project and industry spaces where science and technology can mesh. The new building creates an educational environment that supports student enquiry, creativity, learning and social interaction.
© John Gollings
约翰·戈林斯
可持续性声明的外部建筑形式的枢纽是产生遮阳嵌入建筑皮肤。庭院,中庭和内部天窗提供日光进入教学领域,传感器技术控制人工照明。
Sustainability Statement The external building form of the Hub was generated to produce sun-shading embedded into the building skin. Courtyards, atriums and internal skylights provide daylight into teaching areas, with sensor technology controlling artificial lighting. © John Gollings
约翰·戈林斯
泡沫甲板空隙混凝土板系统允许大的内部跨度,减少混凝土的使用,并为热质量提供暴露的混凝土泡沫。主动冷却梁被用来降低能源消耗和操作噪音,同时通过暴露系统提供教育机会。
A Bubbledeck void spacer concrete slab system allows for large internal spans, reduced concrete use and provides exposed concrete soffits for thermal mass. Active chilled beams are used throughout to reduce energy consumption and operational noise, while providing opportunities for education through exposed systems. Courtesy of Denton Corker Marshall
丹顿·考克·马歇尔 (Denton Corker Marshall)
整合到建筑结构中的 pv 天窗是受一个学生环保组织的资助而投入使用的,它为下面的学习实验室提供了自然光,也提供了发电。(鼓掌)
PV skylights integrated into the building fabric were commissioned thanks to fund-raising from a student environmental group, providing both natural light into the learning laboratory below and electricity generation. © John Gollings
约翰·戈林斯
雨水被收集并储存在椭圆形下面的大容量水箱中。来自环境建设倡议的数据可供学生学习,以便监测其表现并将其用作教育工具。
Rainwater is harvested and stored in large capacity tanks buried beneath the oval. Data from environmental building initiatives is available for students to study so that performance can be monitored and used as an education tool.
Courtesy of Denton Corker Marshall
丹顿·考克·马歇尔 (Denton Corker Marshall)
Architects Denton Corker Marshall, Location Domain St, Melbourne VIC 3004, Australia, Interior Architect Denton Corker Marshall, Landscape Urban Initiatives, Area 5000.0 m2, Project Year 2017, Photographs John Gollings, Category University, Manufacturers Loading...
客服
消息
收藏
下载
最近


































