查看完整案例


收藏

下载
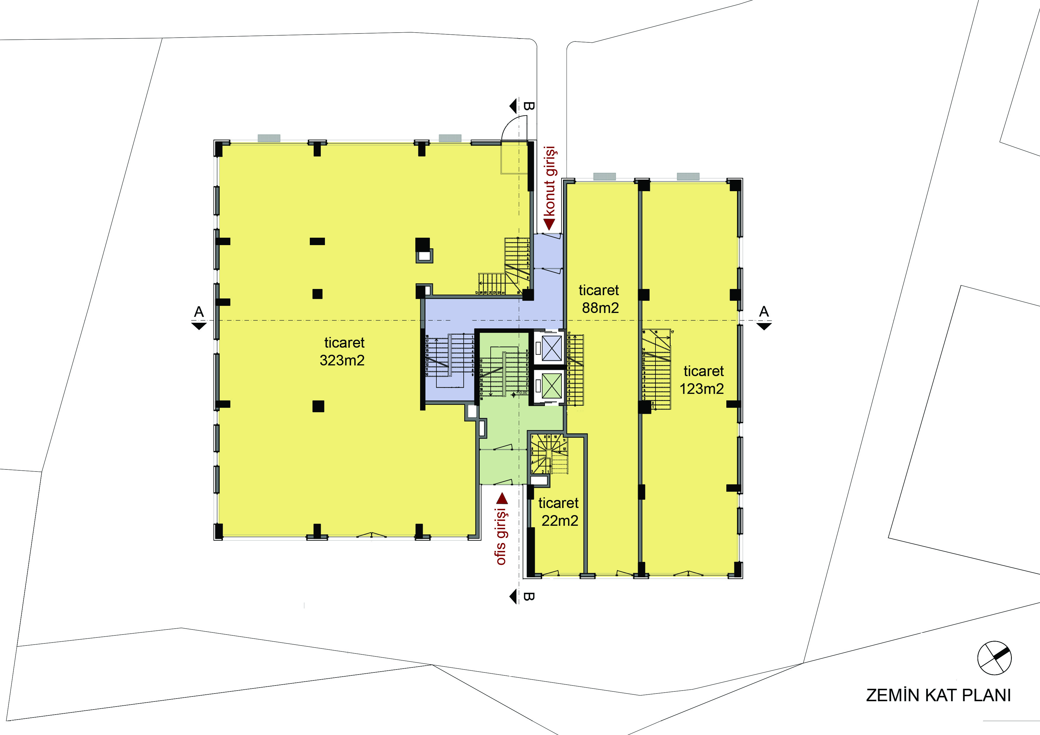
在广泛研究了有关建筑功能和规划解决方案的各种备选方案之后,与土地所有者和开发商一起决定了一个混合用途方案。
因此,地下室和地下被规划为零售空间,上层设计为不同类型的办公室和公寓。
住宅区的入口处计划在后立面上,而办公部分则是从前面的立面进入。这两个部分的循环核心和大厅是并行解决的,但在某种程度上彼此分离。
建筑物的质量和外观设计是为了区分不同的功能。因此,办公室和住宅部分倾斜,从而形成了两座单独的建筑物相互毗邻的总体印象。通过在零售地板正面使用深灰色、在办公部分正面使用浅灰和在住宅部分外墙上使用木材纹理,进一步强调了这种分离。
Firm Manço Architects
Type Commercial › Office Retail Residential › Multi Unit Housing
STATUS Built
YEAR 2015
SIZE 25,000 sqft - 100,000 sqft
keywords:architecture, architecture news, interiors, interior design, portfolio, spec, brands, marketplace, products Eregli Mixed Use Building
关键词:建筑、建筑新闻、室内设计、组合、规格、品牌、市场、产品Eregli混合用途建筑
客服
消息
收藏
下载
最近






























