查看完整案例


收藏

下载
这家延续半个多世纪的’红帮’裁缝店,曾让上海滩男人们为之疯狂。
WW.Chan & Sons是国内西服定制顶级品牌,自香港起源,继上海茂名南路分店后,第四家分店落户成都。创始人作为20世纪50年代第一批“红帮裁缝”到第三代传人肩负责任将这个掌握传统精湛技艺的品牌在成都面向更多的新晋消费者,探索在着装风格和功能上更多的可能性。
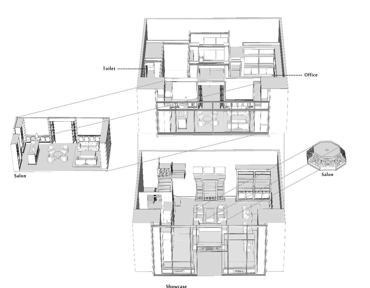
店铺选址成都CBD甲级写字楼底层商铺,共两层,一层用于陈设展示、挑板、及试体,二层为裁版工作区及会客沙龙区。
让人们意识到W.W.Chan & Sons是一家裁缝铺而非时装店,设计难点在于寻找传统而不老旧,摩登而不浮夸的平衡点,使新老客户既能获悉品牌的纯正血统又打消古板老旧的感受,传递高级的距离感而又像老友一般。
利用建筑本身的玻璃幕墙打造对称橱窗用于陈列产品以及品牌介绍,并应季打造橱窗情景。橱窗自然形成的入口配搭地面品牌徽记营造仪式感,低调高级不言而喻。
室内采用暖灰色和黑色天然石材十字拼接,营造出复古安静并且雅致的气质。中岛上方设计了艺术装置灯成为一层空间核心视觉焦点,中岛也作用于引导流线。
选版区,桌子被严苛整齐地放置,配上考究的灯光,客户可以落座于此,挑选对比整面柜子里众多布料和样板衣物,高大体量的木质衣柜延续了源自伦敦Savile街的裁缝铺的传统,搭配黄铜材质的滑梯,方便取料。
洽谈区,主人与客人对坐于沙发对定制的细节进一步的讨论,纽扣、刺绣样式、领型样板、袖口样板等都近在咫尺。
收银台设置在楼梯下方,材料和线条都延续整体空间的胡桃木实木造型,仅用书写灯作为功能识别。
连接二楼的定制楼梯形成小型的艺廊空间,墙面悬挂古董服饰插画,转换平台设置了橱窗和铭牌用于展示品牌创始人的传统定制西服。
二楼吧台和酒柜为小型沙龙酒会提供服务,源自伦敦深蓝色的墙纸配上复古皮革沙发,选用高级羊毛格纹服装面料制作单人沙发。
夜色降临,愉悦交谈的客人老友落座于此,配上威士忌和黑胶唱片的质感音色,便是优雅熙攘的感受。
(以下选图来自了不起频道总第052期发布的《了不起的匠人》,均拍摄于本案现场)
模型图
▽
一层平面布置
▽
二层平面布置
▽
客服
消息
收藏
下载
最近

























