查看完整案例


收藏

下载
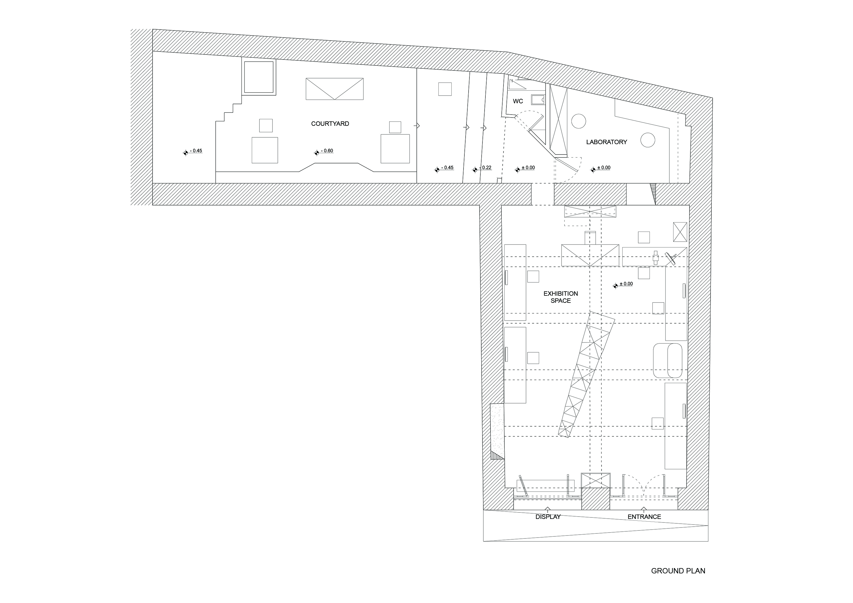
光学商店C_29/‘Optimist’,是一座共90平方米的战后清单建筑,位于ChalKida中心。该空间沿中央市场和建筑核心形成的后院/庭院进行通风和扩展。建筑物本身是一种复合结构,底层由承重砌体和钢筋混凝土承重砖和填充砖两层构成。设计的主要方面是在物质性的纹理中创造一种渐变技术,以强调光的反射和吸收。这种梯度工具继续存在,甚至对材料的选择也起着重要的作用,导致它们在形成空间中的存在或理论上的缺失。一些功利品被转化为棱镜雕塑。庭院空间由一个虚构的立方体定义。更重要的是,该计划不允许与庭院和商店的视觉接触。因此,
节目前后字幕:
建筑师:314间建筑工作室
设计小组:Pavlos Chatziangelidis、Giota Chala、Theodora Papaudoulou、Stelios Dilintas、Andrea Brato、Karolina Balionyte、Angeliki Kokkosi、Maria Nikolousi、Elvin Demiri
建造:
Year: 2015
地点:希腊尤博亚岛ChalKida,欧洲
图片:Voumvakis Panagiotis Voumvakis
Firm 314 architecture studio
Type Commercial › Retail
STATUS Built
YEAR 2015
SIZE 0 sqft - 1000 sqft
BUDGET $50K - 100K
Photos pavlospavlaras
keywordsarchitecture, architecture news, interiors, interior design, portfolio, spec, brands, marketplace, products c_29 / optimist
关键词建筑,建筑新闻,室内设计,组合,规格,品牌,市场,产品c_29/乐观主义者
客服
消息
收藏
下载
最近




















