查看完整案例


收藏

下载
© Tamara Uribe
(塔玛拉·乌里韦)
架构师提供的文本描述。VeGrande是一家致力于平面设计和品牌建设的办公室。该项目包括重新利用一座乡村仓库,并将其变成可以开展创造性和多学科工作的空间。
Text description provided by the architects. VeGrande is an office dedicated to graphic design and branding. The project consisted of reusing a rustic warehouse construction and turning it into space where creative and multidisciplinary work could be developed.
从街道上看,正面仍然是盲目的,有些咄咄逼人,一个垂直地标的名字是门的一个不典型的空间在内部,和唯一的接入点的办公室。作为外部和内部之间的停顿,在办公室唯一一个绿色的地方,即进入广场、过渡空间和室内空间中的主要照明源。内部立面根据需要配置了门和拱顶,强调了对接入点的看法。
From the street, the facade remains blind, somewhat aggressive, a vertical landmark with the name is the door to an atypical space in the interior, and the only access point to the offices. As a pause between the exterior and the interior, take place the access square, a transition space and the main illumination source in the interior space, the only one green place at the office. The interior façade is configured with doors and vaults according to the needs, emphasizing the views to the access point.
© Tamara Uribe
(塔玛拉·乌里韦)
内部由三个连续的空间组成。第一个包括公共区域(接待室和会议室,都与接入点直接接触),第二个是工作区,后座有服务和储藏室。
© Tamara Uribe
(塔玛拉·乌里韦)
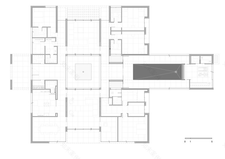
Ground Floor Plan
© Tamara Uribe
(塔玛拉·乌里韦)
内部空间是由滑动玻璃板划定的,这样可以对办公室进行概述,但可以保护每个区域的隔离;这些平面可以根据空间需要打开或关闭,允许自适应和可变地使用。在WorkaRea时代,它是一个磁化的滑动白板,它是产生想法的面板,根据它的开放,它允许给服务领域更多的隐私。
The interior space is delimited by the sliding glass panels, which allows having an overview of the office but safeguarding the isolation of each zone; These planes can be opened or closed according to the space needs, allow an adaptive and variable use of it. In the age of the work área, it takes place a magnetized sliding whiteboard, the panel for the generation of ideas, according to its opening allows giving more privacy to the service areas.
© Tamara Uribe
(塔玛拉·乌里韦)
在材料的调色板上,仓库的裸露材料占主导地位,混凝土砌块墙和粗糙粗犷的粗犷,与室内陈设和水晶洁净度形成鲜明对比。
In the palette of materials, the naked materials of the warehouse are predominant, with concrete block walls and rugged flat rough and rustic character, contrasting with the interior furnishings and the crystalline cleanliness.
© Tamara Uribe
(塔玛拉·乌里韦)
© Tamara Uribe
(塔玛拉·乌里韦)
Architects Punto Arquitectónico, VE GRANDE
Location Mérida, Yucatan, Mexico
Authors Alejandra Molina, Israel Ramírez, Mauricio Rosales, Sergio Bonifant
Area 100.0 m2
Project Year 2016
Photographs Tamara Uribe
Category Offices Interiors
Manufacturers Loading...
客服
消息
收藏
下载
最近

























