查看完整案例


收藏

下载
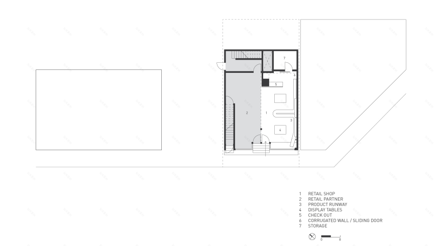
新的商店翻新密尔沃基,威斯康星州的零售商布卢奇完成了一个世纪的街坊店面彻底改革成为一个理想的零售环境精心策划的设计对象和配件。由密尔沃基一位建筑师领导的设计/建造工作室设计和建造,新的设计是为了为个人产品提供突出的和被独立观看的房地产。
在一个50英尺长的定制白橡树案例中,顾客们被鼓励在商店里蜿蜒而行,沿着它的表现性几何图形看产品,然后沿着墙壁一直延伸到空间的中央。白色书架整齐地堆放在墙上,为小店提供了额外的产品展示空间。货架还创造了一系列的水平基准,以中介现有的建筑在商店的前面与比例的新建筑添加在后面。
在后方,波纹背墙与隐蔽滑动门创造了一个微妙的,但视觉有趣的焦点,从以前是一个未充分利用的空间。游客也会发现同样的光泽,白色纹理和定制细节,通过现金包装面无缝的客户体验。
一个独特的客户体验是最重要的,对于平凡和小的空间。因此,可以在整个空间中发现有凝聚力的细节,这鼓励了一种发现行为,使游客感到惊讶,并给出了一个让客户留恋的理由。
要了解更多关于该项目的信息,请访问Instagram上的@Commonplaceshop和@_Tretos。
Firm TRETOW
Type Commercial › Retail Cultural › Gallery
STATUS Built
YEAR 2017
SIZE 0 sqft - 1000 sqft
BUDGET $10K - 50K
keywordsarchitecture, architecture news, interiors, interior design, portfolio, spec, brands, marketplace, products Commonplace
关键词建筑、建筑新闻、室内设计、组合、规格、品牌、市场、产品等
客服
消息
收藏
下载
最近
















