查看完整案例


收藏

下载
项目组:Troy Ainsworth,AIA,首席/Christine Rumi,项目经理/Juliette Grummon-Beale,LEED AP BD C,Project Architect/HaiLuc,Project Architect/Karl Reci,Project Designer
凯尔·伯恩斯/菲尔·丘布/阿玛莉亚·格罗贝-莫尔/安妮·卡雷尔/艾米丽·菲利普斯
承包商:富通建筑
顾问:VLMK,民事
绿色建筑顾问
Morrison-Hershfield,信封顾问
PEE、MEP工程师/设计协助
西太平洋景观设计师
这座20世纪50年代的建筑被完全重新设想为21世纪的创意工作场所,拥有LEED BD C黄金认证。位于新波特兰-密尔沃基轻轨沿线的工业区,办公大楼为其11英亩的波特兰服务中心地点的公司身份设定了基调。
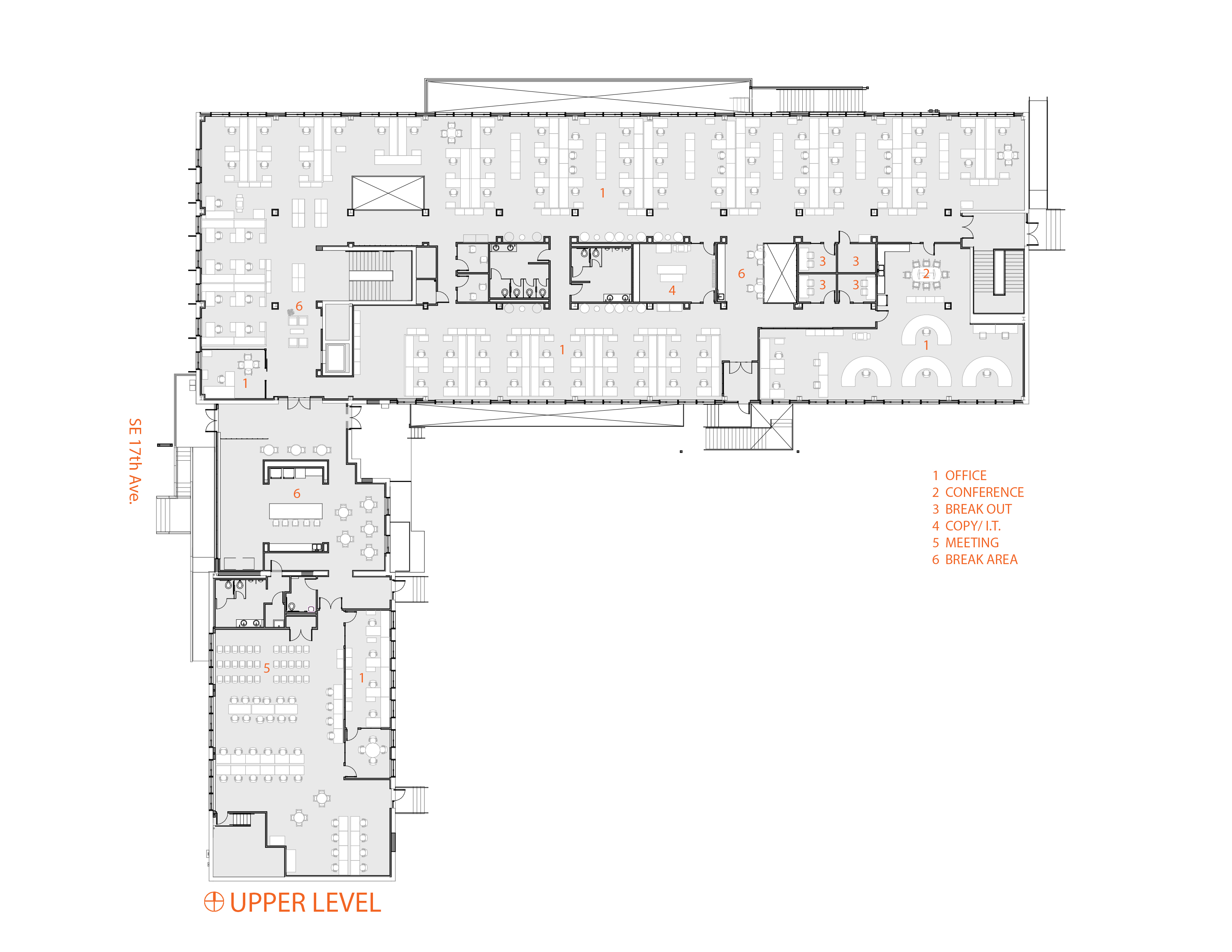
FFA建筑和室内装修公司与当地公用事业供应商客户密切合作,设计翻修其办公室,清楚地表明他们作为更聪明、更清洁、可再生能源使用的领导者的坚定承诺。这个43,000-SF设施最初有黑暗的双层走廊,“小隔间-农场”的工作区,低矮的声学天花板,过时的装饰和漏水的窗户。早就应该进行升级和彻底刷新了。除了满足基本设施要求和在各种紧急情况下保持运作的重要性外,建筑设计的目标是提供一个环境,帮助吸引和保留公用事业提供者数量可观的专业化工作人员队伍。
设计团队采取了一种全面的方法-这开始于将大楼推倒到内部的钢结构,并为日光下开洞创造了新的机会。一个这样的例子是沿着下层北侧的新的光环,它给曾经是一座阴郁、没有窗户的地下室带来了阳光。此外,光轮为员工提供了他们办公桌上的耐旱景观.该设计的另一个关键组成部分是在主平面上刻出两个大的楼面开口,上面的天花板上安装了天窗-这在整个空间中提供了大量额外的自然光,并在各层之间建立了变革性的视觉关系。
工作场所的空间规划涉及到对客户的商业文化和创造协作工作环境的目标进行深思熟虑的考虑。非正式会议领域点缀在较低的核心,鼓励自发的互动。
在设计过程中,建筑物的性能和无障碍也是主要考虑因素。在将建筑物的性能提高到最高标准的过程中,所有的MEP和照明系统都被替换,成为能效的展示。一种新的VRF系统取代了50年代的锅炉。增加了电动汽车充电站,增加了自行车停车场。通过这些努力,该项目已获得LEED黄金认证。
新轻轨沿线建筑物的主要入口被重新设想为一个简单而干净的店面系统,而不是原来的牧师级丝带窗户。一个暴露的木材特色墙壁与综合木材天花板创造了一个温暖和欢迎进入前厅。除了主要的条目外,还有一个巨型图形,显示了代表客户品牌的标志性图像的拼贴图片。完全更新和更新,翻新的空间是一个地方,雇员期待着回来的每一天。
Firm FFA Architecture and Interiors
Type Commercial › Office
STATUS Built
YEAR 2016
SIZE 25,000 sqft - 100,000 sqft
keywordsarchitecture, architecture news, interiors, interior design, portfolio, spec, brands, marketplace, products Regional Utility Provider Portland Service Center Rehabilitation
关键词-建筑,建筑新闻,内部,室内设计,组合,规格,品牌,市场,产品区域公用事业供应商波特兰服务中心修复
客服
消息
收藏
下载
最近























