查看完整案例


收藏

下载
架构师提供的文本描述。物体是结晶的概念,思想的相互联系越好,目标就越好,而且最相关。有时功能是如此相关,以致于审美价值被遗忘。在办公室里,我们喜欢好主意,也喜欢珍惜它们。收回这些“灰姑娘”的设计,把它们带回来,让人们了解它们的审美价值。
Text description provided by the architects. Objects are crystalized ideas, the better the interconnection of ideas the better the object and most pertinent it is. Sometimes is functionality is so pertinent that the aesthetic value gets forgotten. Here at the office we like good ideas and like do value them. Recover these design “Cinderella’s” and bring them back, so that people can understand their aesthetic value.
© Fernando Guerra | FG+SG
FernandoGuera|FGSG
因此,我们探索了一些潜在的物体,可以帮助我们建立一个吸引人的环境,而且我们优先考虑在这些条件下,我们找到了这个衣架。
As such we explored some potential object that could help us to built an appealing environment and that preferentially was in those conditions, and we found it, The hanger.
© Fernando Guerra | FG+SG
FernandoGuera|FGSG
我们在空间里塞满了一千多个衣架,因为它们的内在美学价值涉及到用户在一个独特的环境中。
We flooded the space with more than a thousand hangers that, because of their intrinsique aesthetic value involves the user in a unique ambient.
衣架几乎是商店设计中的叛逆,它们的功能相关性几乎总是被抛在后台。同样的特点使他们在全球取得了成功,使他们变得平淡无奇。他们自己成功的牺牲品。我们把这些衣架分散在整个空间,分成等距点。从上面看,这是一个像素化的屏幕,四百点分布在80.00平方/米以上。
Hangers are almost renegade in the store design, their functional pertinence is such that they’re almost always thrown backstage. The same characteristic that made them a global success made them follow into banality. A victim of their own success. We distributed the hangers all over the space, divided in equidistant points. When viewed from above it seems a pixelated screen with four hundred points distributed over 80.00sq/m
© Fernando Guerra | FG+SG
FernandoGuera|FGSG
通过使用线程高度测试,我们了解到我们可以重新创建任何空间,抛出原始空间的负值。我们想要一个,因为他的文化相关性,可以立即识别,最重要的是,能够价值的衣服和我们的基本要素。
By working with the threads altimetry we understood we could recreate any space throw the negative of the original space. We wanted one that for his cultural relevance could become immediately recognizable and above all was able to valorize cloths and our base element.
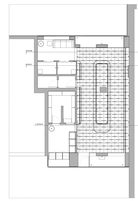
Ceiling Floor Plan
天花板平面图
我们研究了无数的形式,并意识到大教堂的核心的形式力量是我们所想要的。一方面,它具有可识别的力量;另一方面,它是一个为显贵而绘制的空间,它会自动地将观察者投进沉思的光环中。(鼓掌)
We´ve studied innumerous forms and realized that the formal power of the naves of a cathedral was all we wanted. For one it had the recognizable force, and on the other hand it is a space drawn for dignify an valorize, it would automatically throw the observer into an aura of contemplation.
© Fernando Guerra | FG+SG
FernandoGuera|FGSG
所以,当观察者进来的时候,它会自动地被肚脐的淤青所影响,衣服重量引起的螺纹张力使得重力几乎可以感觉到,引导我们的眼睛往上看。布流抛出空间,它们的元素给干预提供了一致性。他们是大教堂的基础。
So, when the observer enters, it´s automaticly involved by the naves silouete, the threads tension caused by the clothes weight makes gravity force almost palpable, directing our eyes up. Cloths flow throw space, their the elements that give consistency to the intervention. Their the foundations of the cathedral.
© Fernando Guerra | FG+SG
FernandoGuera|FGSG
如果说空旷的空间定义了大教堂内的原型,那么剩下的就是充满光的地方了。意料之中的等距灯光项目照亮了它,使它更加垂直,并定义了太空之火。光在线上反射白色,给光一种物质性的感觉。
If empty space defines the archetype of a cathedral nave, the rest is awash with light. A serie of equidistant lights project light up making it more vertical and defining the space rythmics. Light is reflected in the threads white colour and give light a sense of materiality.
© Fernando Guerra | FG+SG
FernandoGuera|FGSG
我们想要一个非常不稳定的空间,以突出衣服的颜色,使他们成为主角。
We wanted a very desaturated space in order to highlight clothes colour, making them the lead actor.
另一个特点是客户可以随心所欲地挂一块特定的布,这样就可以把布挂在任何地方。
One other particularity is that the client can hang a specific cloth wherever he want in order to evidenciate.
© Fernando Guerra | FG+SG
FernandoGuera|FGSG
Architects Paulo Merlini arquitetos
Location 4450 Leça da Palmeira, Portugal
Category Interior Design
Area 80.0 m2
Project Year 2016
Photographs Fernando Guerra | FG+SG
客服
消息
收藏
下载
最近




















