查看完整案例


收藏

下载
顺德大良蜚声于外者,莫过于食。稍微了解些的,知道所谓粤菜,其根则在大良。大多数人知其果,而未知其因,也就仅止如此了。中国的食,称得上美,且能流传至今的,其因大多是在于地方富庶。
佛山顺德即属此例——广州发达之前,珠三角富庶之区在佛山顺德一带。五口通商后广州崛起,于国内,则是佛山、顺德的资金流向了广州,也将其生活方式带到广州——譬如茶楼。长期处于富庶的人,对“新”总是谨慎之后,才会有选择的接受一部分。
今日之顺德展现的形式,仍然不是所谓的“大都市”状态,而是以大良、均安、勒流、容奇等若干小镇,在一片冲积平原地域,如串珠般结成。这种结构形态本就是非常传统的中国行政和社会形态。
生活在如此状态之下的人民,所体现的特性通常是对传统显而易见的尊重,甚至可以称之为“保守”。只是这种保守并不意味着裹足不前,而是以缓慢而主动的状态吸收外来的事物,然后将之融入到自己的生活之中。
这一特性在佛山中惠璧珑湾销售中心得到充分的体现——业主方不提倡当下炫酷的设计风格,而是在符合现代设计趋势的前提下,尽量展现地域文化的气质,将项目的设计融入到当地的文化氛围当中。
设计方在设计过程中也敏锐的意识到项目销售对象的文化心理特征,并将其作为设计工作中的指导方向。
现代设计在审美的层面源于工业文明,其形式表现的基础是“标准”,是“精确”,是“锐利”。作为大良这样的地域文化,其在审美的层面则源自农耕文明,在表现形式上,与前者凿枘不投。若是硬生生将二者捆绑一处,便有乔老爷乱点鸳鸯的嫌疑。
思虑及此,设计师在设计中引入了“黼黻”(fǔ fú)的概念。
黼黻者,衣之华纹。多以黑白相因,复有黑青相配。设计师在这个项目的空间设计过程中将空间结构理解为“衣”,将要表达的地域文化部分视为“黼黻”。
以简洁硬挺的线条勾勒大的空间关系,以LOFT风格的黑灰色天花虚化空间垂直高度的同时,黑色以线条的状态往立面的白色中做横向和纵向渗透,用白描壁画,重叠的文字镂刻、浮雕的方式将大良的地域特性以装饰的状态渐次呈现。
其表现以当地人耳熟能详,并足以为傲的地理、人文景观为主要——这当然是为了迎合当地人民的喜好(这就像莎士比亚在带着自己作品巡回演出时,开场也必须先以不同地区的观众,做针对性的迎合一般。)——在空间立面与结构线条形成疏密和穿插关系。
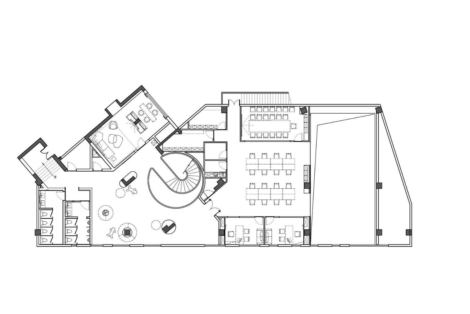
该项目设计面积并不大,一层由四间临街商铺打通,公共区域将近五百平方米,二层办公区将近三百平方米。作为带有展示性质的销售中心而言,面积和可能的人流所需参观面积相较,略显逼仄。要营造相对活泼,富有节奏感的空间环境,相对不易。
设计师在考虑平面时,在满足刚性要求的空间切割之后,将一二层之间的梯道以“舞动”的概念设计成白色旋梯,将空间的结构线条在此交汇,旋转,升腾,又由此处扩散到空间的结构当中。它成为空间中极规整的线条组织在人的视觉体验里灵动的部分,使得整个空间结构有序而不呆板。
设计师在考虑方案时,设计的立足点并非仅仅在室内部分,而是将由外而内作为一个综合的感受过程。并以此将其分析成感受的两个部分:“情景”和“情境”。“情景”是看的过程,与嗅听一样,是最初步的感受。
因此在方案中,将外立面以橱窗的概念,将室内的部分不动声色的对外作链状的形态展示。而进入到室内之后,则是将“情景”转化到了“情境”,是由起初的“看”到置身其中的体验过程。
设计当然是为了表现。但所表现的应该是设计师对项目的理解,在此基础上所设计的作品应能符合投资方的利益。
设计师作为提供服务的方面,在面对具体工作时,应该能将杂念置诸一旁,而认真思考业主对市场的理解,并在此基础上展开合适的工作。在这个层面,设计师应该将自我稍作压抑。
二层平面图
一层平面图
彭 征
共生形态(C&C DESIGN)创始人、设计总监,高级室内建筑师。
2001年毕业于广州美术学院,并于2002年考取艺术设计硕士学位,现为广州美术学院建筑艺术设计学院客座讲师、实践导师,CIID广州专委会理事,中国房地产协会商业地产专委会商业地产研究员。
彭征先生关注城市化进程中的当代设计,思考和实践“共生”的设计形态,从事建筑、室内、景观等多领域的设计实践,设计作品具有较强的建筑感和现代简约的风格。代表作品包括南昆山十字水生态度假村、时代地产“时代·家”体验店、美的地产企业总部、广州亚运会景观创意装置“风动红棉”等。
设计作品曾蝉联德国iF设计大奖、德国红点设计大奖、美国室内设计杂志Best of Year Awards年度最佳大奖、意大利A‘Design Award设计大奖、香港亚太室内设计大奖等国际顶尖设计竞赛奖,2017年获德国iF设计室内建筑金质奖最高荣誉。
客服
消息
收藏
下载
最近





































