查看完整案例


收藏

下载
“上有天堂,下有苏杭”当成顺口溜念得多了,会让人习以为常,不加区别的将两处有代表性的江南景致放在一起,忘了两个地方自有的气质。
明清时有很多关于苏州或者苏州人的笑话,然则风流富庶又以苏州为翘楚。因此大约多少有些出自嫉妒。在此不作讨论。《笑林广记》里有个笑话,大约是讲一个杭州人和一个苏州人坐一起。杭州人吃橘子,苏州人吃橄榄。杭州人问苏州人,这玩意儿有什么好吃的?苏州人回答说,这东西吃完后有回甘。杭州人说到,等到你回甘,我都甜过几十回了。虽是笑话,其性格之分,好恶之偏,跃然也。宋嫂鱼羹、片儿川,本是中原遗风,南渡的产物,秀丽的外在下深蕴着中原基因,杭州也;去听一回苏州的评弹,便知吴侬软语,曼妙多姿,委婉流长,非东施可以轻效。此苏州也。
苏州美的项目,业主方对其的重视,很有些战略的意味——该项目已不仅仅是一个常规意义的售楼部,它更蕴涵着一个品牌在具有浓厚文化认知地域的展示状态和其对文化的理解。作为设计方,设计总监更期望通过这个项目,表达一种对文化的理解,并将这种理解融入到设计当中,进而成为现时地域文化中和谐的一部分。
最终取名美的·云筑未来生活馆的设计,实际上兼具了销售、展示和体验的功能,同时也是项目的在地名片。这样一个综合性质的空间,其本身便极具戏剧的意味。设计总监在指导并确定设计基调时,便将这一内在情态作为设计线索加以考虑。把握此种表达的节奏分寸,是该项目设计的关键。
董其昌曾讲“昔人乃有以画为假山水,而以山水为真画者,何颠倒见也!”“以境之奇怪论,则画不如山水;以笔墨之精妙论,则山水决不如画。”此种明显带有南宗色彩的观念,成为设计师获得表达方式的灵感源泉。
在地深厚的人文底蕴,几百年来执中国传统审美的牛耳。这一特质,采用炫技似的手法显然不合时宜。巧借是苏州园林的要义,同时苏州作为中国文人文化的兴盛之地,最好的方式莫过于以带有书卷气,尽量天趣散淡的手法表示敬意。
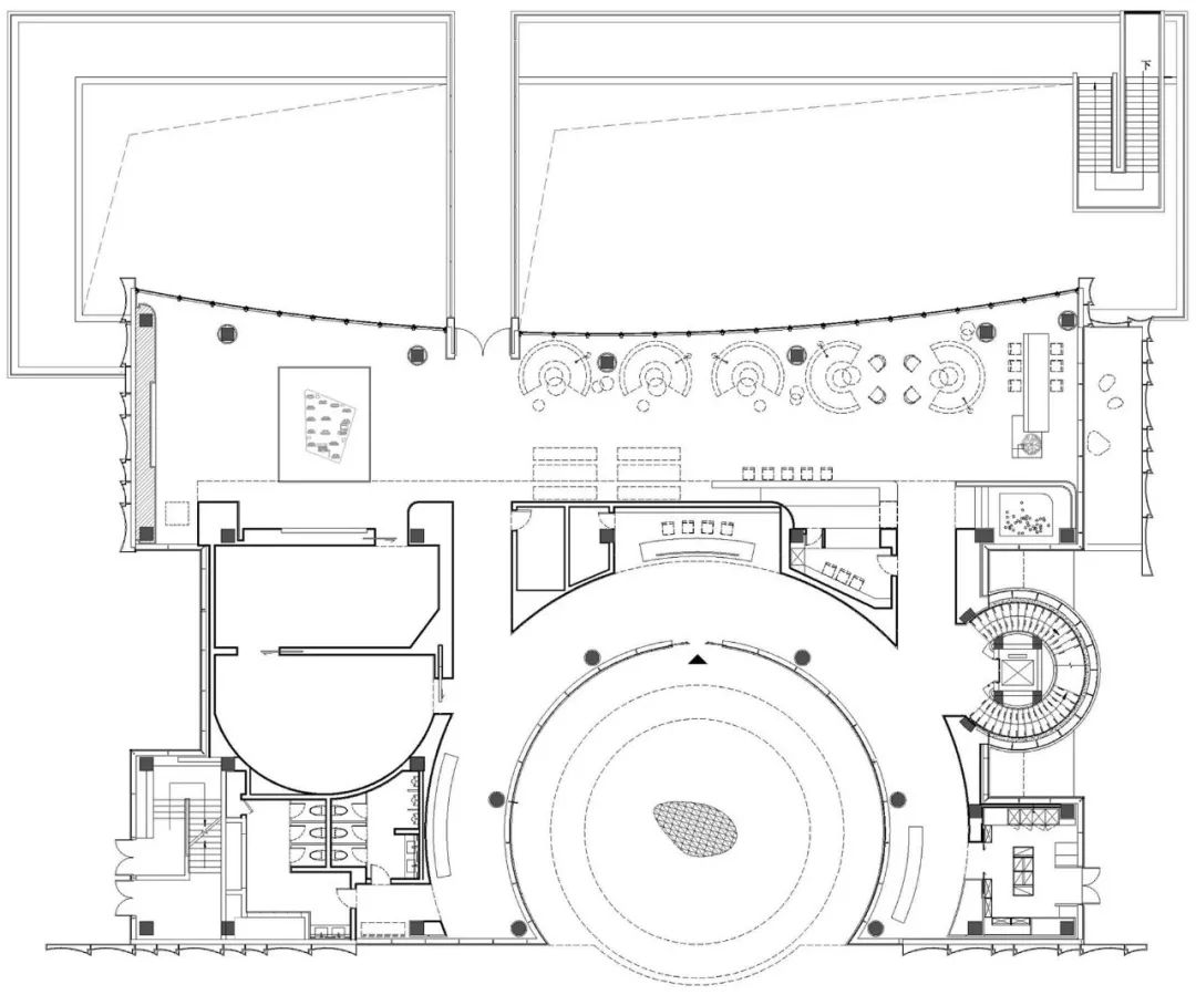
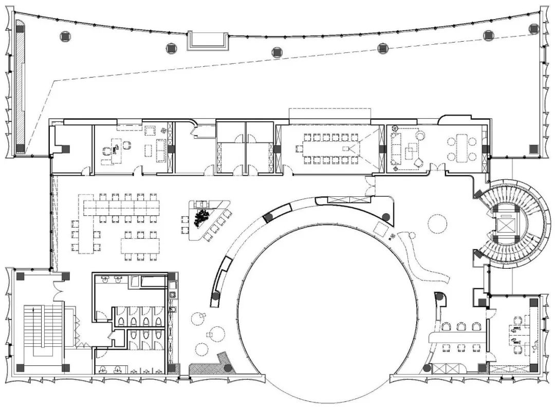
设计师在空间的整体处理上,因地制宜,将整个空间理解为一幅徐徐展开的手卷,以青砖粉壁为基调,两种材质的肌理和色差做反向对比,青砖与水磨石的对话,表达“不用粉染,以云山为墨戏”的南宗山水情态,使空间尽量虚和萧散,天真幽淡。而这也是对苏南地区几百年审美精髓的溯源。
在处理平行视觉的同时,设计师并没有忘记对仰视视觉应有的把握。中国人讲味道,首在“盐梅”,把握得合适,寻常之物便能体现神奇——在各功能空间部分,设计师将太湖石的孔洞与风景作为理念,用简洁的手法联系在一起,不多做渲染,意到即止。地上部分,用悬浮的巨石启迪未来。
设计师从苏州古典园林和太湖石中获得灵感,运用“巧于因借”和“移步换景”,将科技、人文和艺术串联起来,形成丰富的感官体验,适应着不同时间、空间的功能需求,使整个项目有成为城市风景的可能。不同位置和尺度的开口,成为窥视城市的窗口,增加趣味的同时扩展了空间界限,使身在其中者在看与被看中成为各自的风景,不仅让人莞尔一笑。
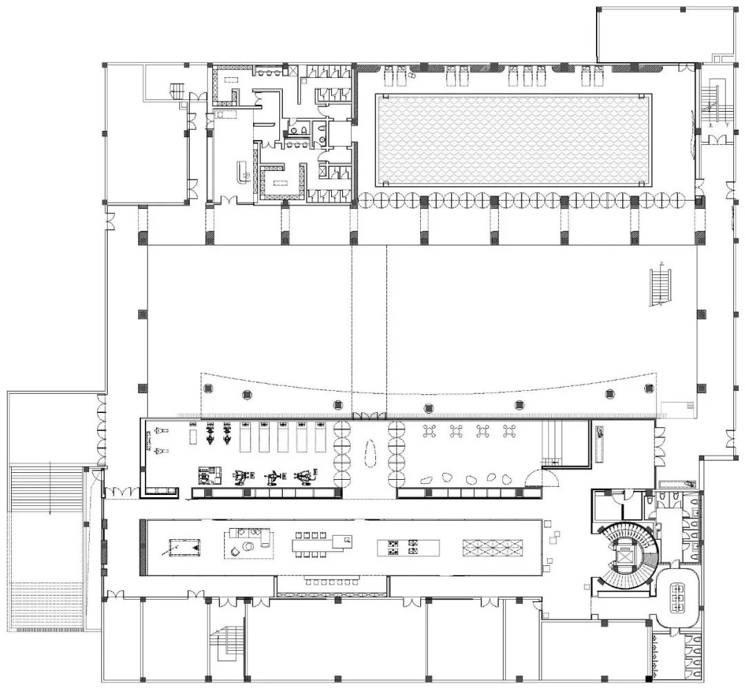
而有关智慧生活的情景展示与生活体验是空间设施和设备的有机融合。从5M体验馆到智慧厨房,从无人超市到DNA咖啡,工业4.0时代的未来生活的可能性,以及该项目有别于常规项目的独特性及其超级IP,客户在空间中能置身其境的体验与互动,不作赘述。
一个多馆合一的异地房地产发展项目,由框架而入细致的过程,其实也可以说成是一个融入地域文化,从抽象渐渐具象成形,并期望获得认同的过程。
项目名称:苏州美的·云筑未来生活馆
室内设计: 广州共生形态工程设计有限公司
主案设计:谢泽坤、许淑炘、陈泳夏
设计团队:夏声悦、郑瑾萱、叶子荣、朱云锋、许秋怡、许柔捷
业主管理团队:林冬娜、胡宏伟、刘科、段巍、王琳
雕塑艺术家:姬舟、胡宇、朱斌、林映平、王志新
设计时间:2018年07月
竣工时间:2019年01月
设计面积:4000M²
主要材料:青砖、水磨石、古铜色不锈钢、软膜、渐变玻璃、木饰面
共生形态(CCDESIGN)创始人、设计总监,高级室内建筑师。
广州美术学院艺术设计硕士毕业,现为广州美术学院建筑艺术设计学院客座讲师、实践导师,中国建筑学会室内设计分会资深会员,中国房地产协会商业地产专委会商业地产研究员。
彭征先生关注城市化进程中的当代设计,思考和践行“共生”的设计哲学,从事建筑、室内、景观等多领域的设计实践,设计作品具有较强的建筑感和现代简约的风格。代表作品包括南昆山十字水生态度假村、时代地产“时代·家”体验店、美的地产企业总部、广州亚运会景观创意装置“风动红棉”等。作品曾获2017年德国iF设计(室内建筑类别)唯一金质奖。
△保利远洋领秀山生活艺术馆
△南昆山十字水生态度假村·竹别墅
△美的鹭湖岭南花园酒店
极简 售楼处 共生形态 青砖 水磨石 木饰面 渐变玻璃
客服
消息
收藏
下载
最近




















































































