查看完整案例


收藏

下载
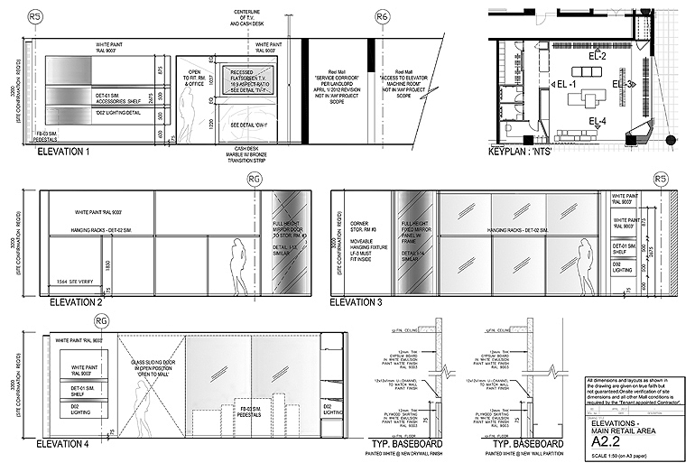
上海时装店
Firm ALTA-NYC
Type Commercial › Retail
STATUS Built
YEAR 2012
SIZE 1000 sqft - 3000 sqft
BUDGET $100K - 500K
Photos nat cheng, ncheng
keywords:architecture, architecture news, interiors, interior design, portfolio, spec, brands, marketplace, products Fashion Store
关键词:建筑,建筑新闻,室内设计,组合,规格,品牌,市场,产品时装商店
客服
消息
收藏
下载
最近










