查看完整案例


收藏

下载
易高案例
项目名称:中海 · 御湖
项目风格:中古风
项目面积:210㎡
主案设计:武登高
设计团队:叶阿强
本案210㎡,在快节奏的现代生活中,精心雕琢了一方时光停驻的静谧之所。以经典中古风为灵魂,这不仅仅是一个家,更是一个承载时光印记的美学容器。在这里,经典设计散发着历久弥新的魅力,放慢脚步,在优雅与舒适中,感受那份永恒的低调奢华与温暖的现代主义情怀。在旧时光里,找到新的生活灵感。
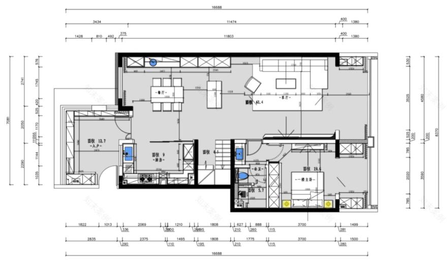
一层平面图
平面布局图
▲门厅
▲门厅
推开家门的第一眼,便是中古美学精心谱写的空间序曲。摒弃传统门厅的局促,以量身定制的收纳系统与自然光影的艺术,打造一个兼具高效实用与沉浸美感的归家初体验。
▲餐厅
▲餐厅
▲厨房
▲楼梯间
这里是家中的味蕾剧场,更是光与时间共舞的舞台。摒弃浮华的装饰,让光影本身成为最动人的主角,书写一曲温暖而富有质感的中古生活乐章。以玻璃门作为厨房与空间的隔断,门内是生活的热气腾腾,门外是复古的诗意栖居。这里味唤醒温情,每一餐都是对中古生活美学的沉浸式体验
▲客厅
▲客厅
▲客厅
摒弃冗余的隔断与堆砌,家的核心地带客厅,是一片被温柔释放的留白。以中古美学为基地,让空间回归包容与互动的本质,让每一寸呼吸都承载着生活的自在与温度。地毯如诗意的岛屿,悄然界定功能,温暖蔓延。
▲次卧
▲次卫
一楼设置卧室,延续着整体的中古风骨,却更添一份沉静与包容,为远道而来的亲朋或偶尔留宿的家人,提供一处温暖、独立且充满品味的安眠之所。
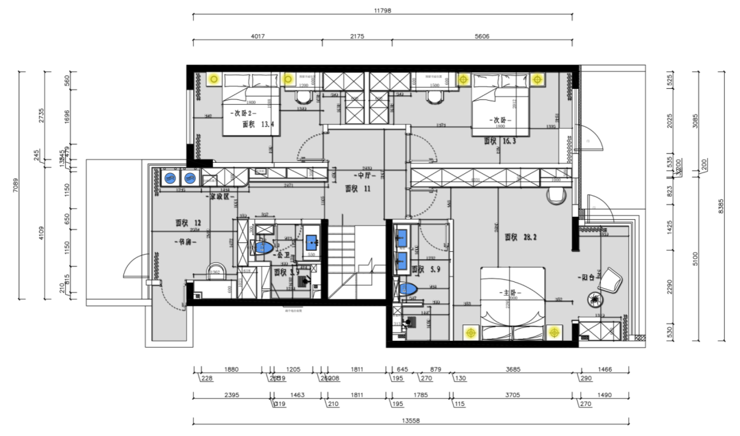
二层平面图
平面布局图
▲中厅
▲家政区
▲书房
打破原有壁垒,对二楼进行焕然一新的功能重组。通往书房的过道,蜕变为高效家务的隐形引擎。中古的智慧,在于让实用与优雅浑然天成。
书房以无界视野滋养精神,极致收纳于无声处守护从容,而隐于过道的家政区,则是将琐碎日常优雅折叠的智慧体现。
▲次卧①
▲次卧②
▲公卫
以大胆的整合思维,将原始过道温柔纳入两间次卧的怀抱。这并非简单的面积叠加,而是一场关于空间释放、留白呼吸与未来可能的深度对话。
克制的留白与灵活的伏笔,则是对未来最温柔的致意,让空间随着居住者的故事,共同书写下一个充满可能性的篇章。
▲主卧
▲主卧
▲主卫
这里,是喧嚣之外的生活美学的私享场。宽大的床榻拥抱深度睡眠,优雅的床尾柜承载井井有条,而秩序井然的三分离卫浴,则将日常的清洁与放松升华为充满仪式感。实用与永恒之美,在此凝聚成一处滋养身心、历久弥新的专属谧境,让每一个晨昏,都始于舒适,归于宁静。
关于设计师
武登高
中国室内注册设计师
注册号:ZB20803174
毕业院校:西安美术学院
设计理念:用艺术的眼光雕琢生活
设计风格:中式 简约 欧式极简
从业时间:19年
易高国际创始人、设计总监
2017年瑞典色彩学院 色彩专业结业
2004年--2010年北京元洲装饰首席设计师
2011年--2013年陕西九朝装饰首席设计师
2013年至2016年北京峰上大宅装饰专家设计师
2009美化家居设计大赛三等奖
2011获陕西省优秀设计称号
2012筑巢杯设计大赛优秀设计奖
2013住宅装饰行业优秀设计师
2014住宅装饰行业优秀设计师
2015第三届【锋尚·京瓷杯】新中式设计大赛最佳功能布局奖
2016第三届中国建筑装饰设计艺术作品展获铜奖
2017居然顶层精英设计师
2017年中国(陕西)设计杰出青年
2017第四届峰尚杯新中式设计大赛 最佳方案奖
2017首届禾记万佳杯设计设计大赛优秀奖
2017创意生活设计金蝴蝶奖
2017商业旅游地产年度优秀住宅公寓设计师
2017评选为亚太空间艺术大师
2018金楠奖设计大赛优秀奖
2018获得第二届西安建筑装饰设计“青年设计师领袖”称号
2018设计作品《中海百贤府》获得第二届西安建筑装饰设计别墅类银奖
2018设计作品《龙湖香醍》获得第二届西安建筑装饰设计样板间设计优秀奖
2019金堂奖全国百强先锋榜百强设计师
2019年度腾讯家居搜狐焦点家居杰出设计师
2019德国高仪住宅精英榜TOP108匠
2019蒂森克虏伯杯别墅设计大赛经典设计奖
2019第三届西安建筑装饰设计奖“年度青年设计师领袖”
2020中国设计新青年评选“城市举荐官”
2020设计作品《石中木》获得陕西地区优秀住宅软装设计
2021-2022中国新地产设计大会年度优秀别墅设计师
2021金住奖-中国百杰居住空间设计师
2022中国国际空间设计大赛十佳设计师
成功案例:中华世纪城紫薇臻品 白桦林居 中海华庭 中海国际 紫薇融侨 就掌灯 中海东郡 曲江公馆 曲江尚林苑 曲江兰亭 曲江华府 枫林意树 湖城大境 中海铂宫 中海百贤府 紫汀苑 紫楹台曲江和园 中海曲江大城 ......
客服
消息
收藏
下载
最近


























