查看完整案例


收藏

下载
© Sandro Sulaberidze
(Sandro Sulaberidze)
架构师提供的文本描述。2013年,格鲁吉亚奥委会在2015年青年奥林匹克节内邀请投标进行设计活动。ArtStudio项目中标并参与了奥运会网球场的设计。在设计过程中,与组织委员会和网球联合会进行了积极的协商。
Text description provided by the architects. In 2013, Georgian Olympic committee, within 2015 Youth Olympic Festival, invited bid for conduction of design activities. Artstudio Project won the bid and involved in designing of Olympic tennis court. During designing, active consultation took place with organization committee and tennis federation.
预先设计的地形调查和地形的复杂性导致了目前运动场的布局和网球场的梯田式布置,使球场获得了某种个性。从Vake和Saburtalo区的上层景色可以清楚地看到这一地点。
Pre-design survey and complexity of terrain resulted in present layout of the sport complex and in terraced-type arrangement of tennis courts, what made the court to gain some kind of individuality. The site is clearly seen from upper views of Vake and Saburtalo districts.
© Sandro Sulaberidze
(Sandro Sulaberidze)
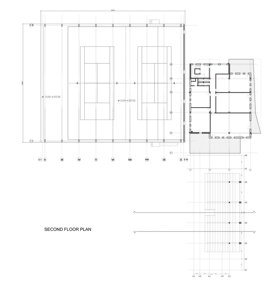
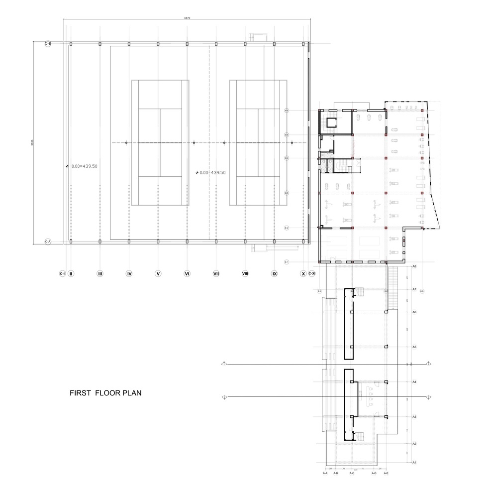
综合大楼计划占地17455平方米,包括九和两个封闭法庭、74个停车场和行政大楼。九个法庭中的一个已经覆盖了700个席位。一个封闭的庭院是由预制的木制拱形结构组成的,它是由双层膜结构延伸而成的.更衣室位于行政大楼一楼,与法院相连,设有两个出口。3楼和4楼设有网球联合会办公室。看台下有更衣室,提供开放的场地,医疗点,教练和裁判的房间,也是媒体代表的前提。行政大楼被规划为三个不同的单位,设有封闭法庭、健身设施及其基础设施和办公室的房地;每个功能单位都有单独的入口和基础设施。健身单元(500平方米的健身房除外)可容纳不同的水疗和健康场所。
The complex is planned on 17455 sqm land plot and comprises nine and two closed courts, 74 parking lots and administrative building. One of nine courts has covered tribunes with 700 seats. A closed court consists of pre-fabricated wooden arch structure, which double membrane stretched over it. Locker rooms are located at 1st floor of administrative building and are connecting to court with two exits. 3rd and 4th floors accommodate offices for Tennis Federation. Under stands, there are locker rooms, serving open courts, medical points, coach’s and umpire’s rooms; also a premise for media representatives. Administrative building is planned as three different units with premises for closed court, fitness and its infrastructure and offices; each functional unit has separate entrance and infrastructure. Fitness unit, (except gym hall with 500 sqm) accommodates different spa and wellness premises.
桁架的主要结构是带金属桁架顶的钢筋混凝土柱。其具体形态也体现在外观上。论坛报的台阶形状在栏杆平面上被重新激活,强调了它的功能.行政建筑是用天然木材完成的,用两种颜色涂漆,木质装饰根据颜色有垂直方向和水平方向。适合的领域是釉与紧凑的层压板填充锈蚀的铜质地。
Main structure of tribunes is reinforced concrete pillars with metal truss roof. Its concrete shape is represented in exterior view too. Tribune step shape is re-activated in railing plane, underlining its function. Administrative building is finished with natural wood, varnished in two colors; wooden finishing has vertical and horizontal orientations according to colors. Fitness area is glazed with compact laminate infill - rusted copper texture.
© Sandro Sulaberidze
(Sandro Sulaberidze)
2015年,综合体成功地欢迎在青年奥林匹克节日举行的比赛。
In 2015 the complex successfully welcomed competitions that took place within Youth Olympic Festival.
© Sandro Sulaberidze
(Sandro Sulaberidze)
Architects Artstudio Project
Location Nino Ramishvili III Dead End, Tbilisi, Georgia
Category Sports Field
Project Team G.Sulaberidze, M.Kalandadze, G.Makharashvili, D.Rusitashvili, N.Grigolashvili, N.Kobakhidze, N.Chrelashvili
Area 5360.0 sqm
Project Year 2015
Photographs Sandro Sulaberidze
Manufacturers Loading...
客服
消息
收藏
下载
最近
































