查看完整案例


收藏

下载
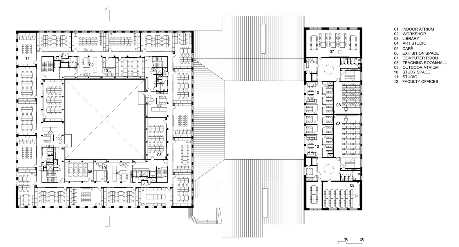
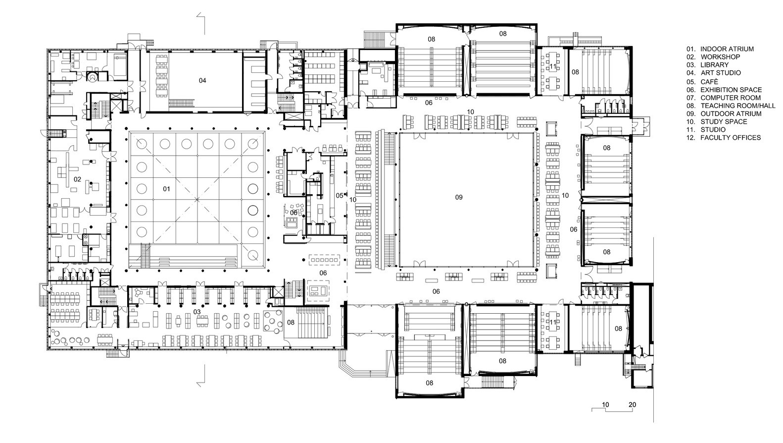
将以前独立的部门合并成一个新的建筑和土木工程系,需要重新设计以创造现代的工作方式。中心思想是为人们创造更多的开放空间,使设施内的活动可见。建筑师专注于室内设计;改变建筑的静态和封闭形式创造了更大的流动性和更现代的工作方式。
人们聚集在中庭的街道上,阳光透过金字塔形状的玻璃屋顶照射进来。一个中央咖啡馆,一个新的学习中心,真正意义上的客厅都聚集在同一层。改善的室内气候和声学使这个空间成为建筑的中心。空间的用途是多种多样的,综合的午餐和学习场所是如何激发创造力和使会议成为可能的例子。
图书馆以前是一个封闭的空间,现在被重新安置到沿着立面的主要位置,作为一个商店窗口,为路人提供教育和知识。与相邻的著名楼梯Kunskapstrappan(知识楼梯)一起,这个空间已经成为一个多功能的学习大厅,用于演讲、会议和聚会,人们几乎24小时都在这里闲逛。
材料的概念,所有的表面都有多功能的用途,流动和良好的工作在一起,已经完美地执行。这种实用主义哲学也可以通过选择一种主要材料来体现:未经处理的松树。它经受住了粗鲁的对待和尖锐钉子的穿刺,但并不失去它的吸引力。地下室,以前是黑暗和未使用的,通过部分移除楼板搁栅,变成了一个明亮和诱人的空间。它的混凝土表面,工作室由一个简单的有利于创造力的特点主导。
“我很荣幸能够重新设计我曾经作为教授学习和工作过的学校。对于这个地方,对于我和团队中的每个人,都有一种怀旧的依恋。个人经验帮助我们理解了如何适应未来合作研究的方式,”White的Ulla Antonsson说,他是该项目的首席建筑师。
保护文物建筑,使其可持续发展,为我们的城市带来最大的价值。这个项目已经通过了Miljobyggnad Silver的认证,这是一个重大的技术挑战。伟大的设计经受住了时间的考验,虽然内部是全新的,但外部仍然是瑞典世纪中期现代设计的优秀典范。
客服
消息
收藏
下载
最近























