查看完整案例


收藏

下载
Courtesy of White Arkitekter
怀特·阿基特克特(White Arkitekter)
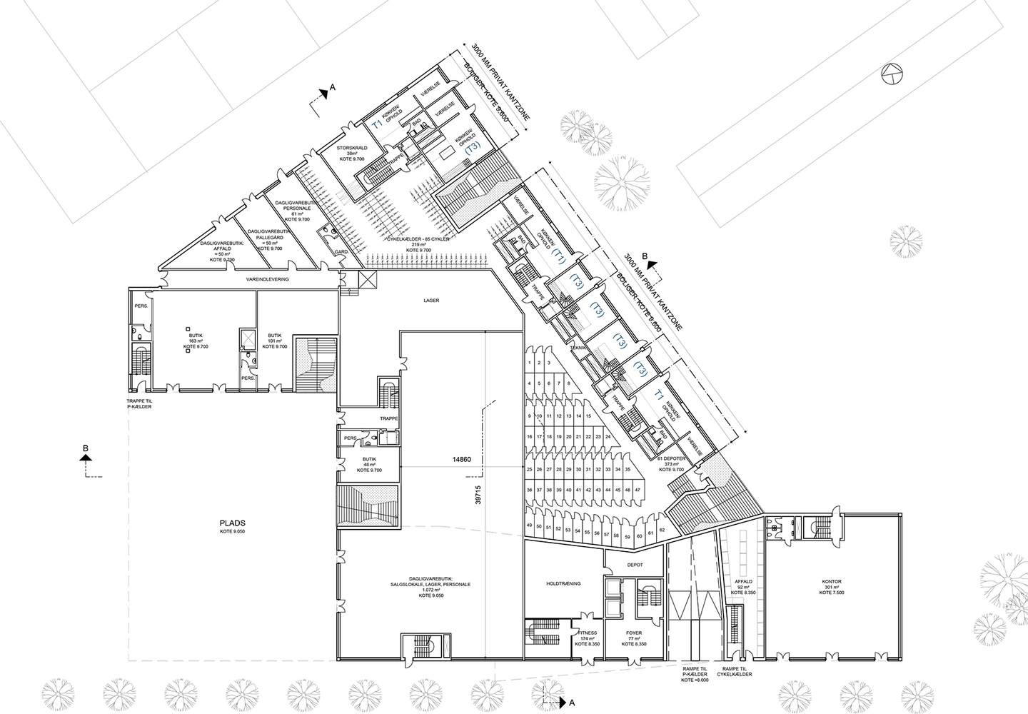
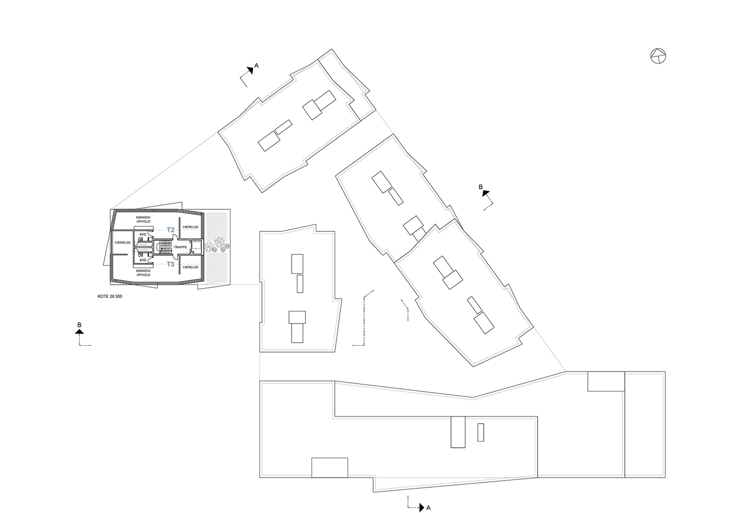
建筑工地位于新街道和拟议中的城市广场的交汇处。由于场地的形状不适合传统的庭院结构,因此建筑质量被划分为若干独立的砌块。在建筑星座之间,有一个半公有庭院,它是用更轻、更反光的材料连接起来的,以改善庭院内的环境照明条件。
The building site lies at the intersection of new streets and a proposed urban plaza. Because the shape of the site is unsuitable for a traditional courtyard structure, the building mass has been divided into a number of freestanding blocks. Between the constellation of buildings, there is a semi-public courtyard, which is articulated in lighter, more reflective materials, to improve ambient lighting conditions within the courtyard.
Courtesy of White Arkitekter
怀特·阿基特克特(White Arkitekter)
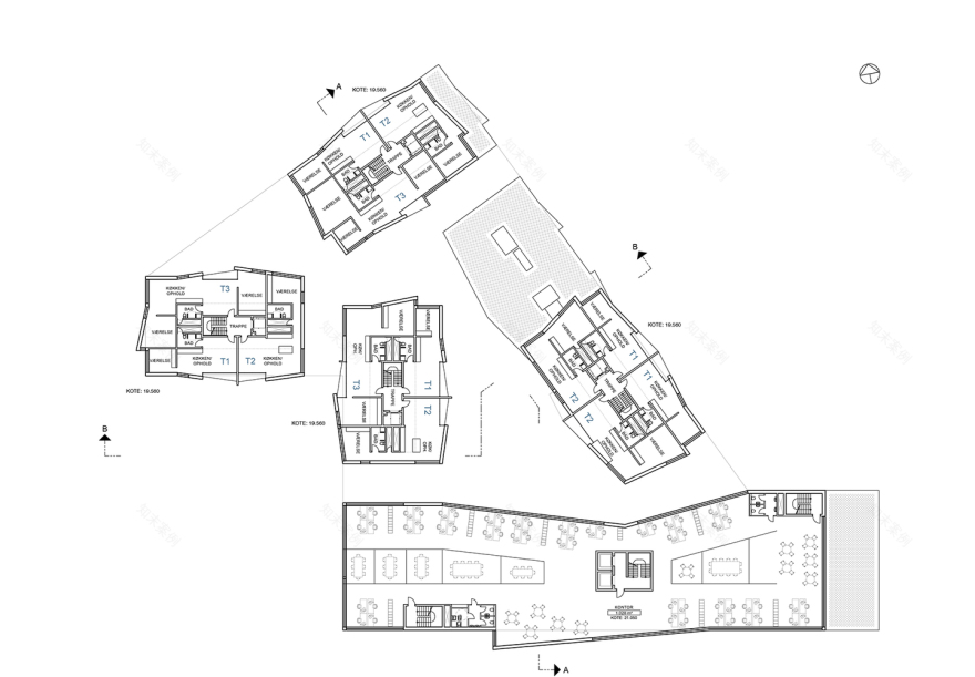
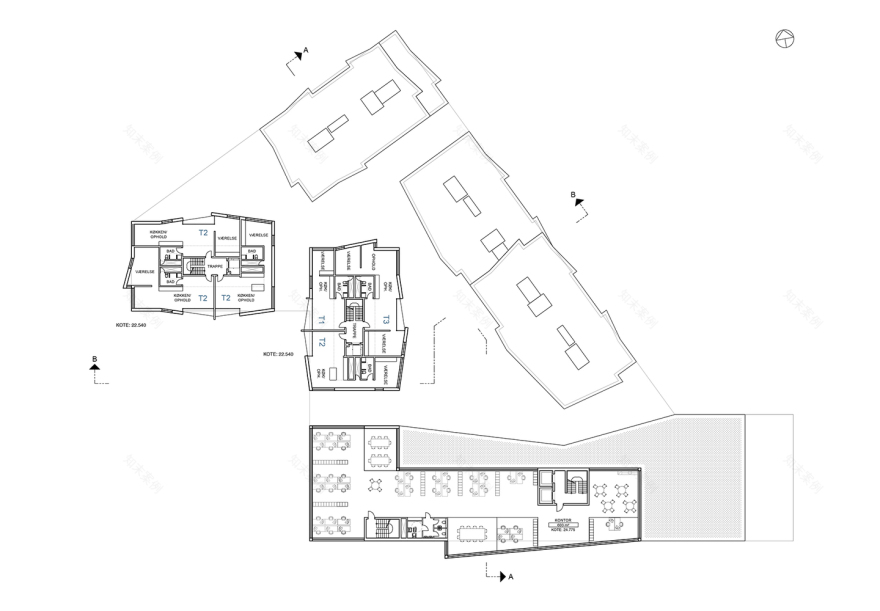
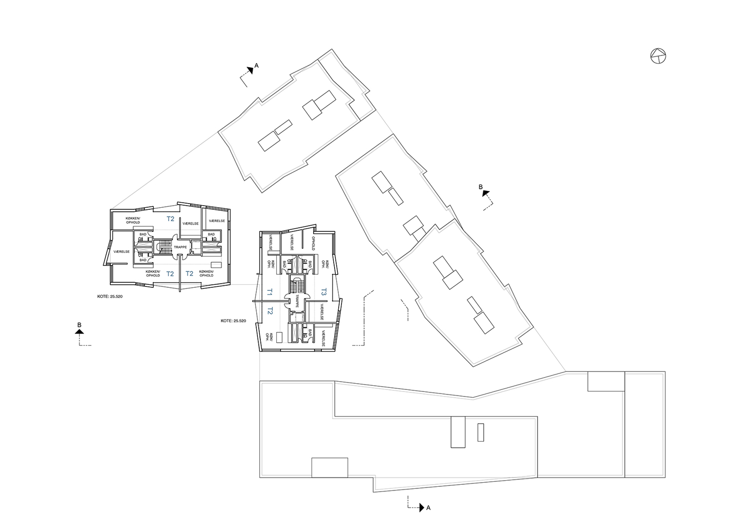
每栋建筑都是为了为居民提供充足的照明和景观,回收的砖块被聚集成大平面,使阳光和隐私的方向最大化。体积的划分还意味着循环核心变得更有效率,这一点尤为重要,因为该项目意味着要成为社会住房。随着当地人口结构随着时间的推移,每个计划可以容纳不同的小型、中型和大型公寓组合,而且可以在不改变结构的情况下进行平面图安排之间的过渡。
Each building is oriented to provide adequate lighting and views for the inhabitants, and the recycled bricks are gathered into large planes that maximize those orientations for both sunlight and privacy. The division of volumes also means that the circulation cores become more efficient, which is especially important, as the project means to be social housing. Each plan can accommodate different combinations of small, medium, and large apartments as the local demographics shift over time, and the transition between floor plan arrangements can be made without structural changes.
Courtesy of White Arkitekter
怀特·阿基特克特(White Arkitekter)
在公寓内部,所有的浴室和公用空间都紧紧地围绕着中央核心。不同的内部元素都是用木头覆盖的,并包含在家具和储藏室中,这样每个起居室都可以自由进入连接居民与当地城市环境的大开口。
Inside the apartments, all of the bathrooms and utility spaces are tightly arranged around the central core. The different interior elements are clad in wood, and incorporate built in furniture and storage, so that the living spaces each have free access to the large openings that connect inhabitants to their local urban environment.
更新:项目文本已更改,以澄清这是一项建议,将不会付诸实施。
Update: The project text has been changed to clarify that this is a proposal, and will not be actualized.
新闻通过:白色Arkitkte
News via: White Arkitekter
建筑师White Arkitekter Location Carlsberg,1778 K benhavn,丹麦设计团队Morten Vedelsb l,Martin Münter,Scott Grbavac,Jim Brunnestom景观建筑师SLA项目0
Architects White Arkitekter Location Carlsberg, 1778 København, Denmark Design Team Morten Vedelsbøl, Martin Münter, Scott Grbavac, Jim Brunnestom Landscape Architect SLA Project Year 0
客服
消息
收藏
下载
最近






















