查看完整案例

收藏

下载
架构师提供的文本描述。M.Moser协助Saatchi
Text description provided by the architects. M Moser assisted Saatchi & Saatchi with evaluations of densification strategy to consolidate their business units into one floor by utilizing an open floor plan, which allowed for a series of collaborative spaces. The overall goal was to achieve a new space that was edgy, modern, and fitting of their creative brand.
© Eric Laignel
c.Eric Laignel
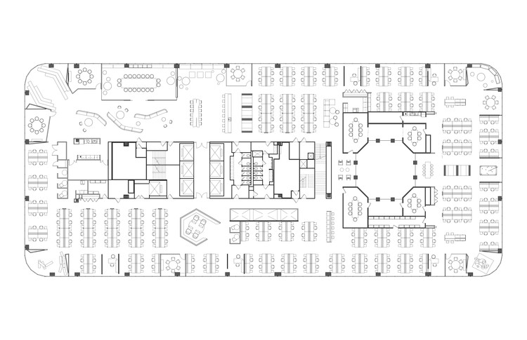
Floor Plan
© Eric Laignel
c.Eric Laignel
为了控制费用,拆除了现有的办公室前线,从而在周边建立了开放的房间。墙壁为创意人员提供了充分的机会,使他们能够在工作过程中加强工作,并与工作人员一起展示他们的创造性努力。
Existing office fronts were removed to contain costs, thereby creating open rooms on the perimeter. The walls provided ample opportunity for the creative staff to pin up work in process and display their creative efforts with the staff.
© Eric Laignel
c.Eric Laignel
内部开放计划有一个浮动的线性插槽木材天花板,战略位置,以创造枢纽地区,合作空间已经创建。共用会议室和会议室沿周边分散,为空间提供声学隐私和平衡开放式平面图。主咖啡厅位于地板的西侧,位于周边窗口,可以俯瞰哈德逊河。
The interior open plan has a floating linear slot wood ceiling strategically placed to create hub areas where collaborative spaces have been created. Shared conference room and meeting areas were dispersed along the perimeter to provide spaces with acoustical privacy and balance the open floor plan. The main café space has been located on the west side of the floor at the perimeter windows for sweeping views of the Hudson River.
© Eric Laignel
c.Eric Laignel
Architects M Moser Associates
Location Hudson St, New York, NY 10014, United States
Category Offices Interiors
Architects in Charge Charlton Hutton, Senior Designer
Area 44200.0 ft2
Project Year 2016
Photographs Eric Laignel
Manufacturers Loading...
客服
消息
收藏
下载
最近















