查看完整案例


收藏

下载
荷兰设计工作室PolyLester创造了一组轮子上的家具,用于将工业机库改造成展览、车间、晚餐或聚会的场所(幻灯片)。
总部设在阿姆斯特丹的雷斯特公司设计了各种移动元件,以提供旧的机库,最初是在42个堡垒中的一个沿着荷兰首都的历史防御线建造军事工程设施。
命名为可移动的,这些元素--从桌子和座位区到小房间和橱柜--可以被轮转成各种各样的配置。
正因为如此,它们才能适应各种不同的活动。
设计师加布里埃尔·莱斯特(Gabriel Lester)和马丁·韦尔德(Martin Vledder)解释说:“这些移动设备邀请业主和用户与空间进行创造性的互动。”
“通过在轮子中引入白色基座的原型展示元素,而不是将历史飞机库转换为白色的立方体,移动设备提出了在世界各地的这么多乏味和不引人注目的当代艺术和展览中心的轻松的舌头。”
建筑师拍摄的照片
该项目由Vijfhuizen堡的一个著名艺术中心KunstfortVijfhuizen委托进行。改造后的机库为中心提供了扩大其方案的机会。
建筑师拍摄的照片
为了创造尽可能多的灵活性,许多移动元素组合了不同的功能。例如,接待处有一个综合椅子,但也包括展示书籍或传单的架子。
两个楼梯式的单位提供漂白剂式的座位,但也有衣柜存储内建,而书架单位双倍作为隔断或投影屏幕。
设计师补充说:“暗示着有趣的建筑游戏、拼图游戏和俄罗斯方块等电脑游戏,个人元素可以组合在一起形成新的卷,也可以单独放置在空间内,以创造一些功能岛屿。”
所有元素都是白色的,与鹅卵石地板和金属结构的灰色色调形成鲜明对比。但设计师们也选择了一些亮黄色的细节。
Lester和Vledder说:“黄色的细节暗示着光线投射到了这些书上。就好像突然间,在机库内部模糊的内部,捕捉到了一系列的光线。”
建筑师拍摄的照片
照明由六盏工业吊灯提供,悬挂在头顶上。电动系统允许调整这些灯的位置以适应不同的布局。
“全新的设备已被卷进旧衣架,等待被发现,玩和使用,”这对夫妇补充说。
斯坦林·范·阿姆斯特丹--也被称为阿姆斯特丹的防线--是一个由42个历史要塞组成的135公里长的环形环城。
1996被联合国教科文组织指定为世界遗产,这促使许多游客景点被建造起来。除了Vijfhuizen的KunstfortVijfhuizen外,还包括艾玛建筑公司在Diemerdam堡建造的螺旋形建筑。
莱斯特和韦莱德创建了他们的设计工作室2013。过去的项目包括建在英国肯特的港口铁路高架桥上的三维竹网。
除非另有说明,摄影是由奥斯普拍摄的。
晚餐配置-点击获取更大的图像
演示文稿配置-单击以获得更大的图像
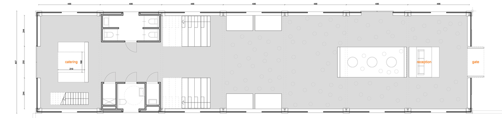
接收配置>点击更大的图像
车间配置-单击以获得更大的图像
客服
消息
收藏
下载
最近
















