查看完整案例


收藏

下载
© Amit Geron
阿米特·杰龙 (Amit Geron)
架构师提供的文本描述。IDC Herzliya 的米里亚姆博士和谢尔登·G·阿德尔森创业学校位于校园的东北角,位于特拉维夫附近地中海小城市的一个平面上。上面的楼层是开放和透明的,直接向外看大学的树叶,而较低的楼层与校园花园的规模关系更密切。学生们通过一个 8 米高的拱廊进入大楼。
Text description provided by the architects. The Dr. Miriam and Sheldon G. Adelson School of Entrepreneurship at the IDC Herzliya is situated in the northeast corner of campus on a flat site in a small Mediterranean coastal city near Tel Aviv. The upper floors are open and transparent, looking directly out and over the university foliage while the lower floors relate more intimately to the scale of the immediate campus gardens. Students enter the building through an 8 meter high arcade.
© Amit Geron
阿米特·杰龙 (Amit Geron)
这座建筑是以色列首个致力于研究和支持创业的同类机构的所在地。
The building is home to a first-of-its-kind institution in Israel dedicated to the study and support of entrepreneurship. © Amit Geron
阿米特·杰龙 (Amit Geron)
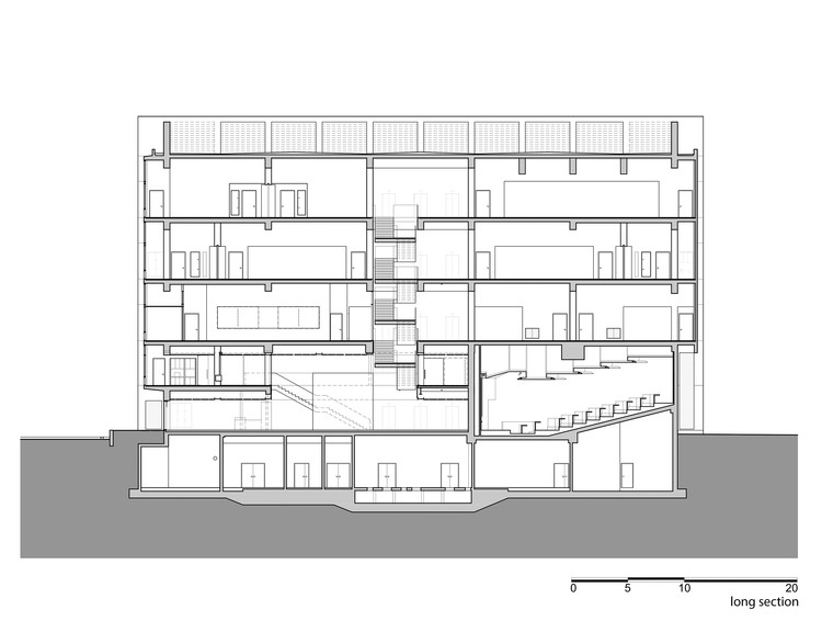
在一楼,一个公共大厅和一个学生休息室成了展示“创业国家”的画廊空间,这个词是用来形容以色列创业企业数量过多的。从这个双高度的空间直接进入的是一个 165 个座位的演讲厅,一个茶点亭,学校的行政办公室和一个玻璃包围的会议室,为最重要的会议和介绍。
At the ground floor, a public lobby and student lounge doubles as a gallery space for exhibitions highlighting the “Startup Nation”, a term coined to describe Israel’s disproportionately high number of entrepreneurship ventures. Directly accessible from this double-height space are a 165-seat lecture hall, a refreshment kiosk, the school’s administrative offices and a glass-encased conference room for the most important meetings and presentations.
© Amit Geron
阿米特·杰龙 (Amit Geron)
在较公开的较低楼层之上是 3 层专门教室、加速器空间、工作人员办公室、会议室和支助设施。
Above the more public lower floors are 3 floors of specialized classrooms, accelerator spaces, staff offices, meeting rooms and support facilities.
阿德尔森创业学校的建筑体现了创新和变革思维的精神,这是其使命的核心。该计划是有效和模块化的高空间设计,以方便地重新配置,以支持各种教学环境。这座建筑是创业心态的延伸隐喻-- 清晰、直截了当、没有浮夸,同时又自信、充满活力、充满激情、富有创造性和人性化。
The architecture of the Adelson School of Entrepreneurship embodies the spirit of innovation and transformative thinking, central to its mission. The plan is efficient and modular with tall spaces designed to be conveniently reconfigured to support a variety of teaching environments. The building is an extended metaphor for the entrepreneurial mindset - clear, straightforward, no frills while simultaneously assertive, dynamic, passionately creative and humane.
© Amit Geron
阿米特·杰龙 (Amit Geron)
这座建筑的设计促进了一种理念,即学校可以被解读为一个概念工厂和文字工厂,用于生产创造力和合作追求。然而,不像一个真正的工厂,严格处理有效的材料加工成有用的对象,这所学校的原材料是那些希望合作,有效率,本着机会和灵感的精神一起工作的人。
The design of the building promotes an idea that the school can be read as both a conceptual and literal factory for the production of creativity and collaborative pursuits. However, unlike a actual factory that deals strictly with the efficient processing of materials into useful objects, the raw materials of this school are people who want to work together collaboratively, efficiently and in a spirit of opportunity and inspiration.
© Amit Geron
阿米特·杰龙 (Amit Geron)
工厂在以下方面的使用是概念性的:
The factory is conceptual in the use of:
-模块式可重构 4.5 米宽海湾
-The modular re-configurable 4.5 meter wide bays
-大跨度梁,沿建筑物的长度延伸至东核,向西延伸,释放下面的平面图。
-Long-span beams stretching between the east core along the building length across to the west façade that frees up the floor plan underneath
-高大的空间,既可以制造大型物体,也可以对楼面进行彻底的改动,以便有新的用途
-The tall spaces that permit both the fabrication of large objects and radical changes to the floor section to permit new uses
将所有核心建筑系统 (垂直运输、管道/暖通空调/电气和通信服务、卫生间、支助室和安保室) 都围住在面积狭窄的平面图一侧
- The encasement of all of core building systems (vertical transportation, plumbing/HVAC/electrical and communication services, restrooms, support rooms and security rooms) within a narrow volume aligning one side of the floor plan
© Amit Geron
阿米特·杰龙 (Amit Geron)
该工厂在使用:
The factory is literal in the use of:
-裸露的建筑服务
-Exposed building services
-工业照明系统
Industrial lighting systems
-简单耐用的工业材料,包括建筑桦木胶合板、抛光混凝土地板、裸露混凝土梁和柱、油漆钢楼梯、不锈钢网护栏填充、膨胀金属网 [xpm] 下降的天花板面板和遮阳保护西面。
-Simple, durable, industrial materials including architectural birch plywood furniture, polished concrete flooring, exposed concrete beams and columns, painted steel staircases, stainless-steel mesh guardrail infills, expanded metal-mesh [XPM] dropped ceiling panels and sun shading protecting the west façade © Amit Geron
阿米特·杰龙 (Amit Geron)
-大开窗,使充足的自然光能穿透地板的深处。
Large fenestration to allow ample natural light to penetrate deep into the floorplate
这座建筑的概念核心是一个持续不断的社交空间网络,旨在鼓励协作、人际关系和师生互动。这些空间是连接在一起的悬吊钢中央楼梯详细与薄不锈钢电缆网,以最大限度地半透明。
The conceptual heart of the building is a continuous network of social spaces designed to encourage collaboration, networking and student-faculty interactions. These spaces are tied together by a suspended steel central staircase detailed with thin stainless steel cable mesh to maximize translucency.
© Amit Geron
阿米特·杰龙 (Amit Geron)
产品描述。西法赛德遮阳-- 意大利 EXA 12 膨胀金属网 [XPM] 的玻璃西面保护了一系列垂直的太阳百叶窗,遮挡强烈的下午阳光,同时促进校园景观和让自然光渗透到建筑物深处。该设计使用 50 个相同的垂直百叶窗单位,由油漆钢和铝 XPM 网。每个单元高 16.5 米,深 1.35 米,间隔 75 厘米。建筑师们战略性地选择了合适的网格模式和方向,从而为太阳光创建了一个简单的智能过滤器,网格的叶片稍微向北倾斜。网状结构阻挡了来自西南方向的光线,同时也让人们直接看到了西北方向的景色。少量的漫射和反射光仍然从西南方向穿透,使百叶窗系统变得轻盈和通畅。
Product Description.Western Façade Shading – Italfim EXA 12 Expanded Metal Mesh [XPM] The glazed west façade is protected with a series of vertical sun louvers that baffle the strong afternoon sun while both promoting views of the campus landscapes and allowing natural light to penetrate deep into the building. The design uses 50 identical vertical louver units made from painted steel and aluminum XPM mesh. Each unit is 16.5 meters high and 1.35 meters deep, spaced 75 cm apart. The architects strategically selected the appropriate mesh pattern and orientation thereby creating a simple smart filter for the sun light with the blades of the mesh turning slightly to the north. The mesh blocks the light coming from the southwest while permitting views straight on and to the northwest. A small amount of diffuse and reflected light still penetrates from the southwest giving the louver system a lightness and airiness. © Amit Geron
阿米特·杰龙 (Amit Geron)
Architects David S. Robins, Dan Price
Location Herzliya, Israel
Category Higher Education
Area 5000.0 m2Project Year 2016
Photographs Amit Geron
客服
消息
收藏
下载
最近













































