查看完整案例


收藏

下载
© Rory Gardiner
罗里·嘉丁纳
架构师提供的文本描述。在一座世纪之交的波菲里安别墅里度过了30年之后,著名的当代艺术画廊OMR决定搬到一个新的地方。选定的地点是一座现有的野蛮人建筑,名为SalaMargolin,最初致力于出售唱片和书籍。该建筑物的设计包括一个单一的大空间覆盖一个围护混凝土屋顶板,在下面的商店的不同部分是由微妙的变化,地板水平。屋顶围绕着周边,由四根细长的混凝土柱支撑,形成中央天窗,这是空间最重要的光源。
Text description provided by the architects. After 30 years in a turn-of-the-century Porfirian villa, the renowned contemporary art gallery OMR decided to move to a new location. The chosen site was an existing brutalist building called Sala Margolin, originally dedicated to the sale of records and books. The building's design consisted of a single large space covered by a coffered concrete roof slab under which the different sections of the store were organized by subtle changes in floor level. The roof was supported around the perimeter and by four slender concrete columns framing a central skylight, the most important light source for the space.
© Rory Gardiner
罗里·嘉丁纳
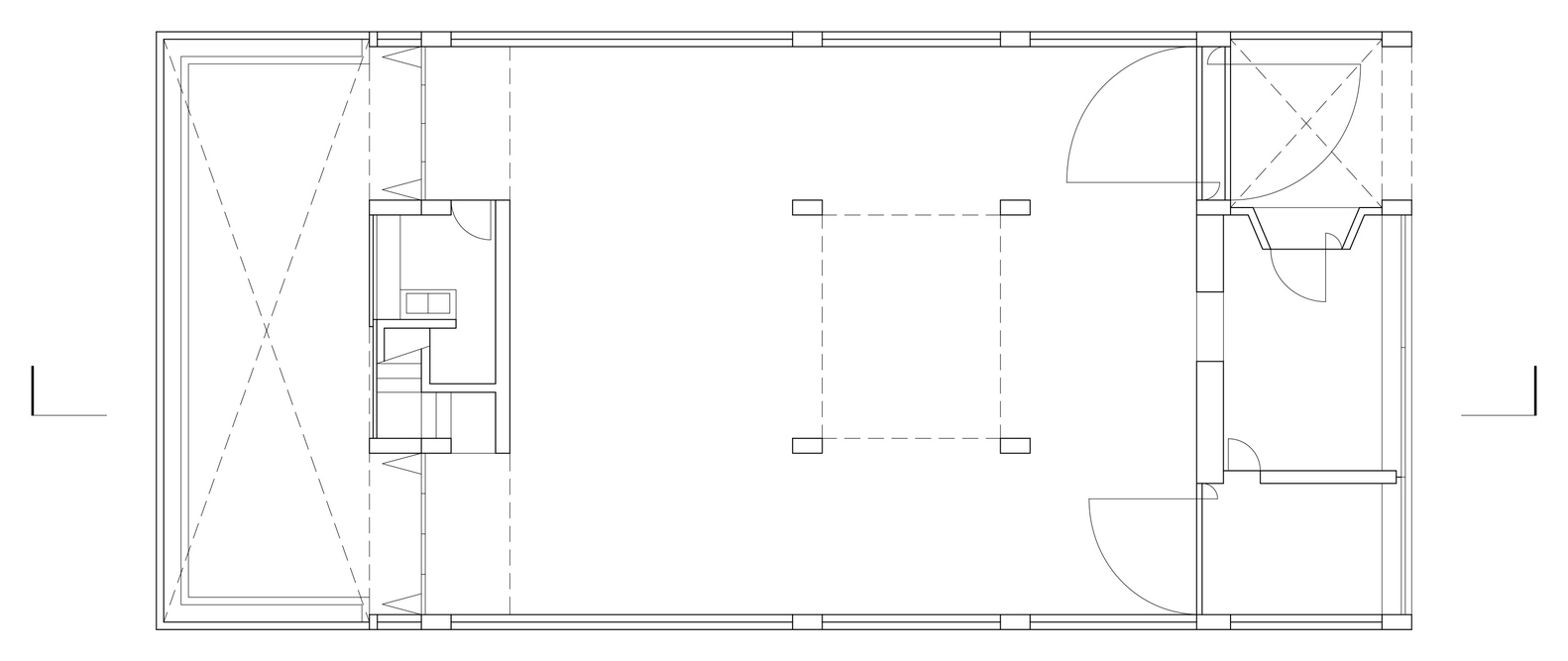
设计策略是尽可能保护现有建筑。一个中央浴室核心被拆除,一些内部细节调下来,以使建筑的特点,并将其转变为一个慷慨的展览空间。为了提供客户所需的灵活性,对混凝土地板进行了平整,并在内部采用了结构墙面衬里,允许在5.5米的房间高度范围内的任何地方悬挂大量艺术品。在一楼的主要展览空间是一个入口庭院,接待处,技术存储空间和一个后花园庭院,酒吧打开。
The design strategy was to preserve the existing building as much as possible. A central bathroom core was demolished and some interior details toned down so as to bring out the character of the building and transform it into a generous exhibition space. In order to provide the flexibility required by the client, the concrete floor was leveled and structural wall linings were applied to the interiors, allowing the hanging of substantial artworks anywhere within the 5.5 meters room height. Accompanying the main exhibition space on the ground floor are an access courtyard, reception, technical storage space and a rear garden courtyard onto which a bar opens.
© Rory Gardiner
罗里·嘉丁纳
© Rory Gardiner
罗里·嘉丁纳
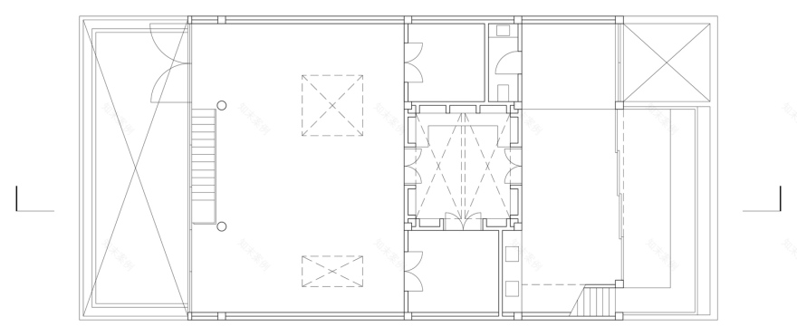
垂直延伸容纳辅助程序,以不损害现有空间。这个新的顶层有一个多用途的空间,艺术存储,办公室,图书馆,会议室,厨房和露台。通过加厚后庭院的墙,可以解决垂直循环到新的顶层,而不影响现有楼板的结构。这堵“加厚的墙”-只有两米宽-可以容纳一间带浴室的阁楼,还可以通过现代的、向下的玻璃幕墙向庭院开放新增加的室内空间。建筑在现场使用标准钢型材,并安排在矩形模块,这个外观集成了投影窗口,允许被动通风。立面有一个可开放的部分,可以通过移动提升平台将大型艺术品移动到顶层,而不是需要将现有平板穿孔或在后庭院引入额外体积的固定货物升降机。
A vertical extension accommodates supplementary programs in order to not compromise the existing spaces. This new top floor houses a multipurpose space, art storage, offices, a library, meeting room, kitchen and terrace. By thickening the wall that faced the rear courtyard it was possible to resolve the vertical circulation to the new top floor without affecting the structure of the existing slab. This "thickened wall" – a mere two meters wide – allowed the accommodation of a mezzanine with bathrooms as well as the opening up of the newly added interior spaces towards the courtyard by means of a modern and paired down glazed facade. Built on site using standard steel profiles and arranged in rectangular modules this façade integrates projecting windows allowing for passive ventilation. In lieu of a fixed goods lift that would have required the perforation of the existing slab or the introduction of an extra volume infringing on the rear courtyard, the facade has an openable section that allows the movement of large format artworks to the top floor via a mobile lifting platform.
© Rory Gardiner
罗里·嘉丁纳
新建的顶层按照原建筑的结构方案组织,大致形成9平方网格布局,允许各种细分空间和分配循环的方式提供最大的灵活性。到达这层楼时,参观者发现了一个大型的多用途空间,作为主展厅、工作空间以及讲习班和讲座场所的延伸。为了保持原有天窗的位置,图书馆成为一个新的中心灯光空间,将所有其他功能结合在一起。面对街道是一个更私人的空间,会议室,厨房,行政办公室和露台。露台是顶楼4米受挫的结果,它起到了对街道的中介作用,保持原有门面的比例不变,并允许谨慎干预。横向楼梯从这里通向屋顶,在更大规模的社交活动中有效地创造了露台的延伸。反过来,这一空间已被条件作为一个室外车间的功能,其中的一部分筹备工作的展览。
The newly built top floor is organized according to the structural scheme of the original construction, roughly forming a 9-square grid layout that provides a maximum of flexibility by allowing a variety of ways to subdivide space and distribute circulation. On reaching this floor, visitors discover the large multipurpose space that functions as an extension of the main exhibition gallery, a showroom, a work space and a place for workshops and lectures. In keeping with the position of the original skylight, the library becomes a new central light space that articulates all other functions. Facing the street is a more private space where the meeting room, kitchen, executive office and terrace are situated. The terrace is the result of a 4-meter setback of the top floor which functions as a mediating element towards the street, keeping the proportions of the original facade intact and allowing for a discreet intervention. A lateral staircase leads from here to the rooftop effectively creating an extension of the terrace during larger scale social events. In turn, this space has been conditioned to function as an outdoor workshop where part of the preparatory work for exhibitions is done.
其结果是一个冷静的项目,它放大了原有建筑的特征,同时又为新的文化生活做好准备,同时又不违背无菌白色立方体的国际惯例。
The result is a sober project that amplifies the character of the original building whilst preparing it for a new cultural life without falling back on the international conventions of the sterile white cube.
© Rory Gardiner
罗里·嘉丁纳
Architects José Arnaud-Bello, Mateo Riestra, Max von Werz
Location Calle Córdoba 100, Roma Nte., 06700 Ciudad de Mexico, CDMX, Mexico
Category Adaptive Reuse
Architects in Charge Mateo Riestra, José Arnaud-Bello, Max von Werz
Area 455.0 m2
Project Year 2016
Photographs Rory Gardiner
Manufacturers Loading...
客服
消息
收藏
下载
最近













































