查看完整案例


收藏

下载
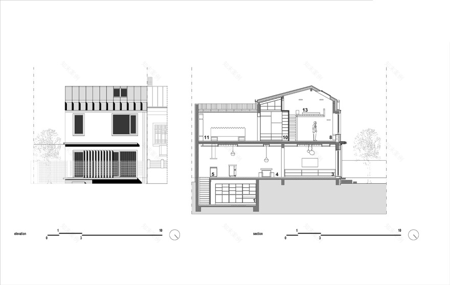
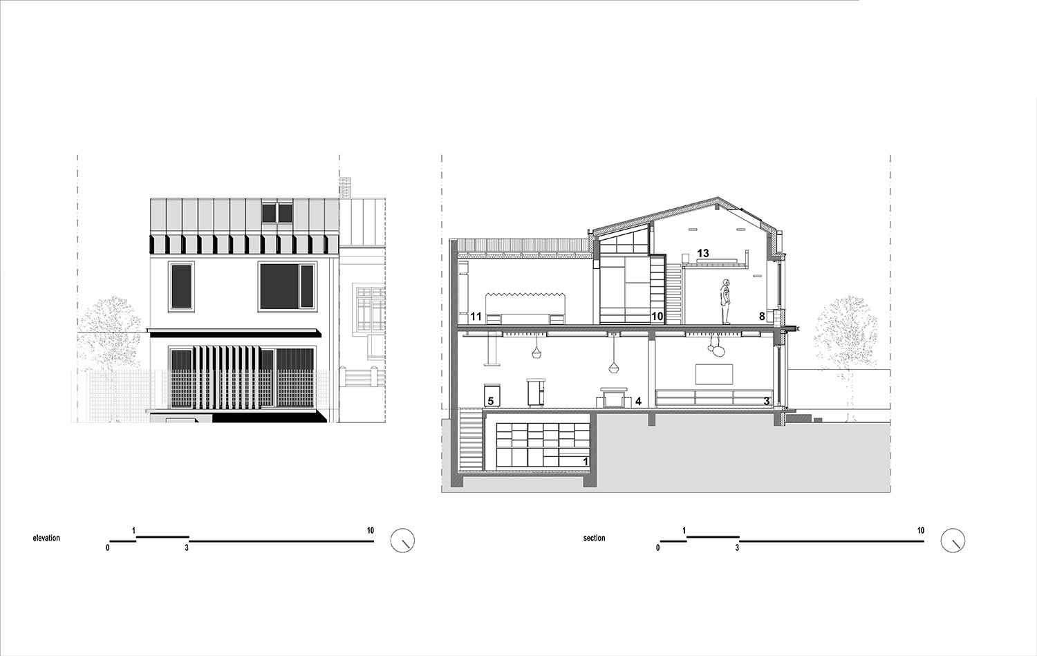
在一个建筑均一,严格的建筑限制,这房子是打算作为简单的建筑物,明确的布局,并已设计为奥费尔的平静,连续性的感觉。
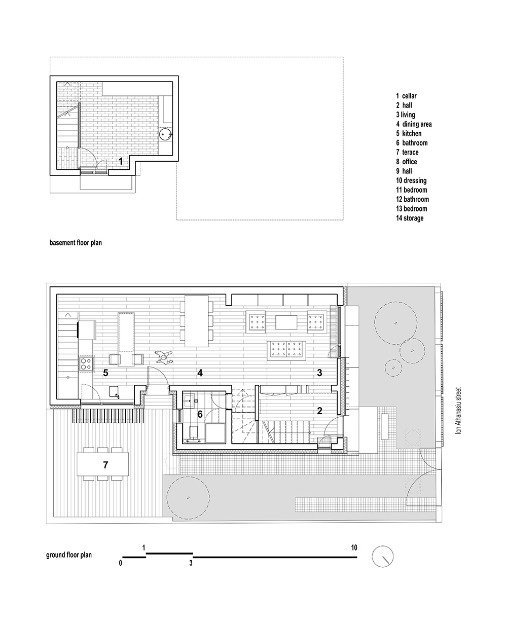
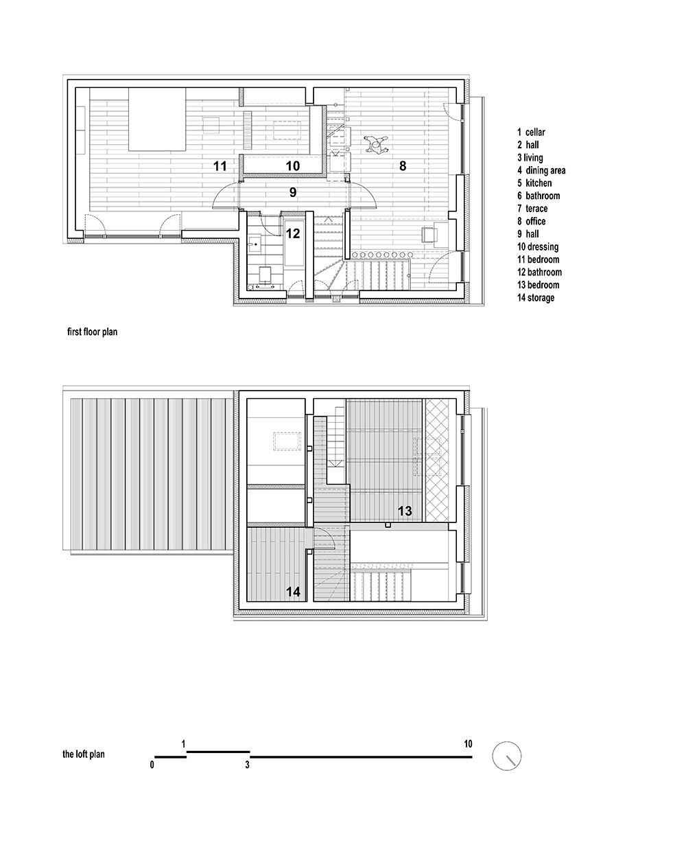
足迹和大小遵循当地的建筑规则以及程序内部。
内部被看作是沿纵轴排列的一系列相交的空间,以具有清洁线条和天然材料的流体组成。
尽管室内布置简单,但室内装饰被用来以直观和实用的方式定义开放空间,以获得最高的天花板高度、自然光和由形状和体积定义的功能,而不是墙和门。
结构工程师:Domus Proiect
家具、木材和金属制品:Sorin Nechifo
照片:Dan Samoila
Firm In situ
Type Residential › Private House
STATUS Built
YEAR 2015
SIZE 0 sqft - 1000 sqft
keywords:architecture, architecture news, interiors, interior design, portfolio, spec, brands, marketplace, products Casa Damian
关键词:建筑,建筑新闻,室内设计,组合,规格,品牌,市场,产品卡萨达米安
客服
消息
收藏
下载
最近























