查看完整案例


收藏

下载
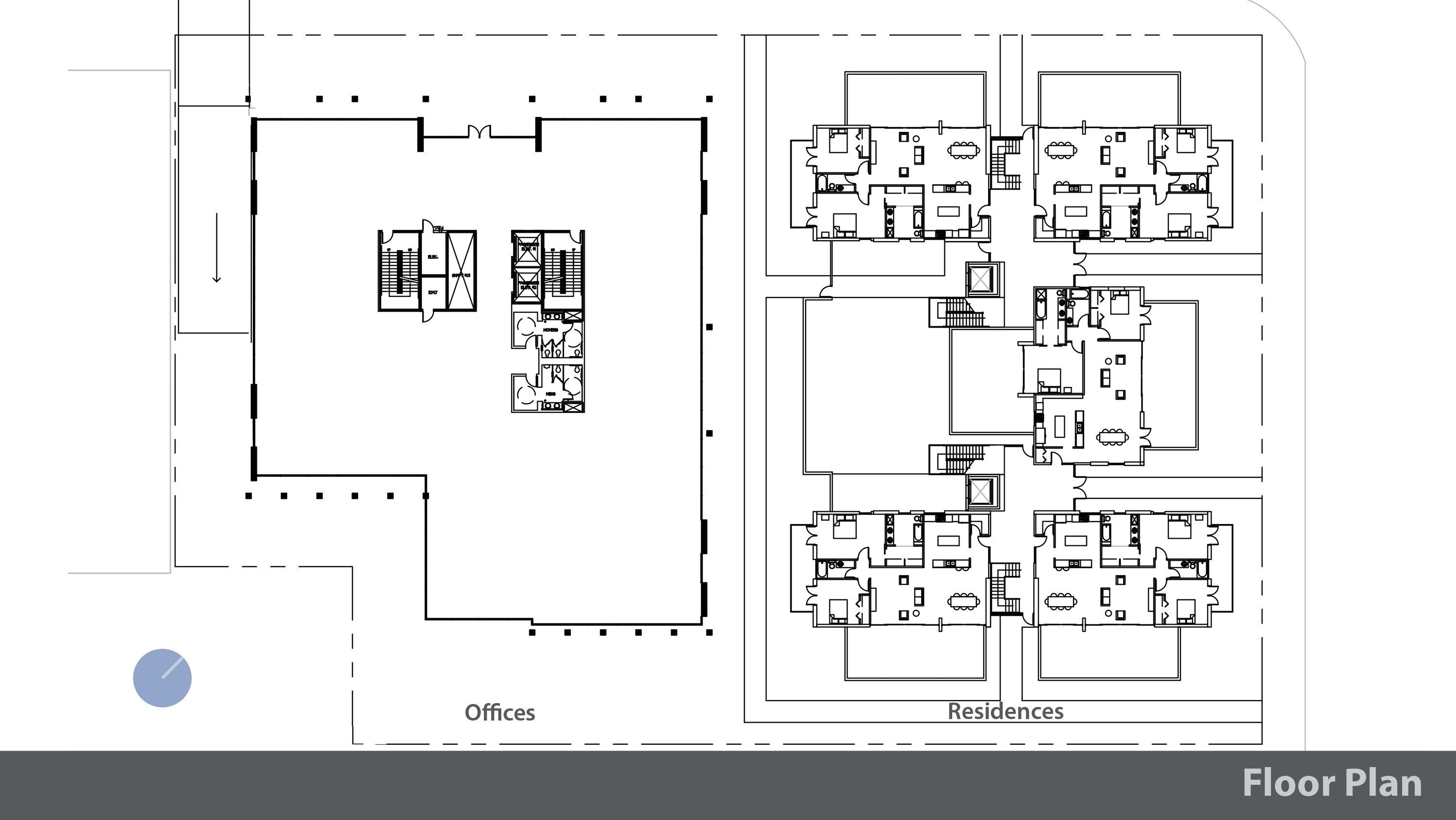
居住在帕洛阿尔托是一种跨越世俗,文雅和美国蔓延的经验。与郊区的感觉一样,当你从这个城市的主要街道-大学大道(UniversityAvenue)走得更远时,你会感觉到,这里的社区有着鲜明的性格、规模、繁茂的自然和行人友好。给出一个既独特又属于其位置的形象,这是我们提高帕洛阿尔托分散生活质量的反应,也是推动这一住房项目的因素。
这些独特的卷,作为一个建筑整体,表达了他们自己的天际线与明显的水平帕洛阿尔托。他们占据了四分之一的城市街区,为当地社区提供了一种有节制的地中海现代化,同时又有纪律和放松。它的立体集合让个性在多重性中共存:每个单元都有一个可识别的存在,同时被完全整合到一个整体的视觉中。这些空洞的盒子是一座没有后背的建筑的标志:所有的高地都与它们的邻接有着有意义的联系。这种四边形的几何图形加强了地段的角落,使轴度成为一个灵活的规则,一个生动的建筑组成。
这是帕洛阿尔托建筑中的一种新的设计语言。硬景观和景观把建筑的脚印以一座古老的欧洲城市的方式结合在一起,在几个世纪的城市设计实践中,这是一个行之有效的想法。在半空中的室外空间会让人联想到阳台.邀请行人居住在任何建筑中,就是哄他们进入充满兴趣、安全和惊喜的体验。聚集、分享、撤退、娱乐、培养、反思、工作和发挥作用的环境。总之,一个地方。
Firm Form4 Architecture
Type Residential › Multi Unit Housing
STATUS Concept
keywords:architecture, architecture news, interiors, interior design, portfolio, spec, brands, marketplace, products Urban Frames
关键词:建筑,建筑新闻,室内设计,组合,规格,品牌,市场,产品城市框架
客服
消息
收藏
下载
最近














