查看完整案例


收藏

下载
Atrium. Image Courtesy of Ennead Architects
中庭。环境建筑师的形象礼貌
为了反映学校的研究领域,这座建筑被设计成一个工程展示厅,有一个裸露的混凝土结构框架和钢桁架系统、桥梁、一个玻璃屋顶、一个大跨度遮阳系统和一个中心螺旋形楼梯。
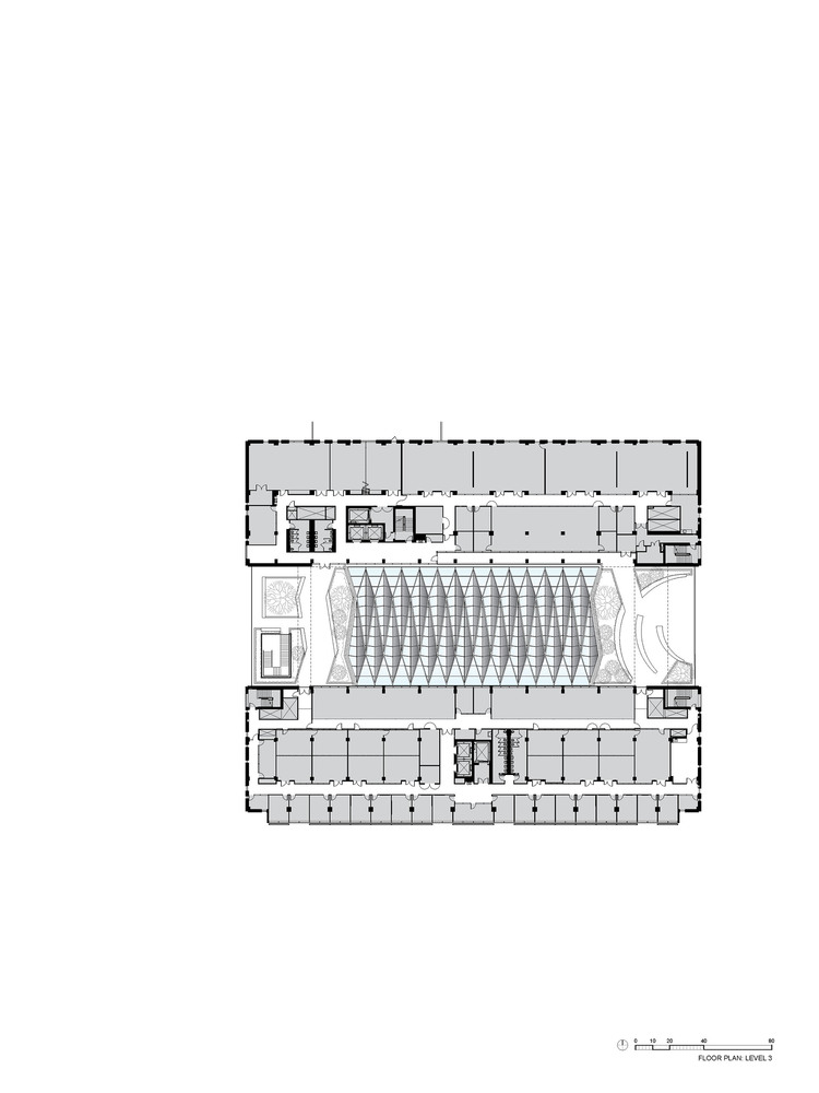
In reflection of the school’s area of study, the building has been designed as a showcase for engineering, with an exposed concrete structural frame and steel truss systems, bridges, a glass roof, large-span sun shading systems and a centerpiece spiral staircase.
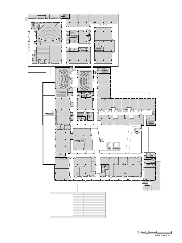
教育计划已分为两个石灰石包层塔,包括实验室,办公室和工作空间,为不同的工程部门。机翼由一个三层高的公共中庭连接,上面有一个折叠的玻璃和钢制的透明屋顶结构,它也成为5层室外空间的基础,通过悬挂在两座塔之间的屏幕遮挡太阳。玻璃和钢桥连接建筑的上层沿着东面和西面。
The educational program has been divided into two limestone-clad towers containing labs, offices and work spaces for the different engineering departments. The wings are connected by a triple-height public atrium capped with a folded glass and steel clear-span roof structure that also becomes the base of a 5-story outdoor volume, shielded from the sun by a screen hung between the two towers. Glass and steel bridges connect the building’s upper levels along the eastern and western facades.
Exterior. Image Courtesy of Ennead Architects
外表。环境建筑师的形象礼貌
Atrium. Image Courtesy of Ennead Architects
中庭。环境建筑师的形象礼貌
中庭前面是国家仪器学生项目中心,该中心为本科生提供23,000平方英尺(2,100平方米)的制造空间,在早期教育中非常重视设计、制造和快速原型制作。两层工程中心的大部分实验室空间都采用了从地板到天花板的玻璃窗,让任何经过大楼的人都可以看到学生的作品。
Fronting the atrium is the National Instruments Student Project Center, which provides 23,000 square feet (2,100 square meters) of maker space to undergraduate students, putting a strong emphasis on design, fabrication and rapid-prototyping early in their educations. The majority of lab spaces in the two-story Project Center feature floor-to-ceiling glazing, putting student work on display for anyone passing through the building.
Courtesy of Ennead Architects
Ennead建筑师的礼遇
工程教育研究中心将于2017年竣工。
The Engineering Education and Research Center is scheduled to be completed in 2017.
Courtesy of Ennead Architects
Ennead建筑师的礼遇
Courtesy of Ennead Architects
Ennead建筑师的礼遇
Courtesy of Ennead Architects
Ennead建筑师的礼遇
位于德克萨斯州奥斯汀的德克萨斯大学建筑师Ennead建筑事务所、美国建筑师Ennead建筑设计合作伙伴托德·施利曼管理合伙人凯文·麦克卢尔坎项目设计师亚历克斯·奥布赖特项目经理/项目建筑师艾米莉·柯克兰项目建筑师、设计梅根·米勒室内设计师、夏尔曼地方小组成员扎克·奥尔恰克、耶娜·里姆库斯副建筑师雅各布斯结构基准工程师MEP附属工程师公司。实验室雅各布斯顾问,地质雷达规划师合作景观科尔曼
Architects Ennead Architects Location University of Texas at Austin, Austin, TX, United States Architect Ennead Architects Design Partner Todd Schliemann Management Partner Kevin McClurkan Project Designer Alex O’Briant Project Manager/Project Architect Emily Kirkland Project Architect, Design Megan Miller Interiors Charmian Place Team Members Zach Olczak, Jena Rimkus Associate Architect Jacobs Structural Datum Engineers MEP Affiliated Engineers, Inc. Laboratory Jacobs Consultancy, GPR Planners Collaborative Landscape Coleman & Associates Theater Fisher Dachs Associates Graphics/Wayfinding Design Jankedesign Technology Datacom Design Group Food Service Worrell Design Group Security Kroll Inc. Accessibility K+K Associates Code Aon Cost Estimating/Constructability Garza Program Management Construction Manager Hensel Phelps Construction Co Area 433000.0 sqm Project Year 2017
客服
消息
收藏
下载
最近



























