查看完整案例


收藏

下载
© CHEN Hao
(三)陈浩
建筑师提供的文字说明。SND文化
Text description provided by the architects. The SND Cultural & Sports Centre is located in Suzhou Science & Technology Town, hemmed in by the Taihu Avenue and the Huguang Canal and backed by the Little Dragon Hill. It covers an area of more than 200,000sqm and a floor area of 170,000 sqm.
© CHEN Hao
(三)陈浩
其目的是使该中心成为山丘的延伸,以便将整个建筑群合并在一起。因此,该方案是一种尝试,以创造一种完全适合其周围环境的建筑,而不是一个独立的“方形盒子”。
The aim is to make the Centre an extension of the hills in a bid to merge the entire complex into the context. The scheme, therefore, is an attempt to create an architecture that perfectly fits into its surroundings instead of a detached “square box”.
© CHEN Hao
(三)陈浩
© Arch-Exist
c Arch-存在
作为城市空间和人们日常生活的一部分,这个巨大的中心被设计成一个金字塔式的程序单元,看起来不那么强大,成为城市不可分割的一部分。这种与功能紧密相连的空间结构构成了“云形假山”的核心思想。
As part of the urban space and people’s day-to-day life, the enormous Centre is designed in the form of a pyramid of program units to appear less formidable and become an integral part of the city. Such spatial structure that is closely linked with the functions defines the core idea of “cloud-shaped rockery”.
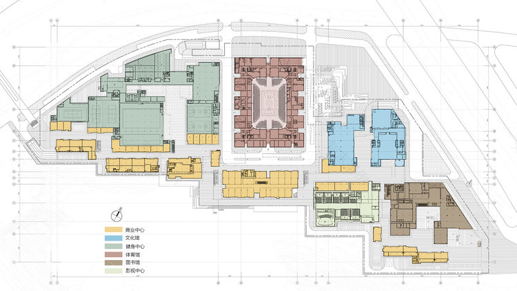
Ground Floor Plan
在数字时代,建筑师的目标是创造出像太湖石一样复杂的空间,这些空间由简单抽象的方形单元组成,就像魔方一样。
In a digital era, architects aim to create spaces as intricate as the Taihu stones out of simple, abstract square units arranged in a Rubik's Cube-like way.
© CHEN Hao
(三)陈浩
“云状假山”的概念继承了城市的传统,象征着城市的未来。根据古典园林独特的空间布局,设计灵活的空间以创造更大的运作潜力。也许正是这一战略使项目更加灵活,并在国内建筑气候不确定的情况下,保持了今后需要改变的设计理念。
The concept of “cloud-shaped rockery” carries on the city’s tradition and symbolizes its future. In compliance with the unique spatial layout of classical gardens, the flexible spaces are designed to create further operational potential. It is perhaps this strategy that can make the programs more flexible and keep the design concept as it is when there is a need for change in the future, amid uncertainties in the domestic construction climate.
© Arch-Exist
c Arch-存在
© Arch-Exist
c Arch-存在
该计划将其重点从服务于项目的原始计划转变为我们日常生活的一部分,甚至是一种扩展:高街,沿途的行人能够在其他地方获得捷径和访问,而开放的空间纵横交错,使得大量的综合体能够容纳居民“日常活动。
The scheme shifts its focus away from serving the project’s original program to become part of our daily life, even kind of an extension: the high street, along which pedestrians are able to take a shortcut and access elsewhere, and the open spaces crisscrossing the site enable the huge complex to host residents’ daily activities.
© Arch-Exist
c Arch-存在
广场位于6米高的平台上,作为站点的主要交通区域,与商业街并排,是多样化和复杂的城市生活的缩影,居民们经常在散步、购物、短暂休息和互动活动之间穿梭。作为一个多功能的文化体育综合体,SND文化
The terraced square on a six-meter-high platform serving as the site’s main transit area, alongside the high street, is an encapsulation of the diverse and complex urban life, in which inhabitants routinely shift between activities of stroll, shopping, short breaks and interaction. As a multi-purpose cultural and sports complex, the SND Cultural & Sports Centre is mainly designed for cultural, sports and commercial purposes, with facilities such as cultural centre, library, stadium, fitness centre , cinema and open-air recreation square.
© CHEN Hao
(三)陈浩
Architects Tianhua Architecture Planning & Engineering Ltd.
Location Suzhou New District, Jiangsu Province, China
Category Sports Architecture
Architectural Design Huang Xiangming, Han Jian, Chen Yan, Zhou Xin, Bai Yu, Xiao Fei, Wang Xiaoyang, Lv Xiaoyu, Zeng Zhe, Feng Bo, Lu Yi, Liu Yang, Bi Zehao, Liu Pei, Yuan Jiani, Du Peng, Ni Ziyu, Ma Lina, Li Xinmeng, Zhang Jiangwei
Area 170000.0 sqm
Project Year 2016
Photographs Arch-Exist
客服
消息
收藏
下载
最近































