查看完整案例


收藏

下载
© Jeffery Johnson
(C)Jeffery Johnson
卡恩最初的提议包括了爱乐乐团的大厅、艺术学校、画廊和市政剧院,它们结合在一起,形成了一个庞大的建筑群。然而,随着建筑师2000万美元的估算使预计的250万美元的美术中心成本相形见绌,这个项目初期就出现了麻烦。
Kahn’s original proposal encompassed a philharmonic hall, art school, gallery and civic theatre bound together in a large complex. Yet, troubles began early in the project as the architect’s 20 million dollar estimate dwarfed the expected 2.5 million dollar cost of the Fine Arts Center.
© Jeffery Johnson
(C)Jeffery Johnson
1961年至1964年,卡恩和他的办公室在完成宾夕法尼亚大学理查兹医疗中心的同时,为这个庞大的项目制定了一系列计划。MoMA收藏的石膏模型展示了卡恩到达所有活动的单一入口的意图-无论是步行还是汽车。卡恩说:“我认为,当所有这些活动结合在一起时,就会有一种创造的东西。”“他们当然会发挥作用,但当他们走到一起时,就会有一些新的东西。”[1]在建筑和计划的关系上,这些利益将像大多数项目一样,向经济学低头。平庸的停车现实意味着卡恩想要建造一座高架停车塔,作为该建筑群的一部分,这一想法将在以后的研究模型中消失。
From 1961 to 1964, while also completing the Richards Medical Center at the University of Pennsylvania, Kahn and his office worked a series of schemes for the expansive project. A collection of plaster models held by MoMA reveal Kahn’s intention to arrive at a single entrance for all activities—accessed either by foot or car. “I think when all these activities come together, there is a kind of thing that is created,” Kahn said. “They surely function in themselves but when they come together there is something new.” [1] These interests in the relationally of building and program would, like a majority of the project, bow to economics. The mundane realities of parking meant Kahn’s intention for an elevated parking tower as part of the complex would vanish in later study models.
© Jeffery Johnson
(C)Jeffery Johnson
© Jeffery Johnson
(C)Jeffery Johnson
一项较成熟的计划似乎已于1964年左右达成。一份场地图显示了围绕中央庭院和花园的九座建筑组成的校园。在这个概念中,爱乐音乐厅通过八角形管弦乐附件连接到表演艺术剧院。一个中央庭院将这些剧院与历史博物馆、艺术博物馆、接待中心和圆形剧场连接起来,而艺术学院则占据了遗址边缘的四座独立的建筑。
A more developed scheme appears to have been settled around 1964. A site plan reveals a campus of nine buildings orbiting around central courts and gardens. In this concept, the Philharmonic Hall was linked to the Theater of Performing Arts by an octagonal Philharmonic Annex bridging the spaces. A central courtyard connected these theatres to the Historical Museum, Art Museum, Reception Centre, and Amphitheatre while the School of Art occupied four separate structures at the edge of the site.[2]
© Jeffery Johnson
(C)Jeffery Johnson
然而,到1964年,该项目的资金很少。他对艺术中心的计划一直搁置到1966年,那时人们的注意力从更大的建筑群转向了表演艺术剧院的设计。在完成德克萨斯州沃斯堡的金贝尔艺术博物馆时,卡恩提出的铰接式双层结构的概念取决于小提琴的概念和它的情况,或者,正如他所描述的,“小提琴箱内的小提琴”。混凝土的“小提琴”,连同它的多面板,将代表大厅的内部结构,而砖砌的外部、住宅大厅和相邻的空间将充当小提琴的外壳,与里面的内容完全分开。[3]
However, by 1964 funding for the project was scarce. His plans for the Fine Arts Center were put on hold until 1966 when attention turned from the larger complex to the design of the Theatre of Performing Arts. Developed while finishing the Kimbell Art Museum in Fort Worth, Texas, Kahn’s concept for the articulated double-structure hinged on the notion of a violin and its case, or, as he described, a “violin inside the violin case.” The concrete “violin,” with its faceted panels, would represent the inner structure of the hall while the brick exterior, housing lobbies and adjacent spaces, would act as the violin case entirely separate from the contents within.[3]
© Jeffery Johnson
(C)Jeffery Johnson
这一概念与其说是隐喻,不如说是语用。由于工地毗邻铁路线,剧院和音乐厅的实际隔音和隔音是建筑师最关心的问题。建筑内建筑的概念也建立在卡恩对古典遗迹的兴趣之上,并出现在一个并行的项目中:新罕布什尔州的菲利普斯埃克塞特图书馆(Phillips Exeter Library),它被设想为三个类似废墟的“圆环”。
This concept was less metaphoric than pragmatic. As the site was adjacent to railway lines, the physical as well as acoustic separation of the theatre and concert hall was a primary concern for the architect. This notion of a building-within-a-building also builds on Kahn’s interest in classical ruins and appears in a concurrent project: the Phillips Exeter Library in New Hampshire, conceived as three “rings” of ruin-like structures.[4]
在这个项目的过程中,剧院的本质也吸引了卡恩-无论是对观众还是对表演者本身来说都是如此。排练和准备的粗略空间被认为是特尔斐古典建筑谱系中的世俗演员的小礼拜堂,在那里表演者可以参与他们的技艺。
The essence of the theatre also captivated Kahn during the course of the project—both in what it meant for the audience as well as the performers themselves. Cursory spaces for rehearsal and preparation were conceived as secular actors’ chapels in the lineage of the classical structures at Delphi where performers could engage with their craft.
© Jeffery Johnson
(C)Jeffery Johnson
对观众来说,这种体验更吸引人,而不是反思。卡恩曾说:“当你听到熟悉的第五交响曲的曲调时,就像一个亲戚进入了你很久没见过的房间,你第一次意识到他的眼睛是蓝色的。”[5]1966年至1968年期间制作的一系列草图显示,正在进行形式、空间、声学、失明和有利点的谈判。因此,具体的“小提琴”被认为是一种适合居住的乐器-它让观众既能看到,又能感觉到,也能与熟悉的人和外国人接触。
For the audience, the experience was to be more entrancing than reflective. “When you hear the familiar strains of the Fifth Symphony, it is like a relative entering the room whom you haven't seen in a long time, and you realize for the first time that his eyes are blue,” Kahn once said. [5] A series of sketches produced between 1966 and 1968 show an ongoing struggle to negotiate form, space, acoustics, sightless, and vantage points. Thus, the concrete “violin” was conceived as an inhabitable instrument—one that allowed viewers to both see and feel as well as engage with the familiar and the foreign.[6]
© Jeffery Johnson
(C)Jeffery Johnson
除了混凝土内部,也许最引人注目的项目元素是拟人化的外观。两个宽砖拱门和带肋梁,加上凹口,使人看起来像面具或脸,其中拱门代表眼睛,而横梁则代表入口或入口上方的鼻子。人们对这座建筑唯一入口的重要性的关注,与最初的总体规划截住了,卡恩原本想提供一个清晰的游行队伍,以揭示这座建筑的生命。立面的两个像眼的拱门,二楼的集合和集合空间。
Aside from the concrete interior, perhaps the most striking element of project is the anthropomorphic facade. Two broad brick arches and the nibbed beams coupled with the recessed entranceway give the appearance of a mask or face, where the arches represent the eyes while the beams suggest the nose above the entranceway or mouth. The focus on the importance of this single entrance to the structure was a hold-over from the original masterplan, where Kahn had wanted to provide a clearly delineated procession to reveal the life of the building. The two eye-like arches of the facade frame the second floor assembly and gathering spaces.[7]
Exterior Elevations
外部高程
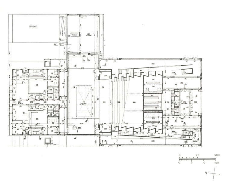
到1970年夏天,卡恩的办公室已经完成了剧院的施工图,不久之后就开始施工。最后,在韦恩堡美术中心的九座建筑中,只有表演艺术剧院完工。剧院于1973年正式落成,比卡恩于1974年去世前一年。
By the summer of 1970, Kahn’s office had completed the working drawings for the theatre, and construction proceeded shortly after. In the end, only the Theatre of Performing Arts was completed out of the nine proposed buildings for the Fine Arts Center of Fort Wayne. The theatre was officially inaugurated in 1973, a year before Kahn’s death in 1974.[8]
最终,对于卡恩来说,演艺剧院相对来说是令人失望的,因为它只代表了最初计划的一个影子,并且背叛了他对相互关系建筑的设想。“形式是处理不可分割的部分,”卡恩说。“如果你拿走一件东西,你就没有全部的东西,没有什么能真正完全地对人们想要接受的东西负责,除非它的所有部分都在一起。”[9]正如约瑟夫·赖克特(Joseph Rykwert)评论的那样,很难相信外表上那张引人注目的脸是个意外。[10]相反,它仍然是谈判的持久证据,而且常常令建筑的现实令人沮丧。
Ultimately, the Theater of Performing Arts was relatively disappointing for Kahn as it represented only a shadow of the original plan and betrayed his vision for an architecture of interrelations. “Form is that which deals with inseparable parts,” said Kahn. “If you take one thing away, you don’t have the whole thing, and nothing is ever really fully answerable to that which man wants to accept as part of his way of life unless all its parts are together.”[9] As Joseph Rykwert comments, it's hard to believe that the striking face on the facade was an accident.[10] Instead, it remains a lasting testament to the negotiations and often frustrating realities of making architecture.
建筑师Louis Kahn Location 303E Main St,FortWayne,in 46802,美国助理建筑师T.Richard Shoaff结构工程师Harry Palmbaum机械/电气工程师Fred S.Dubin Associates声学工程师Cyril M.Harris剧院顾问George C.Izenour Associates Client Art Foundation,1973年福特韦恩项目年照片Jeffery Johnson
Architects Louis Kahn Location 303 E Main St, Fort Wayne, IN 46802, United States Associate Architect T. Richard Shoaff Structural Engineer Harry Palmbaum Mechanical/Electrical Engineer Fred S. Dubin Associates Acoustical Engineer Dr. Cyril M. Harris Theatre Consultant George C. Izenour Associates Client Fine Art Foundation, Fort Wayne Project Year 1973 Photographs Jeffery Johnson
[1]Heinz Ronner,Sharad Jhaveri和Alessandro Vasella,Louis I.Kahn:1935-74年全集(Boulder:West View Press,1977),205。[2]同上,210。[3]Jospeh Rykwert,Louis Kahn(纽约,Harry N.Abrams Inc.,2001年),第58页。[4]文森特·斯卡利,“路易·卡恩和罗马废墟”,“现代博物馆12”(1992年夏季):1-13页。[5]卡洛斯·布里伦堡,“不可能采访路易·I·卡恩”,“40炸弹”(1992年夏季):17。[6]Ronner,Jhaveri和Vesella,215。[7]Jack Perry Brown,Louis Kahn in the中西部(芝加哥:芝加哥艺术学院,1989年),第13页。[8]Rykert,58岁。[9]Ronner,Jhaveri和Vesella,206。[10]Rykert,58岁。
[1] Heinz Ronner, Sharad Jhaveri and Alessandro Vasella, Louis I. Kahn: Complete Works 1935-74 (Boulder: West View Press, 1977), 205. [2] Ibid, 210. [3] Jospeh Rykwert, Louis Kahn (New York, Harry N. Abrams Inc., 2001), 58. [4] Vincent Scully, “Louis Kahn and the Ruins of Rome,” MoMA 12 (Summer 1992): 1-13. [5] Carlos Brillembourg, “An Impossible Interview with Louis I. Kahn,” BOMB 40 (Summer 1992): 17. [6] Ronner, Jhaveri and Vesella, 215. [7] Jack Perry Brown, Louis Kahn in the Midwest (Chicago: Art Institute of Chicago, 1989), 13. [8] Rykwert, 58. [9] Ronner, Jhaveri and Vesella, 206. [10] Rykwert, 58.
客服
消息
收藏
下载
最近


















