查看完整案例


收藏

下载
架构师提供的文本描述。乌卢格·奥托莫蒂夫办公大楼位于阿塔埃希尔地区的一条大道上,已成为安纳托利亚一侧最重要的生活和金融中心之一。该大楼被视为将一种实用、真实和合格的建筑设计、一种动态的砌块结构和一种正面身份结合在一起,在这个地区,许多新一代房地产项目都将在这个地区得到铭记。
Text description provided by the architects. The Ulugöl Otomotiv Office Building, located on one of the thoroughfares of the region in Ataşehir, which has become one of the most important life and finance centers of the Anatolian side, was approached as integrating a functional, genuine and qualified architectural design, a dynamic block construct, and a frontal identity that will stick in the minds in this region which hosts many iconized new generation real estate projects.
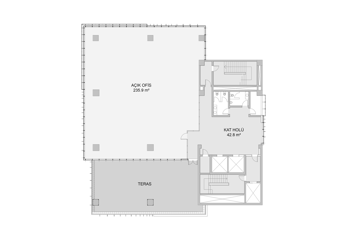
该项目的主要设计决策被塑造成一个可持续、合理和有序结构的愿景,并通过对城市环境物理数据的分析,重建标准办公类型。通过这种方式,它的目的是通过灵活的块来确保前面的多功能性,通过考虑静态结构来创建松散和紧凑的关系,并在具有集体空间的员工之间提供绿色梯田、办公室功能和社会互动之间的协同作用。此外,考虑到它们是日常生活的组成部分,这些绿地被纳入工作场所,提高了工作场所环境的透明度。
The main design decisions of the project were shaped to act as a vision of a sustainable, rational and ordered structure, and reconstructing the standard office typology through analyzing the physical data of the environment in the city. In this way it was aimed to ensure the versatility of the front by means of flexible blocks, creating looseness and compactness relationships by considering a static construct, and providing a synergy between green terraces, office functions, and social interactions among the employees with collective spaces. Furthermore, thinking that they are integral parts of daily life, the green spaces were integrated into the work places and the transparency of the workplace environment was enhanced.
© Gürkan Akay
(Gürkan Akay)
© Gürkan Akay
(Gürkan Akay)
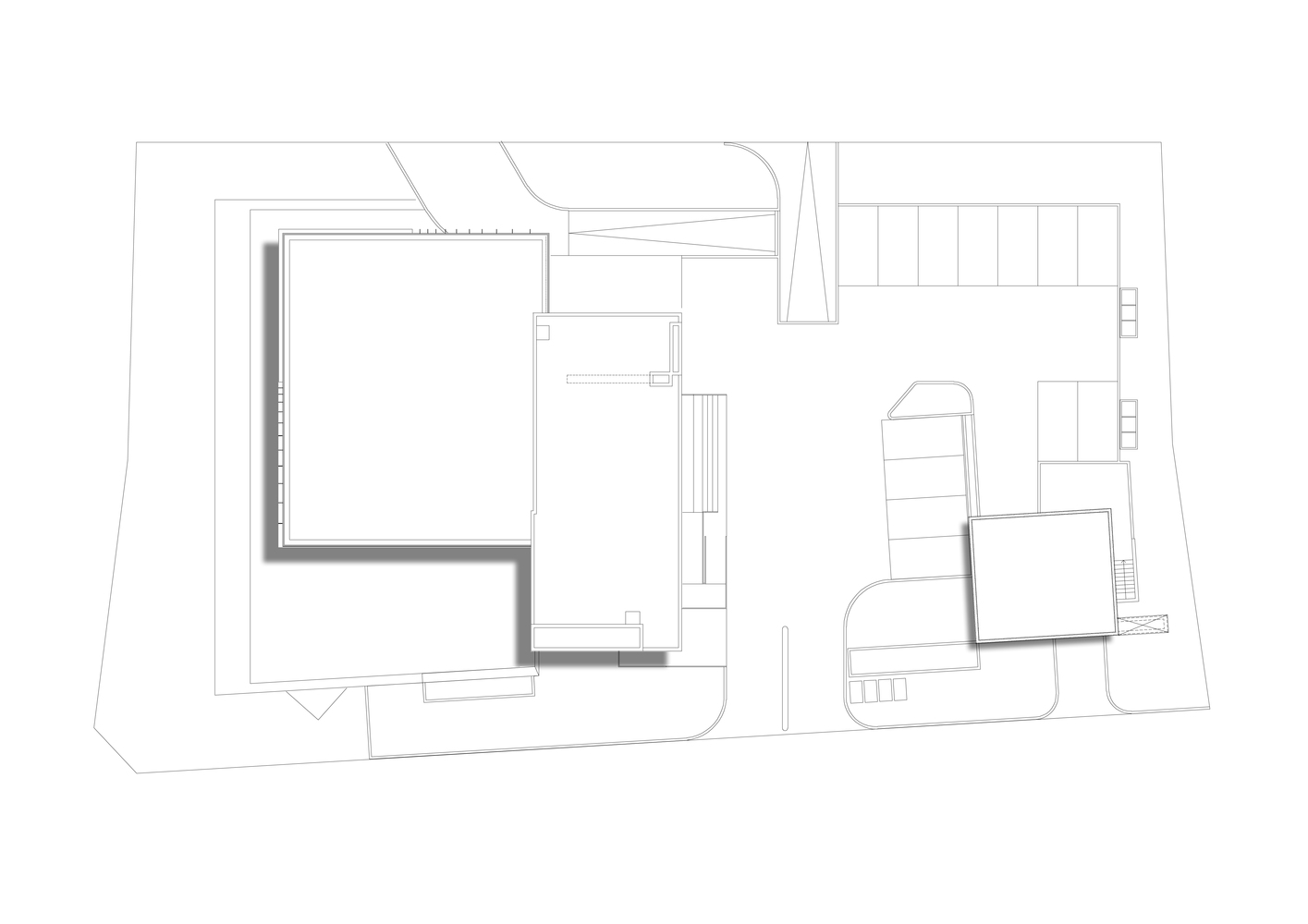
为了丰富正面材料的多样性,在露台的内面采用红色复合板,在建筑物无窗墙壁上使用石材设计陶瓷。在办公室正面,通过网状遮阳板和垂直元素将太阳的负面影响降到最低。Ulug l Otomotiv办公大楼西前部一楼,由5层地下室、1层一层和10层普通楼层组成,建筑面积14 600平方米,作为展厅,东面作为办公室入口和停车场。通过电梯连接到停车场。
For the purpose of enriching the front with material diversity, red composite panels were used on the interior faces of the terraces, and stone design ceramics on the windowless walls of the building. On the office front, negative effects of the sun were minimized through mesh sun shade panels and vertical elements. Ground floor of the western front of the Ulugöl Otomotiv Office Building, which consists of 5 basement floors, a ground floor and 10 normal floors with its 14,600 sqm construction field, was allocated as an exhibition hall and its eastern front as office entrances and a parking lot. Connection to the parking garages was enabled through car elevators.
© Gürkan Akay
(Gürkan Akay)
Architects Tago Architects
Location Istanbul, İstanbul, Turkey
Category Office Buildings
Project Year 2015
Manufacturers Loading...
客服
消息
收藏
下载
最近




























