查看完整案例


收藏

下载
架构师提供的文本描述。这所房子坐落在东京郊区的一个修缮部分,一个满是木屋的区域。它的位置是如此的隐蔽,除非你真的住在附近,否则很难找到它。附近的环境是安静的,并且包含着这个地区特有的匿名感,感觉就像一片原始森林。该项目的客户希望与社会保持一定的距离,但仍要享受退休生活的便利城市生活方式。有一天,我碰巧发现一个破旧的家,完全符合他们的规定。我建议翻修一下。这所房子看上去和这个地区的其他房子一样古老,有着相似的外观。我认为,作为这一地区独特的匿名性的一部分,会更适合我的客户,而不是我完全重建房子,让它从周围的环境中脱颖而出。
Text description provided by the architects. This house is located in a built-up part of the Tokyo outskirts, an area full of wooden houses. Its location is so tucked away that it can be difficult to find unless one actually lives in the neighborhood. The neighboring environment is quiet and contains a sense of anonymity peculiar to this area, which feels like a primeval forest. The client for this project wanted some distance from society, but to still enjoy their retirement living a convenient city lifestyle. One day I happened to find a worn-out home which perfectly matched their stipulations. I suggested renovating it. This house looked as old as the other homes in the area, sharing a similar appearance. I thought being part of the area’s unique anonymity would suit my client better, rather than my completely rebuilding the house and making it stand out from its surroundings.
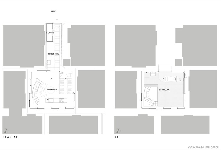
这个想法使我以开放的方式设计了这座房子。我想让一个人在家里的任何地方都能感觉到周围的环境。我故意不把房子按空间隔开。相反,我把它的位置当作一个生活环境。我试图把这个环境和它的建好的环境结合起来,把窗户(那些不对着其他房子窗户的窗户)尽可能的大一些,这样你就可以看到周围的景色了。附近房屋之间的风也能吹过这座房子。我根据外部因素来定义入口和窗户。这导致了室内环境的重大变化,因此我相应地把基本的生活必需品安排在他们合适的地方:一个孤岛厨房,可以背靠着隔壁的墙壁做饭,同时可以俯瞰一条小巷;在房子最风的部分有一个孤岛浴缸;在阴暗的区域有一个淋浴间;一种缓缓倾斜的楼梯,它能让人感觉到隔壁房子的墙壁的存在;以及黑暗地区的储藏空间。我对房子的设计是动态的,而不是方法上的。实际的生活体验是三维的,比地面计划所能描述的更流畅。
This idea led me to design the house in an open manner. I intended to make someone inside really sense their surroundings wherever they might be in the home. I intentionally did not divide the house up by space. Instead, I treated its location as a living environment. I sought to integrate this environment with its built-up surroundings by making the windows (the ones which don’t face other houses’ windows) as large as possible, so that one has a sweeping view of the neighborhood. The wind that passes between the neighboring houses will also be able to blow through this home. I defined the entrance and windows according to external factors. This resulted in significant changes to the in-house environment, so I arranged the basic living essentials to their right places accordingly: an island kitchen where one can cook with their back against the neighboring house's wall, while overlooking an alleyway; an island bathtub in the windiest section of the house; a shower booth in a shadowy area; a gently sloped stairway that makes one sense the existence of the next house’s wall; and storage spaces in dark areas. I designed the house dynamically, not methodologically. The actual living experience is three-dimensional and more fluid than what a ground plan can describe.
© Ippei Takahashi
高桥
当添加新材料时,我确保它将与已经存在的材料共存。通过这种方式,人们可以通过观察其结构和历史的积累来了解重建的房屋。例如,我在现有的木架上增加了加固梁,在房子的外部增加了窗框,以便暴露旧的柱子。
When adding new material, I ensured that it would coexist with what had already been there. This way, one can understand the reconstructed house by seeing the accumulation of its structure and history. For example, I added reinforced beams to the existing wooden frames, and window frames to the exterior of the house in order to expose old pillars.
直到现在,当我们计划住在城市,我们的生活通过梦想生活:理想的空间,庭院,城市的外观等等。然而,这个项目是为了在一个城市里争取一个更自由的生活环境。把自己投入到毫无目标的环境中,把它们看作是原始森林,激发你真正的身体感觉-就像你在荒野的小屋里度过一些夏日所发生的事情一样。
Until now, when we made plans to live in cities, we lived our lives by dreaming up fantasies: the ideal space, courtyards, the appearance of the city, etc. However, this project strives for a more liberated living environment in a city. Devote yourself to the aimlessly built-up surroundings, recognize them as being like a primeval forest, and spark your real body senses - just like what happens when you spend some summer days in a cottage situated in wild nature.
© Ippei Takahashi
高桥
Architects Takahashi Ippei Office
Location Tokyo, Japan
Category Houses
Area 47.68 sqm
Project Year 2014
Photographs Ippei Takahashi
Manufacturers Loading...
客服
消息
收藏
下载
最近















