查看完整案例


收藏

下载
© Soopakorn Srisakul
SosopakornSrisakul
架构师提供的文本描述。位于泰国北部城市清迈的MAIIAM当代艺术博物馆是一个欣欣向荣的艺术和文化中心。(鼓掌)
Text description provided by the architects. The MAIIAM Contemporary Art Museum, located in the northern Thai city of Chiangmai, a thriving art and cultural center, has been created to house an important private collection of Thai and regional art.
© Soopakorn Srisakul
SosopakornSrisakul
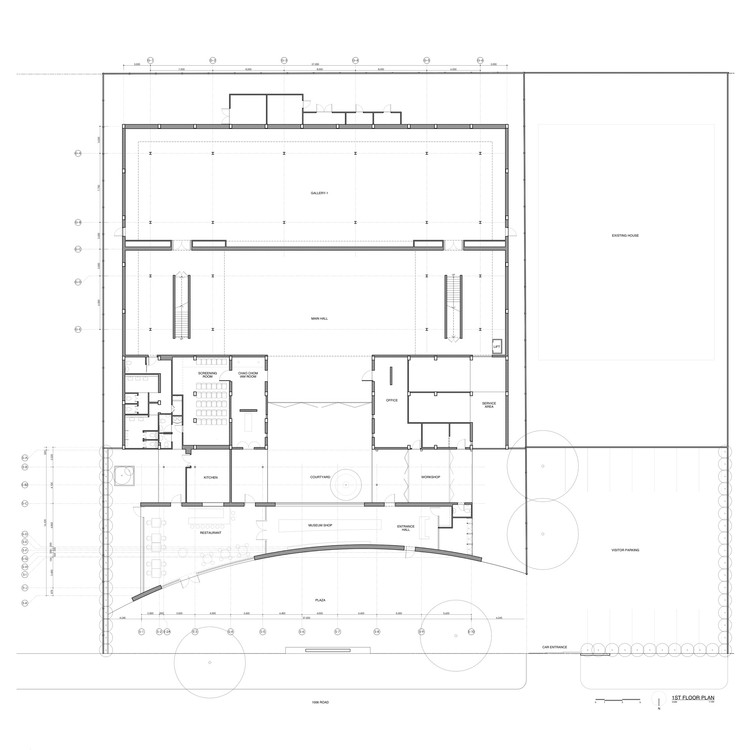
为了展示这些藏品,一个古老的仓库被戏剧性地改造成一个充满活力的空间,为各种各样的活动提供了一个便利的平台。在保持仓库的工业精神的同时,利用当地的材料创造了照亮和照亮室内空间的光井。除了画廊空间外,大楼的前部还设计了一个支持活动的部分。(鼓掌)
To present the collection, an old warehouse was dramatically transformed into a dynamic space that provides a well-facilitated platform for a wide range of activities. While the industrial spirit of the warehouse has been maintained, light wells that brighten and illuminate the interior space have been created with the use of local materials. In addition to the gallery space, a front section of the building was designed for support activities.
© Soopakorn Srisakul
SosopakornSrisakul
© Soopakorn Srisakul
SosopakornSrisakul
© Soopakorn Srisakul
SosopakornSrisakul
从外观上看,博物馆立即引起了人们的注意,因为主门面上覆盖着数千块反射光线的小装饰镜子砖,这是一种受泰国传统寺庙建筑启发的装饰技术。然而,在这里,新的安装技术已经被应用于创建探索当代艺术表现的瓷砖图案。反光有助于将墙壁溶于周围环境,反之亦然,同时又以建筑的轻盈吸引路人的注意。
From the exterior, the museum immediately draws attention because the main façade is clad with thousands of small, decorative mirror tiles that reflect light, a decorative technique inspired by traditional Thai temple architecture. However, here new techniques of installation have been applied to create tile patterns that explore contemporary art expressions. The reflections help to dissolve the wall into the surroundings and vice versa, while at the same time, calling the attention of passersby with the lightness of the architecture.
© Soopakorn Srisakul
SosopakornSrisakul
Architects all(zone)
Location Chiang Mai, Mueang Chiang Mai District, Chiang Mai, Thailand
Category Museum
Architect in Charge Rachaporn Choochuey, Sorawit Klaimak, Asrin Sanguanwongwan, Aroonrod Supreeyaporn in collaboration with Sarin Nilsonthi
Area 3330.0 sqm
Project Year 2016
Photographs Soopakorn Srisakul
Manufacturers Loading...
客服
消息
收藏
下载
最近



































