查看完整案例


收藏

下载
© Antonio Aros Dominguez
c Antonio aros Dominguez
架构师提供的文本描述。这一设计是圣贝纳多县一座住宅建筑群的销售点,这是一项部署在一个大型人工泻湖周围的总体计划的一部分。
Text description provided by the architects. This design is a point of sales for a residential complex in San Bernardo County, part of a master plan deployed around a big artificial lagoon.
其意图是传达一种休息、娱乐和放松的感觉,从露台上提供清晰的视图,以便在整个维度中思考泻湖。从远处看,这座建筑物是看不见的,但却不是景观中的一种破坏因素。为了做到这一点,建造了一个更高的体积,以作为参考点从距离-在白天和夜间-和捕捉自然光。
The intention was to convey a sensation of rest, recreation and relaxation, providing clear views from the terrace in order to contemplate the lagoon in its entire dimension. The building had to be seeable from the distance yet not be a disruptive element in the landscape. In order to do so, a higher volume was built to serve as reference point from the distance –in daylight and nighttime- and to capture natural light.
© Antonio Aros Dominguez
c Antonio aros Dominguez
该涂料主要是木制的,创造了友好和不太商业化的外观,并邀请广大公众近距离体验。透明的景观是开放的泻湖,主要的视觉吸引力在现场,并没有直接看到泻湖的正面是不透明的。然而,屋顶上的窗户允许光线为室内提供满足和自然亮度。
The coating is mainly wooden, creating a friendly and not-too-commercial look, and inviting general public to a close experience. Transparent views are open to the lagoon, the main visual attraction in the scene, and facades that do not have direct view to the lagoon are opaque. However, the window on the roof allows light to provide contentment and natural luminosity to the interior.
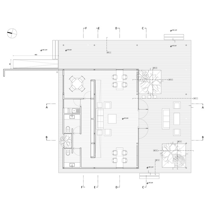
Floor Plan
这里有支持销售的基本领域,卖家向客户传递项目的温暖和宁静,总是能清晰地看到泻湖及其周围环境。盖子有空白处,将景观和建筑结合在一起,旨在延长环礁湖周围开发的景观美化项目。
There are basic areas to support sales, where sellers transmit to clients the warmth and tranquility of the project, always with clear views to the lagoon and its surroundings. The cover has blank spaces that merge landscape and architecture, and are intended to be a prolongation of the landscaping project developed around the lagoon.
© Antonio Aros Dominguez
c Antonio aros Dominguez
这里有一个完整的后台办公空间,也有供卖家和客户使用的卫生间,花园也是景观的一部分,在项目的每一个地方都有景观。最后,定义了儿童游乐区、行人专用道和停车场。
There is a back office space in all its length, as well as restrooms for sellers and clients, where gardens are also part of the view, incorporating landscape in every place of the project. Finally, children’s play areas are defined, along with pedestrian tracks and a parking lot.
© Antonio Aros Dominguez
c Antonio aros Dominguez
Architects Fones Arquitectos
Location San Bernardo, San Bernardo, Región Metropolitana, Chile
Category Showroom
Architect in Charge Nicolás Fones Claro
Collaborators Architect Antonio Aros Dominguez
Area 100.0 sqm
Project Year 2015
Photographs Antonio Aros Dominguez
客服
消息
收藏
下载
最近

































