查看完整案例


收藏

下载
易高案例
项目名称:曲江大城 • 华宸
项目风格:现代简约
项目面积:215㎡
主案设计:武登高
设计团队:王磊
本案215㎡,现代简约风双层住宅,实现高效与舒适并存的全新生活场。一层动区整合客厅、餐厅、厨房,视野通透,互动无碍。引光纳景,极大拓展了空间感,完美满足家庭聚会、社交待客等多种需求。二层规划为静谧的休憩空间,配置多间独立卧室,套房式设计,保障家庭成员的个人隐私与休憩质量,营造专注、放松的安宁氛围。通过清晰的功能划分、简约的线条与自然光影的运用,于家中内塑造出一个理性与温情交织的现代家居范本。
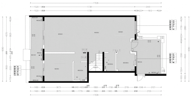
一层平面图
平面布局图
▲门厅
归家,纯白门厅借巨幅开窗,引光为景。一体式长凳沿窗舒展,既延伸了视觉的尺度,亦提供一方停留的从容。内置收纳柜以简约笔触,将琐碎悄然藏纳,只余满室澄净与开阔。此地是光与影的舞台,更是心归家的第一重呼吸。
▲西厨 ▲西厨
▲餐厅
▲厨房 家始于味蕾的邀约。以一道时尚吧台,拉开居家生活的舞台序幕。它既是简约的西厨核心,亦是分享美味的社交前站。餐厅与之比邻而设,沟通无界,笑语欢声随时交融。空间色调纯净,线条利落,让美食与陪伴,成为此刻最动人的风景。
▲客厅
▲客厅
▲茶区
客厅开阔,以轻巧沙发为界,后方自成一方清静茶席。谈笑风生与静心品茗,在此和谐相融,勾勒出家的包容气度。悬浮电视背景墙,以现代笔法破除沉闷,让视觉呼吸。壁炉跃动的暖意,是空间中无声的诗意与温度焦点。空间大量留白,不为装饰所累,于此,会客、独处、沉思,皆能从容自得。
▲客卫
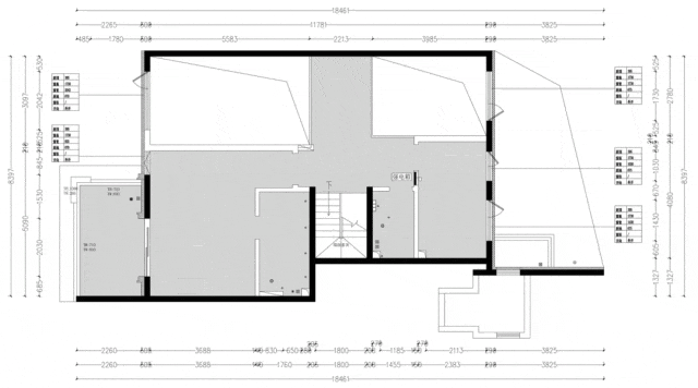
二层平面图
平面布局图
▲多功能区
▲女儿房
▲女儿房卫生间
▲女儿房衣帽间
▲主卧
▲主卫
▲主卧衣帽间
二楼,两间套房,守护两份静谧时光。女儿房,素色为底,勾勒出温柔淡泊的日常。开放式展架与书桌一体相连,收藏心爱之物,也安放阅读与思考的时光。落地窗畔,光影流转,见证成长。主卧,则是一处回归本真的精神自留地。将所有收纳隐于独立衣帽间,令休憩区域愈发纯粹、空旷。巨大的落地窗将天空与风景纳入私域,只为让睡眠与放松,毫无羁绊。在同一片屋檐下,都能找到属于自己的完美世界。
关于设计师
武登高
中国室内注册设计师
注册号:ZB20803174
毕业院校:西安美术学院
设计理念:用艺术的眼光雕琢生活
设计风格:中式 简约 欧式极简
从业时间:19年
易高国际创始人、设计总监
2017年瑞典色彩学院 色彩专业结业
2004年--2010年北京元洲装饰首席设计师
2011年--2013年陕西九朝装饰首席设计师
2013年至2016年北京峰上大宅装饰专家设计师
2009美化家居设计大赛三等奖
2011获陕西省优秀设计称号
2012筑巢杯设计大赛优秀设计奖
2013住宅装饰行业优秀设计师
2014住宅装饰行业优秀设计师
2015第三届【锋尚·京瓷杯】新中式设计大赛最佳功能布局奖
2016第三届中国建筑装饰设计艺术作品展获铜奖
2017居然顶层精英设计师
2017年中国(陕西)设计杰出青年
2017第四届峰尚杯新中式设计大赛 最佳方案奖
2017首届禾记万佳杯设计设计大赛优秀奖
2017创意生活设计金蝴蝶奖
2017商业旅游地产年度优秀住宅公寓设计师
2017评选为亚太空间艺术大师
2018金楠奖设计大赛优秀奖
2018获得第二届西安建筑装饰设计“青年设计师领袖”称号
2018设计作品《中海百贤府》获得第二届西安建筑装饰设计别墅类银奖
2018设计作品《龙湖香醍》获得第二届西安建筑装饰设计样板间设计优秀奖
2019金堂奖全国百强先锋榜百强设计师
2019年度腾讯家居搜狐焦点家居杰出设计师
2019德国高仪住宅精英榜TOP108匠
2019蒂森克虏伯杯别墅设计大赛经典设计奖
2019第三届西安建筑装饰设计奖“年度青年设计师领袖”
2020中国设计新青年评选“城市举荐官”
2020设计作品《石中木》获得陕西地区优秀住宅软装设计
2021-2022中国新地产设计大会年度优秀别墅设计师
2021金住奖-中国百杰居住空间设计师
2022中国国际空间设计大赛十佳设计师
成功案例:中华世纪城紫薇臻品 白桦林居 中海华庭 中海国际 紫薇融侨 就掌灯 中海东郡 曲江公馆 曲江尚林苑 曲江兰亭 曲江华府 枫林意树 湖城大境 中海铂宫 中海百贤府 紫汀苑 紫楹台曲江和园 中海曲江大城 ......
客服
消息
收藏
下载
最近






















