查看完整案例


收藏

下载
易高案例
项目名称:曲江大城 • 雍宸
项目风格:现代简约
项目面积:400㎡
主案设计:武登高
设计团队:王磊
本案400㎡,用现代简约的笔触,勾勒出生活蓝图。整个家遵循“减繁取简”的智慧,以流畅的线条、纯粹的色彩和通透的光影,营造出高级而宁静的氛围。四层空间,层层递进,功能分明,让家庭的热闹与宁静互不干扰,最终融合为一个既包容共聚的欢愉、又尊重个体独立的理想家容器。
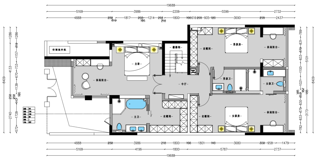
一层平面图
平面布局图
▲门厅
▲餐厅
▲餐厅
▲厨房
推门而入,是一座兼具仪式与功能的岛台宛若空间的定音锤,以流畅的线条纵向延伸,悄然引导视线与动线。一侧是便捷体贴的水吧台,为日常注入即时的新鲜感;一侧是高效整洁的烹饪区,承载着人间烟火的温度。与岛台自然相连的用餐区域,布局一气呵成,勾勒出家人团聚的核心场域。整个空间在自然光的浸润下,呈现出一种细腻而温润的质感。
▲客厅
▲客厅
▲客厅
客厅将极简主义贯彻得更为彻底,这里没有任何多余的装饰,只有空间、光影与材质的纯粹对话。色彩延续着整体的温润基调,大片留白的墙面与浅淡的地面构成了宁静的底色,宛若一张素雅画布。这里不仅是客厅,更是一个让人卸下纷扰、回归本心,专注于与家人相伴或自我对话的精神容器。
▲老人房
▲老人房卫生间
▲客卫设于一楼的老人房,以无微不至的考量,为长辈营造了一处安稳静谧的休憩之境。房间延续了整体的素雅基调,柔和的浅色墙面烘托出宁静淡泊的氛围。专属的阳台,引景入室的同时,也提供了怡情养性的私属角落;室内配备的独立卫生间,则极大地提升了生活的便利。
二层平面图
平面布局图
▲男孩房
▲男孩房卫生间
▲女孩房
▲女孩房卫生间
▲主卧
▲主卧
▲主卧衣帽间
▲主卫 二楼作为家庭的静谧栖息层,集女儿房、男孩房与主卧于此,为每位家人构筑了独立且舒适的私属天地。女儿房与男孩房在延续整体简约风格的同时,可依据个性注入柔美或活泼的细微笔触。主卧则尤为亮眼,将原本的阳台空间巧妙改造为一个步入式阳光衣帽间,不仅赋予了储物功能以轻盈通透的仪式感,更让日常更衣成为沐浴在自然光影下的享受。这里,既是身体休憩的港湾,也是情感凝聚的温暖场域,在极简的框架下,包裹着量身定制的妥帖与关怀。
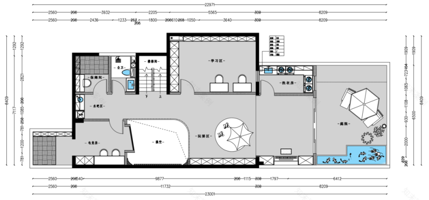
负一平面图
平面布局图
▲负一过道
▲亲子互动区
▲亲子互动区
▲亲子互动区
负一层巧妙利用靠近采光井的优越位置,打造了一处充满阳光与温情的亲子互动区。柔和的光线从天窗倾泻而下,与精心布局的漫射灯光交织,共同营造出温暖而不刺眼的明亮氛围。这里不仅是孩子们自由探索与游戏的乐园,更是家人陪伴成长、共度亲密时光的温暖角落,在柔和的光影与井然的秩序中,记录下欢声笑语的每一刻。
▲洗衣房
▲书房
▲电竞房
▲电竞房
▲卫生间规划高效满足多元需求的功能复合区。沉浸感十足的电竞房,静谧的书房,巧妙的洗衣房。这三个功能各异的空间紧凑布局,动静分离,共同构成了一个既服务于个人爱好与工作,又无缝衔接家庭日常的高效后勤站,让负一层的生活场景更加丰满而实用。
负二平面图
平面布局图
▲负二门厅
▲负二茶室 ▲负二茶室
▲负二影音室
▲负二卫生间 负二层,作为家的另一个从容入口,完美诠释了现代家的待客之道。一侧是沉浸式影音室,一侧则是氛围轻松的休闲会客区,两个区域既相对独立又彼此呼应,共同构成一个远离主生活区的社交娱乐核心。
关于设计师
武登高 中国室内注册设计师 注册号:ZB20803174 毕业院校:西安美术学院 设计理念:用艺术的眼光雕琢生活 设计风格:中式 简约 欧式极简 从业时间:19年
易高国际创始人、设计总监
2017年瑞典色彩学院 色彩专业结业
2004年--2010年北京元洲装饰首席设计师
2011年--2013年陕西九朝装饰首席设计师
2013年至2016年北京峰上大宅装饰专家设计师
2009美化家居设计大赛三等奖
2011获陕西省优秀设计称号
2012筑巢杯设计大赛优秀设计奖
2013住宅装饰行业优秀设计师
2014住宅装饰行业优秀设计师
2015第三届【锋尚·京瓷杯】新中式设计大赛最佳功能布局奖
2016第三届中国建筑装饰设计艺术作品展获铜奖
2017居然顶层精英设计师
2017年中国(陕西)设计杰出青年
2017第四届峰尚杯新中式设计大赛 最佳方案奖
2017首届禾记万佳杯设计设计大赛优秀奖
2017创意生活设计金蝴蝶奖
2017商业旅游地产年度优秀住宅公寓设计师
2017评选为亚太空间艺术大师
2018金楠奖设计大赛优秀奖
2018获得第二届西安建筑装饰设计“青年设计师领袖”称号
2018设计作品《中海百贤府》获得第二届西安建筑装饰设计别墅类银奖
2018设计作品《龙湖香醍》获得第二届西安建筑装饰设计样板间设计优秀奖
2019金堂奖全国百强先锋榜百强设计师
2019年度腾讯家居搜狐焦点家居杰出设计师
2019德国高仪住宅精英榜TOP108匠
2019蒂森克虏伯杯别墅设计大赛经典设计奖
2019第三届西安建筑装饰设计奖“年度青年设计师领袖”
2020中国设计新青年评选“城市举荐官”
2020设计作品《石中木》获得陕西地区优秀住宅软装设计
2021-2022中国新地产设计大会年度优秀别墅设计师
2021金住奖-中国百杰居住空间设计师
2022中国国际空间设计大赛十佳设计师
成功案例:中华世纪城紫薇臻品 白桦林居 中海华庭 中海国际 紫薇融侨 就掌灯 中海东郡 曲江公馆 曲江尚林苑 曲江兰亭 曲江华府 枫林意树 湖城大境 中海铂宫 中海百贤府 紫汀苑 紫楹台曲江和园 中海曲江大城 ......
客服
消息
收藏
下载
最近








































