查看完整案例


收藏

下载

翻译
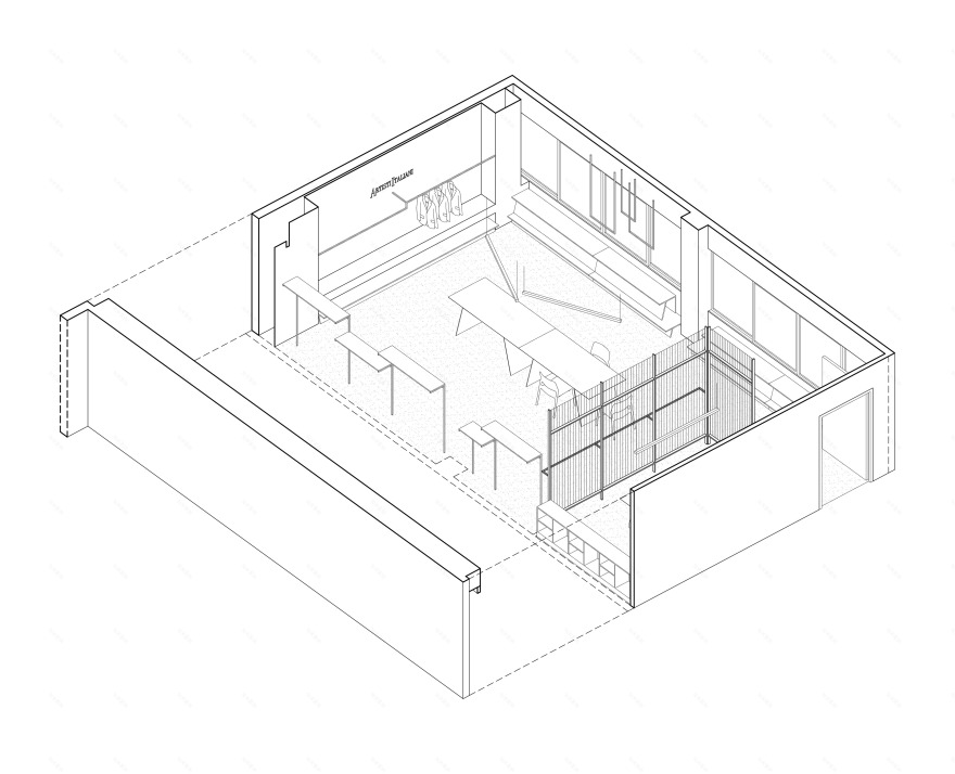
‘Artisti Italiani’ is a Greek clothing and accessories brand that has experienced its golden era since the mid- ‘80s and throughout the ‘90s. The current managers of the men’s clothing department decided to create a new showroom, which would act as a ‘hub’ for retailers from all over the country. Space is housed along with the company's offices and storage in a small industrial building in central Athens.
The design approach was driven by the need for a space ‘provoking’ a refreshed visual stimulus for the image of the brand while maintaining an implementation within a predetermined budget.
The identity of the space is shaped as a black-and-white composition of forms, materials and textures under ‘clear’ geometries. The black surfaces, such as hangers, shelves, benches, and worktables, delimit the operating zones of the space, while the white ones act as the neutral backdrop for displaying the products. Space is divided into two unequal subsets by a light metal framework with a semi-perforated, handmade, bespoke macramé, consisting of 6500 knots.
The existing old terrazzo mosaic floor was thoroughly cleaned from the dirt deposited on its surface over time. It was then polished until the desired result was achieved, making it a powerful and vibrant element of the composition, as it possesses clarity and homogeneity in its aggregates materials.
客服
消息
收藏
下载
最近















