查看完整案例


收藏

下载

翻译
Raemian gallery
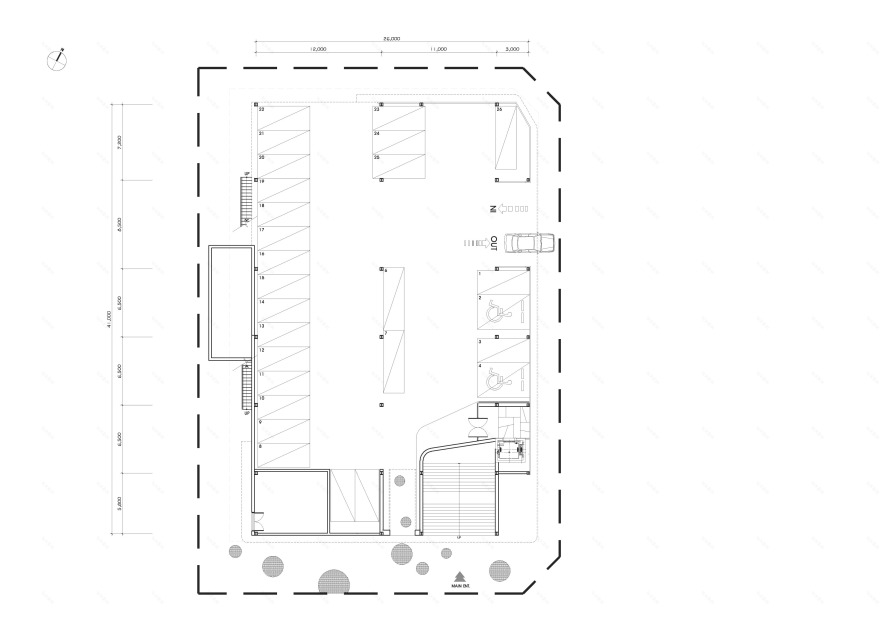
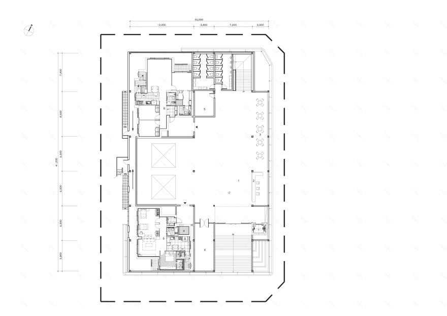
Model House system of Construction Company is a very unique program that only exists in Korea. It is constructed in short period of time to help parceling out and gets demolished after certain period. This is a space program with the shortest life span. The enormous expense and waste resources made us focus on how to continue the brand image while lessening the environmental burden through consuming program, model house. The method we selected is to use 'Recyclable plastic façade system.'It connects 7 different polycarbonate blocks to construct 3m x 3m module (this size is designed for 4.6 ton truck to carry 6 modules at a time) and while the site is working on foundation work, the modules can be constructed in factory, delivered to the site, and gets installed for fast construction. After remaining period, it gets demolished and delivered to the next job site. As it minimizes the construction waste and recycles, it is considering environment and emphasize the brand identity by applying consistent system to the model house instead of different design. Constructed 3D façade pattern is using the same image but in fact, it is not the same pattern. It is mass produced part, but the installation direction of mosaic modules on the site is not the same. 3m x 3m modules, which are designed to share the same section profiles, rotate 90 degrees on installation and thus, it creates differentiation while maintaining the unity. Strictly speaking, the façade of Gimpo, Anyang, and newly proceeding Raemian Gallery of Samsung dong are different from duplication, and they will have their own pattern on each site.
客服
消息
收藏
下载
最近











































