查看完整案例


收藏

下载
易高案例
项目名称:曲江大城•雍宸
项目风格:现代简约
项目面积:230㎡
主案设计:武登高
深化团队:叶阿强
项目专员:王宇
本案230㎡,卸下城市的喧嚣,步入一方温润的木色世界。是生活,更是心境的开阔。时光在这里仿佛也放慢了脚步,留下光与影的诗意对话。现代简约的笔触,剔除繁杂,只留下最本真的线条与功能。空间因此变得通透、自由,让呼吸都带着从容。这里,不只是居所,更是安放身心的精神栖居。
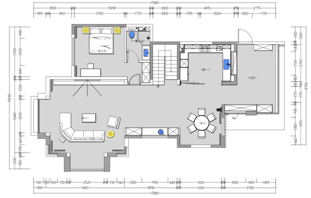
一层平面图
平面布局图
▲入户
▲入户 独立门厅,灰色地面与深木色柜体沉稳对话,整面采光窗将自然光邀入室内。每一次归家,从步入这一刻起,喧嚣便被过滤,心境也随之从容过渡。
▲餐厅
▲餐厅
▲餐厅 归家第一眼,餐厅便映入眼帘。圆桌与环形吊灯上下呼应,勾勒出家的向心引力。玻璃推拉门巧妙隔断厨房,视线得以延伸,与木饰面墙面共同围合出一个开阔而温馨的餐食空间。
▲客厅
▲客厅
▲客厅
客厅以弧形灰色沙发柔化空间,后方点缀小型休闲桌,构成灵动一景。木饰面从墙面延展,温润包容,于简约中勾勒出松弛与暖意,围合出家的归属感。
▲主卧
▲公卫
卧室摒弃所有冗余,仅以灰白纯色为境,一床安放中心。空间回归至简本质,只为沉静与酣眠而生,让每一夜都成为身心的深度回归。
二层平面图
平面布局图
▲二楼中厅
▲休闲区
二楼公区,以一处便捷水吧台为核心,衍生出专属的休闲角落。这里是家的情感枢纽,陪伴、互动、小憩在此自然发生,于日常中记录着亲子的温暖点滴。
▲女孩房
▲男孩房
▲男孩卫两个儿童房各具个性,却同样以大面积留白为未来预留想象。空间如同可自由生长的画布,尊重每个阶段的喜好变迁,陪伴孩子书写独一无二的成长故事。
▲主卧
▲主卧
▲主卫
步入主卧,玄关借景成画,悄然界定内外。室内摒弃冗余,以极简笔触回归休憩本质。衣帽间、卫生间与休憩区依序排布,动线流畅如律,共同构筑起一个功能与静美并存的私密秩序。
关于设计师
武登高 中国室内注册设计师 注册号:ZB20803174 毕业院校:西安美术学院 设计理念:用艺术的眼光雕琢生活 设计风格:中式 简约 欧式极简 从业时间:19年 易高国际创始人、设计总监
2017年瑞典色彩学院 色彩专业结业
2004年--2010年北京元洲装饰首席设计师
2011年--2013年陕西九朝装饰首席设计师
2013年至2016年北京峰上大宅装饰专家设计师
2009美化家居设计大赛三等奖
2011获陕西省优秀设计称号
2012筑巢杯设计大赛优秀设计奖
2013住宅装饰行业优秀设计师
2014住宅装饰行业优秀设计师
2015第三届【锋尚·京瓷杯】新中式设计大赛最佳功能布局奖
2016第三届中国建筑装饰设计艺术作品展获铜奖
2017居然顶层精英设计师
2017年中国(陕西)设计杰出青年
2017第四届峰尚杯新中式设计大赛 最佳方案奖
2017首届禾记万佳杯设计设计大赛优秀奖
2017创意生活设计金蝴蝶奖
2017商业旅游地产年度优秀住宅公寓设计师
2017评选为亚太空间艺术大师
2018金楠奖设计大赛优秀奖
2018获得第二届西安建筑装饰设计“青年设计师领袖”称号
2018设计作品《中海百贤府》获得第二届西安建筑装饰设计别墅类银奖
2018设计作品《龙湖香醍》获得第二届西安建筑装饰设计样板间设计优秀奖
2019金堂奖全国百强先锋榜百强设计师
2019年度腾讯家居搜狐焦点家居杰出设计师
2019德国高仪住宅精英榜TOP108匠
2019蒂森克虏伯杯别墅设计大赛经典设计奖
2019第三届西安建筑装饰设计奖“年度青年设计师领袖”
2020中国设计新青年评选“城市举荐官”
2020设计作品《石中木》获得陕西地区优秀住宅软装设计
2021-2022中国新地产设计大会年度优秀别墅设计师
2021金住奖-中国百杰居住空间设计师
2022中国国际空间设计大赛十佳设计师
成功案例:中华世纪城紫薇臻品 白桦林居 中海华庭 中海国际 紫薇融侨 就掌灯 中海东郡 曲江公馆 曲江尚林苑 曲江兰亭 曲江华府 枫林意树 湖城大境 中海铂宫 中海百贤府 紫汀苑 紫楹台曲江和园 中海曲江大城 ......
客服
消息
收藏
下载
最近
























