查看完整案例


收藏

下载

附件

翻译
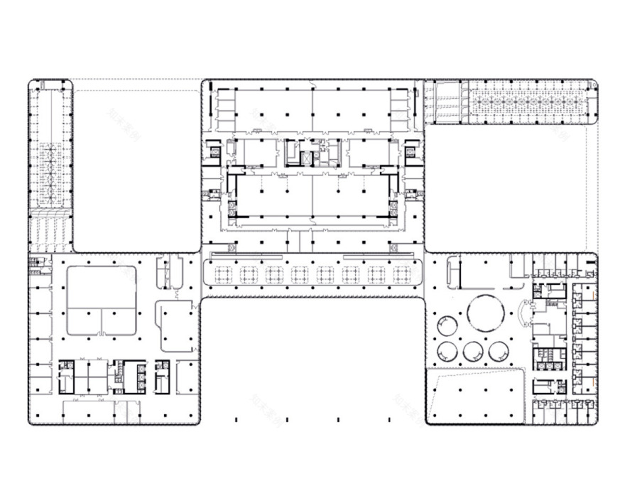
China’s largest insurance company, China Life Insurance Company, has moved into its new Data Center in Shanghai-Pudong. After a design and construction period of six years – which is on the long side for China – the complex designed by architects von Gerkan, Marg and Partners (gmp) was completed in June. The interior design was also mostly created by gmp. The objective of the design was to convey, through the architecture, two important qualities which should be associated with a large insurance company: on the one hand, qualities such as trustworthiness, reliability, longevity and customer orientation, and on the other hand, the fact that the company uses data processing and state-of-the-art technology – i.e. that it is equipped for the future. The project comprises 80,000 square meters of gross floor area and, in three buildings, accommodates offices and hotel and conference functions around the Data Center at the heart of the insurance complex. The functions are grouped into three succinct rectangular building volumes which relate to each other in a dynamic way, such that the open spaces in between are defined as generous entrance areas and inner courtyards. Towards the outside, the ensemble is presented as one unit by virtue of a plinth structure which – partly with several stories and partly dissolved into bands – frames the buildings, the entrance plaza and the landscaping. While this signals data security and confidentiality, specially designed openings to the courtyards create an atmosphere of openness, transparency and customer accessibility in several directions. On the other hand, the emphasis on the glass envelope with its horizontal stepped bands highlights the technological symbolism, as it resembles the characteristic lines and offsets on the printed circuit boards of computers. The ensemble is given its unique character by the horizontally structured box-type window façade of white and transparent glass strips that links all the building volumes and open spaces, creating a sense of uniformity.
客服
消息
收藏
下载
最近












