查看完整案例


收藏

下载
房屋,阿根廷科尔多瓦
设计师:Estudio Opaco
面积: 420 m²
年份:2020
供应商: Indusparquet, Patagonia Flooring, ANODAL, Edificor, Hunter Douglas, Industria Interior, JOHNSON, Julia Sol, Maestre, Maretich, Mercedes Costal, PHI Domotica, Pez, Portobello, Silestone
主管合伙人建筑师:Pascuale Franco, Ordoñez Rosario
设计团队:Pascuale Franco, Ordoñez Rosario
城市:科尔多瓦
国家:阿根廷
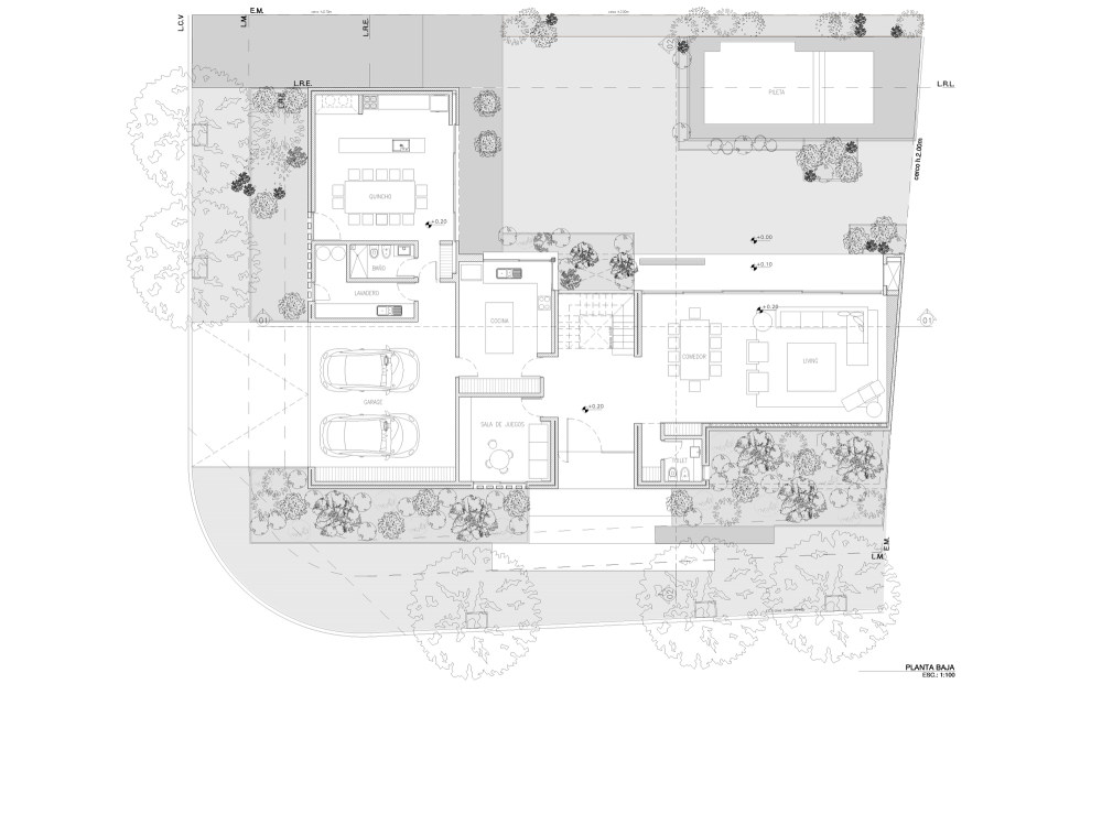
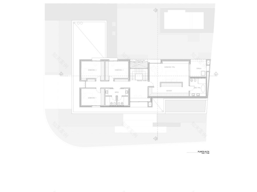
Located on a corner lot, in front of a historic school, and with a lot of exposure, we sought to protect the house from the outside and open it completely to the inside. It was planned on two levels, a ground floor for the social area and an upper floor for the private area.
On exteriors, brick prevails for the entire envelope, even being used as a screening to intensify the aforementioned privacy. Concrete is another element that appears both on the outside and inside with the intention of creating a home that will last over time without the need for great maintenance and respecting the environment and its location.
Inside, we sought to generate spacious and bright spaces that accompany the life of this young family. Wood in floors, furniture, coatings, and ceilings is the element that unites and gives warmth, its use is repeated in all rooms of the house.
In the entrance and distribution hall, we are embraced by a completely open staircase to the garden that allows it to become part of the home and erase that limit between the inside and the outside. All the main environments surround the garden and the pool and the kitchen is located as a nexus point between them.
In the private part of the house, two wings were created, one for children and one for parents with their own terrace. The spaces were designed to adapt to the changes that the family will go through as their children grow up and their needs change.
项目完工照片 | Finished Photos
设计师:Estudio Opaco
分类:Houses
语言:英语
客服
消息
收藏
下载
最近












































