查看完整案例


收藏

下载
项目基地位于Tribeca东部历史城区,由1938年第六大道扩建产生,呈不规则形状。100 Franklin项目为两栋建于一层商业空间之上的三角形住宅楼。南楼有六层,包含三个平层住宅单元和一间带有私人屋顶的联排顶层公寓;北楼有八层,由五个平层住宅单元和一间顶层公寓组成。项目的业主DDG Partners,同时也是项目的设计师、开发商和承包商。
Located in the Tribeca East Historic District on an irregular shaped site created by the extension of Sixth Avenue in 1938, 100 Franklin is two triangular ground-up residential buildings constructed over ground-floor commercial space. The South building at six floors, has three full-floor units and a duplex penthouse with a private roof level and the North building with eight floors has five full-floor units and a duplex penthouse. The client, DDG Partners, acted as designer, developer, and contractor for the project.
▼项目外观,external view of the project ©Robert Granoff
建筑将新与旧融合在一起,展示了现代建筑如何能够立于历史街区之中。项目立面由手工砌制的砖块组成,在古典的高品质石材中植入了现代建筑细部。
The building marries old and new, demonstrating how a modern building can be created in a historic district. The project features a hand-laid brick façade with classically inspired masonry combined with modern architectural detail.
▼新与旧的融合,combination of old and new ©Robert Granoff
项目沿Franklin和第六大道的立面长度超过76米,设计希望将光照最大化,并且获得最好的朝向Tribeca历史街区的景观。立面将丹麦式手工烧制的砖块与意大利式的木框窗结合在一起。入口、窗户和建筑衔接处的手砌砖块造型富有表现力,这些细节有时让结构显得厚重扎实,有时则体现出轻盈的、去物质化的感受。
The buildings have over 250 feet of façade along Franklin and Sixth Ave and seek to maximize light and views of the historic Tribeca neighborhood. The façade features a mixture of Danish hand-fired with large Italian wood framed windows. The hand laid brick is employed expressively around entry points, windows and points where the buildings merge together. These details at times making the structure feel weighty and grounded while from other perspectives it is light and dematerializes.
▼近景,丰富的砖砌立面,closer view of the building with brick facade of rich patterns ©Palette Architecture
▼入口处富有表现力的砖拱,expressive hand-laid bricks at the entrance © 上:Robert Granoff,下:Palette Architecture
▼建筑连接处的砖砌结构,brick structure at the points where the buildings merging together ©Robert Granoff
▼现代材料与砖块的衔接,combination of modern materials and the bricks ©Palette Architecture
▼立面细部,facade details ©Robert Granoff
居住单元的面积从140到344平米不等,由两室也有三室。每个居住单元都占据了一整个楼层,可通过电梯直接进入。单元的平面设计旨在效率最大化,并且在三角形空间中创造出开放的感觉。巨大的窗户和浅色松木地板将空间的轻盈感和空气感表现到了极致。
The units are a mix of two and three-bedroom units that range from 1,400 to 3,700 s.f. Each unit is a full-floor and is accessed directly from the elevator. Layouts were designed to maximize the efficiency and open feeling of the triangular layouts. Large windows and the light tone Larch wood flooring were selected to maximize the sense of light and airiness in the units.
▼建筑入口空间,entrance space of the building ©Robert Granoff
▼住宅单元室内,大窗户和浅色地板形成通透轻盈的感觉 interior of the living units, large windows and light toned flooring creating a light and transparent feeling ©Robert Granoff
▼从住宅的各个空间都可以欣赏历史街区的景观,the historic district can be seen from every corner of the units ©Robert Granoff
▼书房,study ©Robert Granoff
▼卧室,bedroom ©Robert Granoff
▼最大化三角形平面的使用效率,maximize the efficiency of the triangular layout ©Robert Granoff
▼顶层公寓内的楼梯,staircase in the penthouse ©Robert Granoff
▼浴室和盥洗池,bathroom and washing basin ©Robert Granoff
▼私人屋顶露台,private roof terrace ©Robert Granoff
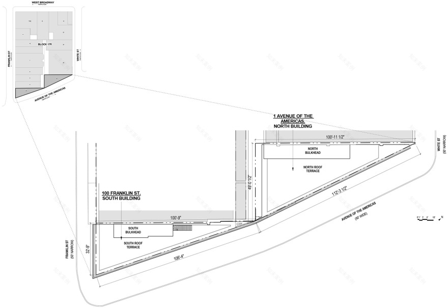
▼总平面图,site plan ©Palette Architecture
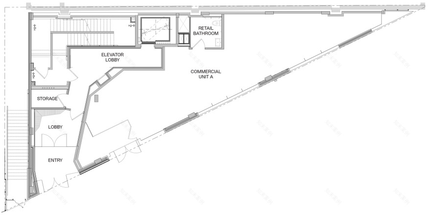
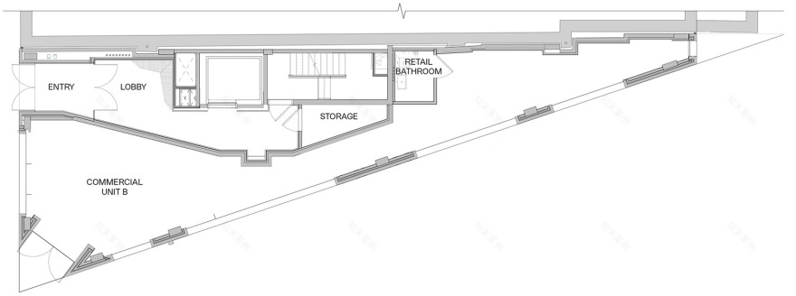
▼北楼首层平面图,ground floor plan of the North Building ©Palette Architecture
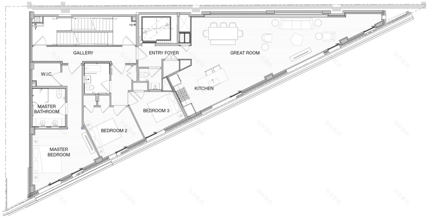
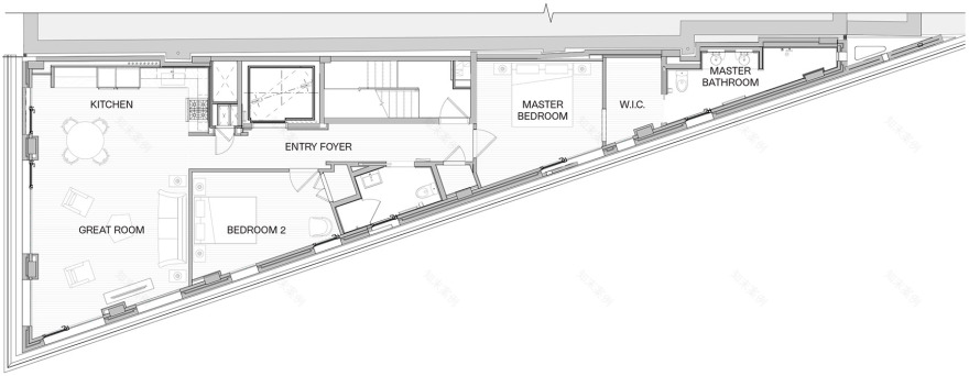
▼北楼标准层平面图,typical floor plan of the North Building ©Palette Architecture
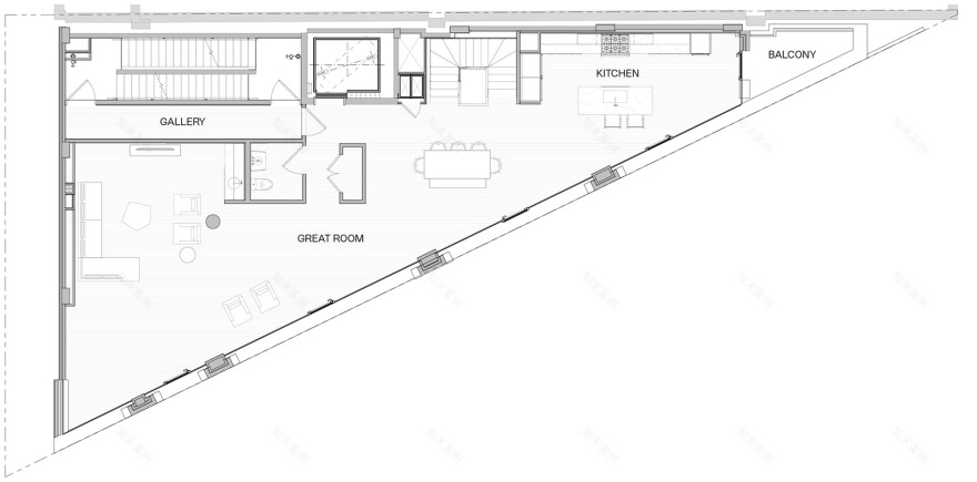
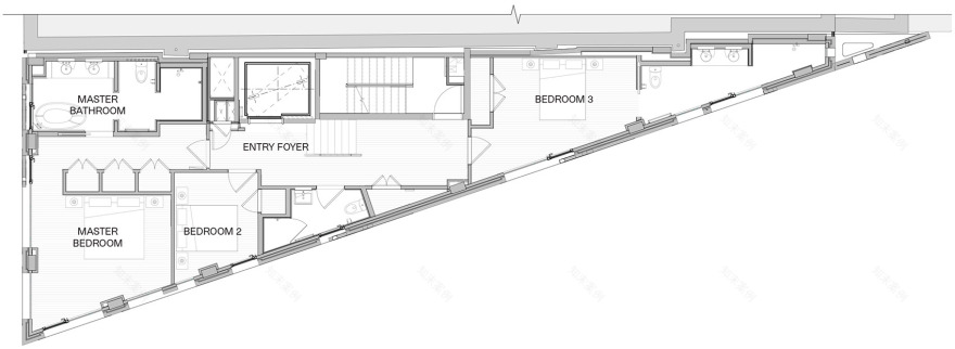
▼北楼顶层公寓平面图,plan of the penthouse of the North Building ©Palette Architecture
▼南楼首层平面图,ground floor plan of the South Building ©Palette Architecture
▼南楼标准层平面图,typical floor plan of the South Building ©Palette Architecture
▼南楼顶层公寓平面图,plan of the penthouse of the South Building ©Palette Architecture
▼北楼了立面图,elevation of the North Building ©Palette Architecture
▼南楼立面图,elevations of the Sought building ©Palette Architecture
▼剖面图,sections ©Palette Architecture
Completion Year: 2020 Gross Built Area (m2/ ft2): 30,000 s.f. Project location: New York Program: Residential with ground-floor commercial
客服
消息
收藏
下载
最近







































































