查看完整案例


收藏

下载
本案改造的住宅是一套由砖混结构组成的跨楼层单元。设计师希望在设计中尝试更多的工艺和实验。在布局上,卧室应在 110 平方米内尽可能压缩,客厅和活动室的面积应尽可能扩大。
▼一层客厅,living room on the first floor © 孙海霆
The house is a set of split-level units composed of brick-concrete structure. We hope to try more crafts and experiments in the design. In terms of layout, the bedroom should be compressed as much as possible, and the area of the living room and activity room should be expanded as much as possible.
▼轴测图,axon© 在造建筑
打开厨房的墙壁,然后将其变成开放式厨房。使用便宜的透明 pvc 窗帘隔离油烟。悬臂式无支撑黑胡桃木椭圆形餐桌嵌在粗糙的砖墙结构柱中,连接厨房工作台和客厅,位于入口玄关处,一个空间结合了多种功能,为客厅腾出更多空间。
We Opened the walls of the kitchen and turn it into an open kitchen. Use common cheap transparent PVC curtains to isolate oily smoke. The cantilevered unsupported black walnut oval dining table is embedded in the rough brick wall structure column, connecting the kitchen workbench and the living room, and is located in the entrance. A space combines multiple functions to make more space in the living room.
▼一层客厅悬挑桌子,the cantilevered dining table© 孙海霆
▼一层厨房 PVC 拉帘,the PVC curtains in the kitchen© 在造建筑
浴室墙壁嵌入一个船用的舷窗,以在不损坏结构的情况下引入光线和空气。阳台卧室的玻璃砖墙壁砌筑成弧形,弧形改变了客厅方整的角落,给客厅带来异质感,玻璃砖墙隐藏了阳台的进深,使客厅显得更大。弧形玻璃砖墙上开了一个木框长窗。木窗板是四扇折叠式实木面板,可以转换为朝内悬挑的桌面。
A ship porthole is embedded in the bathroom wall to introduce light and air without damaging the structure. The glass brick wall of the balcony bedroom is built into an arc, which changes the square corner of the living room and brings a different feeling to the living room. The glass brick wall hides the depth of the balcony and makes the living room appear bigger. A wooden framed long window was opened on the curved glass brick wall, and the wooden window panels are four folding solid wood panels, which can be converted into a table top that cantilever inward.
▼一层玻璃砖阳台卧室,theglass brick wall of the balcony bedroom© 孙海霆
▼玻璃砖墙近景,a close view to the glass brick wall© 孙海霆
▼一层客厅楼梯与混凝土梁 staircase and concrete beam© 在造建筑
▼一层弧形玻璃砖墙木折叠窗 the foldingwindow made of wood panels© 在造建筑
▼一层客厅卧室的弧形玻璃砖墙与木折叠窗 the glass brick wall and wooden panel window© 孙海霆
▼一层主卧望向玻璃砖卧室© 在造建筑 view to the balcony bedroom from the master bedroom
▼一层卫生间,bathroom on the first floor© 孙海霆
通往二楼的楼梯,连同弧形玻璃砖墙界面、储物柜、矮柜和穿孔板过滤灯光,成为一件组合家具。
The perforated steel plate staircase leading to the second floor, together with the curved glass brick wall interface, storage cabinets, low cabinets and perforated panels to filter the light, becomes a piece of modular furniture.
▼一层上二层的楼梯,staircase leading to the second floor© 孙海霆
▼楼梯间,stair well© 在造建筑
二楼是一个 4.5m 高的坡屋顶阁楼,需要一个透明的夹层以免破坏空间感。我们考虑玻璃夹层太普通了,并且玻璃的反光倒影也与房子风格不符合,因此我们使用了两个弯曲的钢桁架来建造桥,并用钢丝网编织了几乎透明的网,透过钢丝网去看 4.5m 高的红砖墙书架的视野完全不受阻碍。桥的钢桁架没有刷成白色或其他颜色,留下了原始抛光焊接的痕迹。二楼的卧室高 4.5m,并搭建了一个斜坡木屋顶以围护出一个小尺度的睡眠空间。
▼剖面图,section© 在造建筑
The second floor is a 4.5m high sloping roof attic. A transparent interlayer is needed so as not to spoil the sense of space. We consider that the glass interlayer is too common, and the reflection of the glass does not match the style of the house. Therefore, we used two curved steel trusses to build the bridge, and wove an almost transparent net with steel wire mesh. Through the steel wire mesh, the view of the 4.5m-high red brick wall bookshelf was completely unobstructed. The steel truss of the bridge was not painted white or other colors, leaving traces of the original polished welding.
▼二层钢丝桥,the steel bridge on the second floor© 孙海霆
▼二层钢丝桥与下方书房,the study beneath the bridge© 孙海霆
▼二层客厅与钢丝绳编织桥,the bridge made with steel wire mesh© 在造建筑
▼二层钢丝桥,the steel bridge© 在造建筑
▼二层卧室屋檐、竹子窗,the bamboo window of the bedroom on the second floor© 孙海霆
▼二层钢丝桥,on the bridge© 孙海霆
▼二层卧室与坡屋顶 ,the bedroom with sloping roofs© 在造建筑
▼二层卧室与三角坡屋顶延续空间© 在造建筑 the continuous spatial relationship between the bedroom and the sloping roof
衣柜后面是上夹层的楼梯。工人偶然取消了楼梯侧面板上方的背板。我们将错就错,将衣橱的背板留空,并嵌入压花玻璃。后面过道影影绰绰。
The bedroom on the second floor is 4.5m high, and a sloped wooden roof is built to enclose a small-scale sleeping space. Behind the wardrobe is the staircase to the upper mezzanine. The worker accidentally removed the back panel above the side panel of the staircase. So we leave the back panel of the closet blank and insert the patterned glass. The translucent aisle behind is fascinating.
▼二楼卧室上夹层的压花玻璃墙,the staircase to the upper mezzanine© 孙海霆
空间设计可以从门把手开始。我们用三叶虫和鹦鹉螺化石替换了一些工业化的门把手。自然的光泽和形式使朴素的橡胶木指接板优雅独特。
The space design can start from the door handle. We replaced some industrialized door handles with trilobite and nautilus fossils. The natural luster and form make the plain rubber wood finger joint board elegant and unique.
▼门把手细节,door handles© 在造建筑(左 1、2)© 孙海霆(右 1)
空间的变化也可以从地面开始。二楼阳台空间由小颗粒的水洗石做成,地面和墙壁都是凹凸不平的质感,让人联想到室外花园的粗糙感,这里成为可以放置植物和石头的抽象空间。我们使用老榆木门板做了一个抽象的“叠山”,这也是可以坐的一件家具。这个花园为封闭的室内带来一丝幻想空间的味道。
The change of space can also start from the ground. The balcony space on the second floor is made of small particles of washed stone. The ground and walls have a rough texture, reminiscent of the roughness of an outdoor garden. It becomes an abstract space where plants and stones can be placed. We used old elm wood door panels to make an abstract “rockery”, which is also a piece of furniture for sitting on. This garden brings a hint of fantasy space to the enclosed interior.
▼二层叠石沙发与洗石子花园,the rockery sofa and thestone garden© 孙海霆
▼室内材料细节,material details© 孙海霆(左);在造建筑(右)
▼一层客厅与榫卯支架,living room on the first floor with mortised shelves© 孙海霆
▼轴测分解图,axon-exploded© 在造建筑
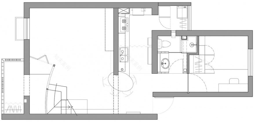
▼一层平面图,first floor plan© 在造建筑
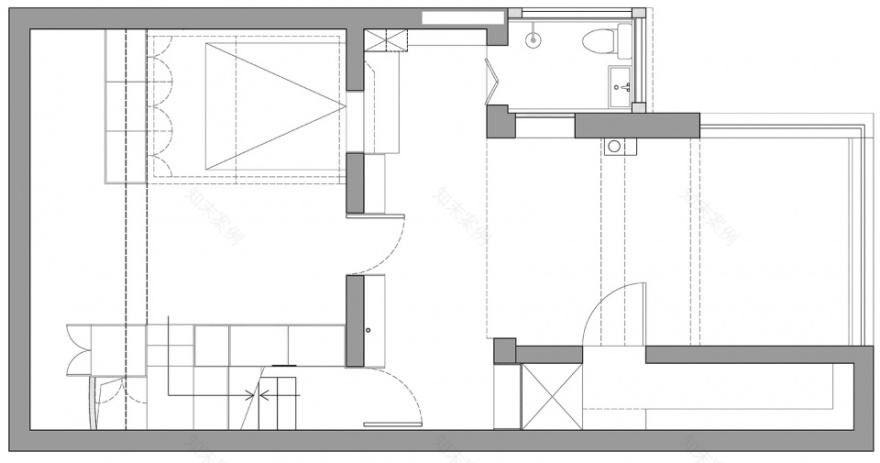
▼二层平面图,second floor plan© 在造建筑
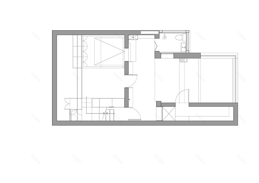
▼三层平面图,third floor plan© 在造建筑
▼李兵师傅建议的木折叠窗,the wood foldingwindow suggested by Li Bing© 在造建筑
▼叠石沙发,thewood rockery sofa design© 在造建筑
项目名称:手艺实验之家 Project Name: Home of Hand-craft Experiments
项目地址:北京 Location: Beijing, China
设计单位:在造建筑 Design Company: Atelier ZZ
主案设计师:张波、张清帆 Chief Designer: Zhang Bo, Zhang Qingfan
项目面积:110 平米 Area: 110 square meters
项目造价:20 万元 Cost: 0.2 million
设计起止日期:2020 年 1 月-2020 年 4 月 Design Cycle: January 2020 – April 2020
完工时间:2020 年 11 月 Completion time: November 2020
主要材料:橡胶木指接板、穿孔钢板、钢板、钢丝绳、玻璃砖、榆木板、虫蛀松木板、水洗石、干粘石、水磨石、凿毛混凝土、竹子、化石、风钩、蝴蝶合页 Main Materials: Rubber wood finger joint board, perforated steel plate, steel plate, steel wire rope, glass brick, elm wood board, borer pine wood board, pebblestone-floor, terrazzo, chiseled concrete, bamboo, fossil, wind hook, butterfly hinge
业主名称:张先生 Client Name: Mr. Zhang
项目摄影:孙海霆,在造建筑 Photographer: Sun Haiting, Atelier ZZ
客服
消息
收藏
下载
最近



















































