查看完整案例


收藏

下载
京都市美术馆(现更名为京都市京瓷美术馆)是日本历史最悠久的公共美术馆,它代表着当时被称为“帝冠样式”的新兴风格,融合了日本传统的建筑元素和西方建筑特色。
The main building of the Kyoto City Museum of Art (renamed as the Kyoto City KYOCERA Museum of Art) is the oldest public museum architecture that represents the Imperial Crown Style, the emerging architectural style that amalgamate the Japanese traditional architectural elements and the Western styled buildings.
▼从神宫道的楼梯长椅望向主楼和“玻璃缎带”,Looking towards the main building and Glass Ribbon from the stair benches on Jingu-michi©DAICI ANO
这座深受京都内外民众喜爱的美术馆于 1933 年开业,距今已有近 90 年的时间,既有的设施也越来越难满足当代的使用需求。具体来说,拥挤的大厅、售票处、咨询台、投币储物柜和洗手间等基本的功能早已不够用,同时展览区域也无法容纳需要灵活空间的大型当代艺术作品。基于这一状况,美术馆改造的目标也就顺理成章地确定下来:兼顾保护和利用,即一方面保留美术馆最真实的面貌,另一方则要使其回应现代需求。
▼左:1933 年竣工时的建筑外观;右:旧时的二层展厅,Left: Completed in 1933; Right: Second floor gallery
The beloved museum by the people of and outside of Kyoto since its opening in 1933 does not appeal to the functionality needs that have transcended for over 80 years. Specifically, its overcrowded lobby, ticketing and information desks, coin lockers, washrooms and other basic museum functionalities were no longer sufficient, as well as the exhibition areas not able to accommodate large-scale contemporary arts that require spatial flexibility.
The goal has been set naturally: conservation and utilization. Two opposite ends of the spectrum are what to achieve by preserving the museum’s most genuine posture and responding to the modern requirements.
▼主立面,main facade© TAKERU KOREDA
▼从屋顶花园望向日式庭园,View to Japanese garden from the rooftop garden© TAKERU KOREDA
▼主馆的砖瓦(中间)和新馆的玻璃纤维增强水泥(右)立面从远处看时仿佛有着相同的色调,在靠近后则展现出截然不同的纹理。Main building’s brick tiles (center) and Annex’s GRC (right) seem to share the same tone from distance, but they start to appear to have completely different textures when closer© TAKERU KOREDA
▼新馆的大厅敞开于日式庭园,View to Japanese Garden right after entering the lobby of Annex©DAICI ANO
▼从日式庭园望向主馆和新馆,Main building and Annex from Japanese Garden© TAKERU KOREDA
整体设计的核心在于贯通主楼由西至东的交通动线。西立面前方引入了通往建筑中心的坡道,一直延伸至位于地下的新主入口(原先是衣帽间)。游客将沿着楼梯进入中央大厅(原先是主展厅),并穿过位于东侧的日式庭园。建筑的其他增建部分包括能够满足当代艺术展览的宽敞空间、储藏室、无障碍设备、重新修复的内庭院以及咖啡馆和美术馆商店等。
▼街道剖面图,street section©Tezzo Nishizawa Architects
▼剖面图,section©Tezzo Nishizawa Architects
Penetrating the traffic from West to East of the main building is the backbone of the overall design. In front of the West façade, the slopes that go down towards the center of the building are introduced and they lead to the new Main Entrance that is renovated from the underground cloakroom. Visitors walk the stairs up to the Central Hall (former Main Gallery) and through to the Japanese Garden on the East side. Other additions to the building are the newly built extension dedicated to the contemporary art exhibitions, storages, barrier-free equipment, revived inner court yards, café and museum shops.
▼倾斜广场鸟瞰,Bird-view of the sloping Plaza©DAICI ANO
▼从平安神宫的交叉路口到倾斜广场的空间序列,Sequential approach from the Heian-Jingu intersection to the sloping Plaza©DAICI ANO
▼广场延伸至南侧的樱花树林,可以俯瞰到下方的琵琶湖水道,Plaza continues to the South side’s Sakura trees over the Lake Biwa canal©DAICI ANO
▼“玻璃缎带”和倾斜广场,Glass ribbon and the sloping Plaza© TAKERU KOREDA
▼连接 3 米高差的平缓坡道,Slope gradually connects the 3 meters height difference ©DAICI ANO
▼从咖啡厅望向倾斜广场,Looking at the sloping Plaza from Café©DAICI ANO
▼通过拆除连接西厅和地下层的楼梯,在主入口处创建了新的中庭 New atrium created over the Main Entrance, by removing the stairs from West Hall to the basement©DAICI ANO
▼中央大厅的旋转楼梯和连接地下层的主入口楼梯,Spiral staircase and the stairs from the Main Entrance one floor below in Central Hall©DAICI ANO
▼中央大厅新建了垂直交通和阳台走廊,其结构与原建筑分离©DAICI ANO Vertical traffic and balconies are newly built in Central Hall, which are structurally separated from the original building
▼中央大厅的旋转楼梯与地下入口楼梯并置,Central Hall juxtaposes the spiral staircase and the stairs from the underground entrance© TAKERU KOREDA
▼从地下入口通向中央大厅的楼梯,Stairs from the underground entrance to Central Hall© TAKERU KOREDA
▼西厅保留了旧建筑的典雅氛围,Architectural elegance from the original building’s completion in West Hall©DAICI ANO
▼西厅尽可能地保留了原先的设计细节 Original design details preserved wherever possible in West Hall©DAICI ANO
▼西厅窗户的挡墙被拆除以连接至二层的阳台走廊 Removed the retaining wall of the West Hall windows to connect to the second-floor balconies©DAICI ANO
谨慎的修复使得建筑能够在需要的时候满足可逆性以及新功能的大胆置入。这些建筑层面的改进也激活了美术馆周围区域的人流。
Carefully balanced between careful restorations of the building to allow reversibility and boldly inserting new functions if necessary, these architectural enhancements also led to activating the flow of people in the surrounding area.
▼地下展厅与西北入口相接并面向广场,主要用于展示年轻艺术家的作品 Basement gallery is integrated to Northwest Entrance facing to Plaza. Focuses on showcasing young artists©DAICI ANO
▼采光大厅(原北院)的玻璃天花板和阳台走廊。新旧结构之间设有伸缩接缝,可以满足展览的多种需求。Glass ceiling and balcony in Atrium (former North courtyard). Expansion joints between the original and the newly added structures. Can accommodate multiple purposes for the ongoing exhibitions© TAKERU KOREDA
▼天空庭院(原南院)在拆除空调设备后作为室外展览空间使用,Sky Courtyard (former South Courtyard) becomes outdoor exhibition area after removing air-conditioning equipment© TAKERU KOREDA
▼翻新后的南翼一层展厅,其框架和护壁板采用了相同的材料和形状 Same materials and shapes are chosen for fitting frame and baseboard in the first floor South Wing gallery after renovation©DAICI ANO
▼新馆提供了展示当代艺术的抽象空间,配备以高功能性的天花板,便于安装照明设备和临时性的墙板,Annex provides the level of abstraction to accommodate contemporary arts, equipped with a high-functional ceiling to install ideal lighting outlets and temporary walls©DAICI ANO
虽然美术馆自成立以来已进行过多次修复,但本案首次对整个修复过程和规划进行了记录。若建筑在未来再次进行翻新,本次的规划将被作为一个重要的历史参照点。
This will be the first time to record the entire processes and plans, despite its numerous restorations have been conducted since the museum’s founding. When the building goes under renovation again in future, current plan will act as a historical reference point.
▼西侧入口在改造之前是主入口,在拆除雨伞架和临时售票处之后恢复了其原始状态。West entrance served as the main entrance before renovation. Recovered to original by removing umbrella stands and temporary ticketing counters© TAKERU KOREDA
▼主馆装饰细节,Ornamental details in Main building© TAKERU KOREDA
▼主馆室内楼梯,Ornamental details in Main building© TAKERU KOREDA
▼可以同时看见东山和日式庭园的房间 Room with a view to both Higashiyama and Japanese garden© TAKERU KOREDA
▼北侧地下室被翻新为多功能厅 North side basement renovated to multi-purpose room© TAKERU KOREDA
▼贵宾室保留了原始的内部装潢 Conserved the Royal Suite’s original interior finishing on site© TAKERU KOREDA
▼贵宾室的大门保留了原有的装饰,Original ornaments on the door preserved in Royal Suite© TAKERU KOREDA
▼位于地下一层的主入口大厅,既有的瓷砖得到了重新利用 Main Entrance lobby on the first floor underground. Reused the existing tiles©DAICI ANO
叠加在空间之上的层层思考造就了历史,它体现着京都市美术馆丰富且历久弥新的发展。
Overlaying reflections on a space is what is called history, which embodies the richness the Kyoto City Museum of Art has grown over the years.
▼从西北入口望向倾斜广场和地下展厅 View from Northwest Entrance to the sloping Plaza and the basement gallery© TAKERU KOREDA
▼“玻璃缎带”和倾斜广场展现出历史的层次感 Glass ribbon and the sloping Plaza represents layers of history© TAKERU KOREDA
▼1930 年设计竞赛时提供的建筑立面图,Elevation submitted to the competition in 1930
▼场地平面图,site plan©Tezzo Nishizawa Architects
▼一层平面图,1F plan©Tezzo Nishizawa Architects
▼二层平面图,2F plan
©Tezzo Nishizawa Architects
▼地下一层平面图,B1 plan©Tezzo Nishizawa Architects
▼剖面图,section©Tezzo Nishizawa Architects
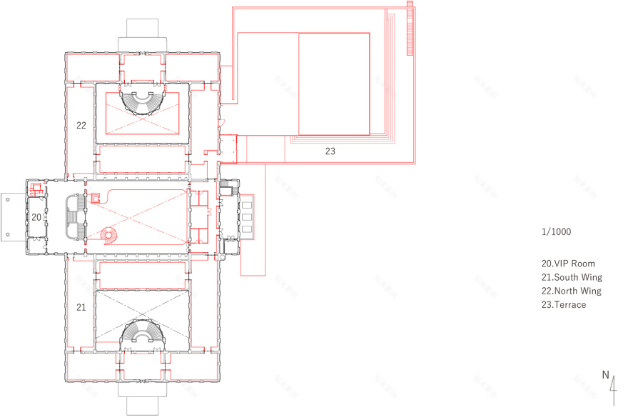
Kyoto City Museum of Art(Kyoto City KYOCERA Museum of Art)Location: 124 Okazaki Enshoji-cho, Sakyo-ku, Kyoto, JapanPrincipal use: art museumClient: City of KyotoPreliminary Design +Master Design Architect: Jun Aoki + Tezzo NishizawaPreliminary Design (Structural design): Kanebako Structural EngineersPreliminary Design (Mechanical design): P.T. Morimura & Associates. Ltd.Curtain design: Yoko Ando DesignScheme of sign: Semitransparent DesignSound technical design: Nagata AcousticsExecution Design: MATSUMURA-GUMI Corporation. / Showa Sekkei, IncorporatedConstruction: MATSUMURA-GUMI Corporation.Area dimension: Site area: 25,383.71 m2Building area: 8,205.67 m2Total floor area: 18,737.92 m2Main Building(existing): 9,334.17 m2New Building(addition): 9,403.75 m2B1F 6472.25 m21F 7487.91 m22F 4777.76 m2Structure: Main Building(existing): Reinforced concrete, partial Steel-Frame reinforced concrete, Steel frameNew Building(addition): Steel frame, partial Steel-Frame reinforced concreteNumber of stories: B1F / 2FMeasurement: Highest point: Main Building(existing): 22,300mmNew Building(addition): 12,360mmCeiling height: B1F 3,150mm(Main Entrance), 2,480mm(Cafe,Shop), 2,980mm(The Triangle; a space for emerging artists)1F 16,200mm(Central Hall), 3,725mm(gallery, North Wing), 5,000mm(gallery, Higashiyama Cube)2F 6,400mm(gallery, North Wing), 9,200mm(gallery, South Wing), 3,000mm(Office)Preliminary Design period: Aug 2015 – Mar 2016Execution Design, Construction period: Mar 2017 – Oct 2019Year of completion and opening: May 2020Hours of Opening: 10:00-18:00(Last Admission 17:30)Close: Mondays, except public holidays, and Year-end/New Year holidays.
客服
消息
收藏
下载
最近




































































