查看完整案例


收藏

下载
“ 我们希望透过室内建筑的方式,充分的表达空间和居住设计中的独特美学见解。同时融入装置、雕塑、绘画等其他艺术形式,创造出具有独特视觉效果以及能够感染人心的空间与氛围。” —— WUY无研建筑
一层平面布置图
我们思考了多种楼梯位置的可能性,最终确认了简单、方便的动线布局。空间上我们合理压缩了原始卫生间的空间,解决了卫生间与厨房之间的尴尬问题,使整个空间的动线更舒适流畅。
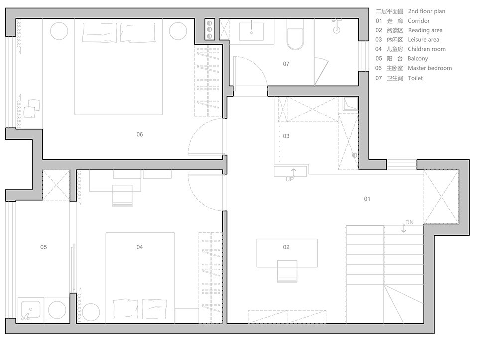
二层平面布置图 对于业主「三个卧室一个书房一个储物间」的空间功能要求,我们提出了让空间更自由的布局方式,使书房、储物区、楼梯集合在一个空间,保证了整体空间的通透性和趣味性。 玄 关
进入空间,首先会被一个纯白的极简线型楼梯吸引,我们把它看成是一个放置在黑色舞台上的链接一层与二层的雕塑艺术品。楼梯的对面利用了原始窗户下的空间设计了一个悬空小鞋柜,方便日常使用。
纯白色钢板楼梯,两边的线型杆件从一层贯通至二层,营造出楼梯空间的一种梦幻感和仪式感。
客餐厅
极窄的线型灯从玄关处一直延展到客厅,增加了空间纵深感的同时起到一个空间的指引感。
蓝色展示层板的出现则打破了空间色彩的单调。
通过一字型层板来连接客厅与餐厅,客餐厅之间没有明显的分隔,保证了空间的整体性。白墙上的四个方盒子,即保证了餐边柜的收纳,同时也是一组色块雕塑,既满足功能需求也达到空间艺术的呈现。
线型楼梯犹如雕塑艺术品一样安静的伫立在空间中,既像是餐厅的背景又有它自己的独立美感,圆形的餐桌则打破了空间整体方正的沉闷感。
线型楼梯与色块雕塑
书 房
线型杆件在二层形成书房隔断,保证了整体的统一性和安全性。墙角的线性灯从墙面延伸到顶面,配合线型栏杆,带来独特的光影效果。我们设计了一组悬空的书柜来满足日常的收纳使用,书柜的背后藏有3000K暖色灯带来调节空间氛围。
开放式的储物区和书房空间形成一个有秩序的大空间,增加了地面收纳的同时也可以铺设软垫变成家庭的阅读区和小型活动区,非常具有趣味性。
杆件细部,光影呈现。
卧 室
卧室延续了整体的设计风格,干净明亮。背景黑色饰面延展至墙面的柱子,形成独特的空间体量,也保证了衣柜的统一性。
目名称:线型梯宅 设计公司:无研建筑设计 项目地址:浙江省 杭州市 建筑面积:140㎡(复式公寓) 主持设计师:苏问 参与设计师:许秋阳,王丹霏,刘志飞 项目完成时间:2020.11 摄影:吴昂 文字:阿青 主要材料:钢板、乳胶漆、木材
客服
消息
收藏
下载
最近























